• 手机版

    扫码体验手机版

  • 微信公众号

    扫码关注公众号

登录注册
游客您好
第三方账号登陆

[衢州] 枫丹白露3-1#87㎡简美——追光.筑梦

[复制链接]
发表于 2018-4-28 09:38:57 | 显示全部楼层 |阅读模式
枫丹白露3-1#87㎡简美——追光.筑梦

格堂装饰为您全程记录装修全过程!

小区名称
枫丹白露
房屋面积
87㎡
户型结构
框架结构
装修风格
简美
装修方式
全包
装修造价
查看请联系客服万元
设计师
周工
项目经理
彭工
装修公司
格堂装饰
完工实景
完工实景
水电全景
水电全景
VR全景
VR全景
设计说明
前路漫漫,我们历尽青春年华所追寻的,也不过是一个温暖的港湾。追寻心中的光,筑起人们心中梦想的房子,是所有设计师都乐此不疲的。
更多信息
回复

使用道具 举报

 楼主| 发表于 2018-4-28 09:39:38 | 显示全部楼层
原始结构图
1-Model.jpg
回复 支持 反对

使用道具 举报

 楼主| 发表于 2018-4-28 09:40:03 | 显示全部楼层
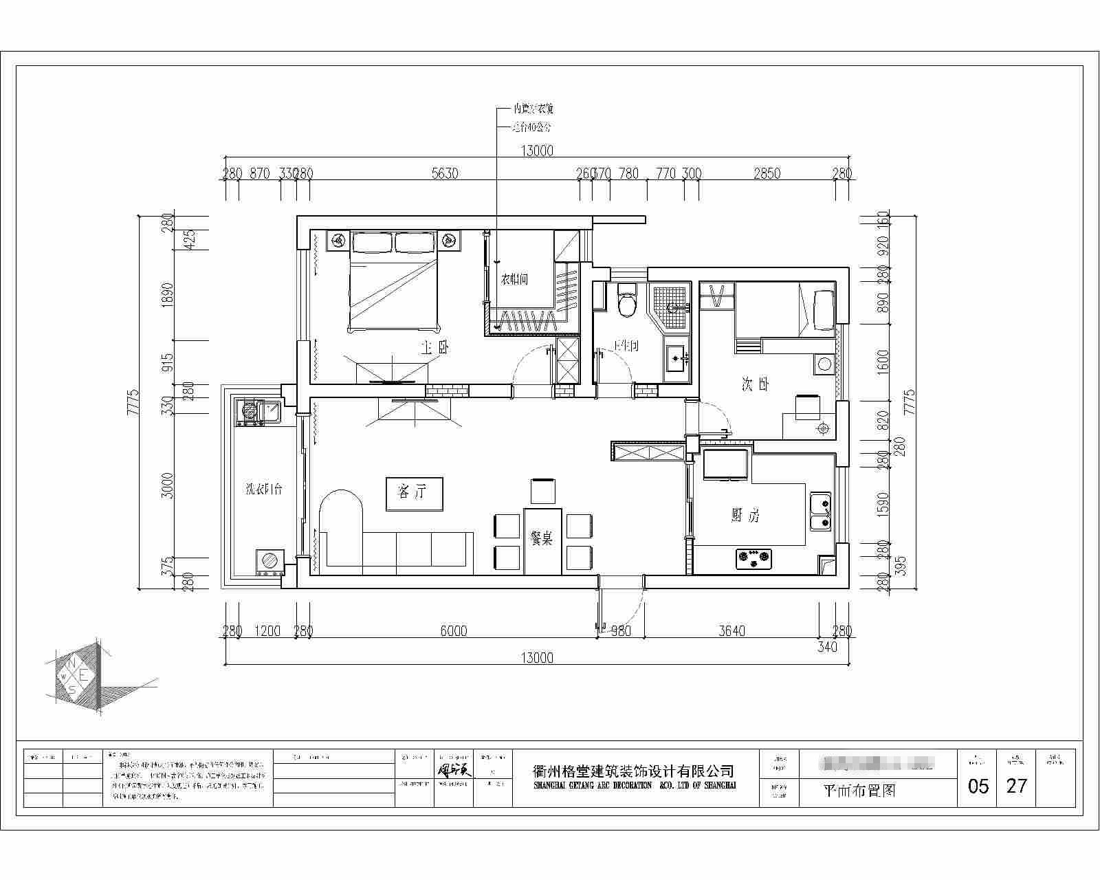
平面布置图


2-Model.jpg


回复 支持 反对

使用道具 举报

 楼主| 发表于 2018-4-28 09:41:53 | 显示全部楼层


回复

使用道具 举报

 楼主| 发表于 2018-4-28 09:42:10 | 显示全部楼层


回复

使用道具 举报

 楼主| 发表于 2018-4-28 09:42:35 | 显示全部楼层


回复

使用道具 举报

 楼主| 发表于 2018-4-28 09:42:52 | 显示全部楼层


回复

使用道具 举报

 楼主| 发表于 2018-4-28 09:43:44 | 显示全部楼层


回复

使用道具 举报

 楼主| 发表于 2018-4-28 09:48:12 | 显示全部楼层
入户门进行保护



mmexport1524560823060.jpg


下水管防堵塞到位


mmexport1524560854463.jpg


mmexport1524560860251_副本2.jpg


煤气表保护到位


mmexport1524560857400.jpg




回复 支持 反对

使用道具 举报

 楼主| 发表于 2018-4-28 09:50:07 | 显示全部楼层
本帖最后由 格堂王晓 于 2018-4-28 10:01 编辑

恭祝业主大人开工大吉!

mmexport1524560863049.jpg

mmexport1524560851541.jpg


mmexport1524560825898.jpg


回复 支持 反对

使用道具 举报

您需要登录后才可以回帖 登录 | 立即注册

本版积分规则

全国统一客服电话
0570-8028505

24x7小时免费咨询

  • 官方在线客服

    QQ客服:小西

    点击交谈

    QQ客服:良子

    点击交谈

    QQ客服:闵月

    点击交谈
  • 衢州市柯城区财富中心3号楼2楼

  • 衢州格堂装饰有限公司

  • 扫一扫关注官方微信

    获取一手特惠信息

快速回复 返回顶部 返回列表