• 手机版

    扫码体验手机版

  • 微信公众号

    扫码关注公众号

登录注册
游客您好
第三方账号登陆

[衢州] 吾悦华府2#91㎡简美——清新美式,去繁从简

[复制链接]
发表于 2018-4-18 13:21:22 | 显示全部楼层 |阅读模式
吾悦华府2#91㎡简美——清新美式,去繁从简

格堂装饰为您全程记录装修全过程!

小区名称
吾悦华府
房屋面积
91㎡
户型结构
套房
装修风格
简美
装修方式
半包
装修造价
查看请联系客服万元
设计师
王工
项目经理
余工
装修公司
格堂装饰
完工实景
完工实景
水电全景
水电全景
VR全景
VR全景
设计说明
待添加...
更多信息
回复

使用道具 举报

 楼主| 发表于 2018-4-18 13:21:47 | 显示全部楼层
本帖最后由 格堂邱华剑 于 2018-4-18 13:24 编辑

                              
回复 支持 反对

使用道具 举报

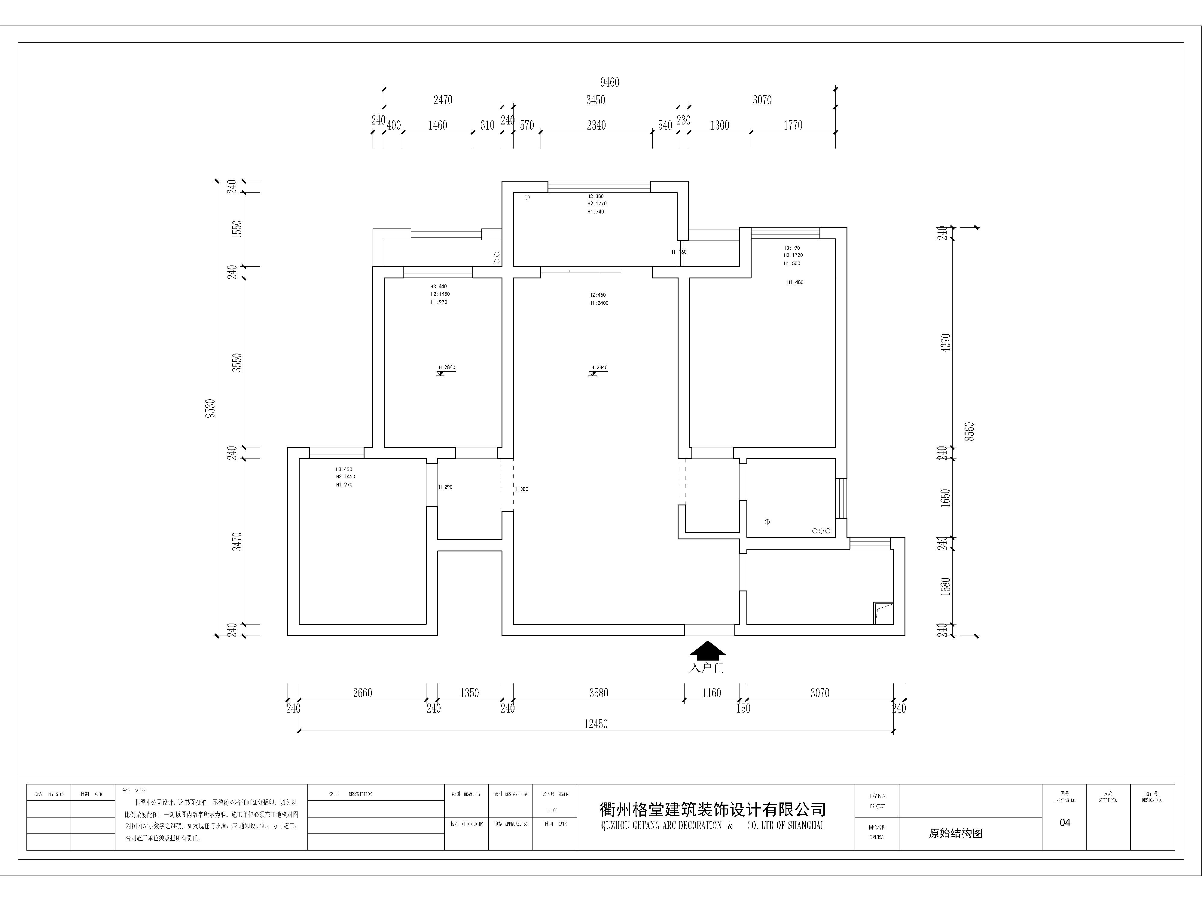
 楼主| 发表于 2018-4-18 13:23:45 | 显示全部楼层
                                                                       原始结构图
吾悦2-2702终-布局1.jpg
回复 支持 反对

使用道具 举报

 楼主| 发表于 2018-4-18 13:24:56 | 显示全部楼层
                                                                             平面布置图
吾悦2-2702终-布局2.jpg
回复 支持 反对

使用道具 举报

 楼主| 发表于 2018-4-18 13:26:44 | 显示全部楼层
                        
回复 支持 反对

使用道具 举报

 楼主| 发表于 2018-4-18 13:27:18 | 显示全部楼层
                                                           
回复 支持 反对

使用道具 举报

 楼主| 发表于 2018-4-18 13:27:46 | 显示全部楼层
                     
回复 支持 反对

使用道具 举报

 楼主| 发表于 2018-4-18 13:28:13 | 显示全部楼层
                          
回复 支持 反对

使用道具 举报

 楼主| 发表于 2018-4-18 13:28:46 | 显示全部楼层
恭喜业主开工大吉!
529480539204375540_副本.jpg
回复 支持 反对

使用道具 举报

 楼主| 发表于 2018-4-18 13:29:39 | 显示全部楼层
对门做保护措施
713407184119990733.jpg
回复 支持 反对

使用道具 举报

您需要登录后才可以回帖 登录 | 立即注册

本版积分规则

全国统一客服电话
0570-8028505

24x7小时免费咨询

  • 官方在线客服

    QQ客服:小西

    点击交谈

    QQ客服:良子

    点击交谈

    QQ客服:闵月

    点击交谈
  • 衢州市柯城区财富中心3号楼2楼

  • 衢州格堂装饰有限公司

  • 扫一扫关注官方微信

    获取一手特惠信息

快速回复 返回顶部 返回列表