• 手机版

    扫码体验手机版

  • 微信公众号

    扫码关注公众号

登录注册
游客您好
第三方账号登陆

[衢州] 吾悦华府5-2#92㎡现代简约——给你不一样的美

[复制链接]
发表于 2018-6-30 16:11:29 | 显示全部楼层 |阅读模式
吾悦华府5-2#92㎡现代简约——给你不一样的美

格堂装饰为您全程记录装修全过程!

小区名称
吾悦华府
房屋面积
92㎡
户型结构
套房
装修风格
现代
装修方式
半包
装修造价
查看请联系客服万元
设计师
毛工
项目经理
周工
装修公司
格堂装饰
完工实景
完工实景
水电全景
水电全景
VR全景
VR全景
设计说明
待添加...
更多信息
回复

使用道具 举报

 楼主| 发表于 2018-6-30 16:15:05 | 显示全部楼层
原始结构图
392500251575919046_副本.png
回复 支持 反对

使用道具 举报

 楼主| 发表于 2018-6-30 16:15:21 | 显示全部楼层

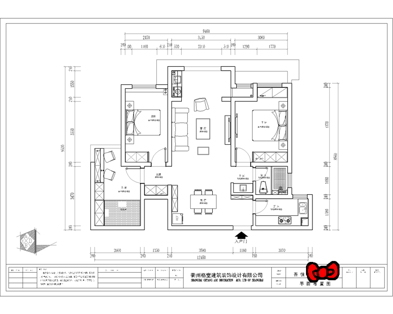
平面布置图
613019177661283600_副本.png
回复 支持 反对

使用道具 举报

 楼主| 发表于 2018-6-30 16:15:41 | 显示全部楼层


792449340357860543.jpg
回复 支持 反对

使用道具 举报

 楼主| 发表于 2018-6-30 16:16:02 | 显示全部楼层


792449340357860543.jpg
回复 支持 反对

使用道具 举报

 楼主| 发表于 2018-6-30 16:16:39 | 显示全部楼层


792449340357860543.jpg
回复 支持 反对

使用道具 举报

 楼主| 发表于 2018-6-30 16:17:06 | 显示全部楼层


792449340357860543.jpg
回复 支持 反对

使用道具 举报

 楼主| 发表于 2018-6-30 16:24:10 | 显示全部楼层

过道墙面保护,防止后期磕碰到
IMG_20180627_091400.jpg

IMG_20180627_091514.jpg
回复 支持 反对

使用道具 举报

 楼主| 发表于 2018-6-30 16:24:46 | 显示全部楼层

大门保护、门槛保护 IMG_20180627_091919.jpg

IMG_20180627_091506.jpg

回复 支持 反对

使用道具 举报

 楼主| 发表于 2018-6-30 16:25:56 | 显示全部楼层

煤气表保护
IMG_20180627_091927.jpg
回复 支持 反对

使用道具 举报

您需要登录后才可以回帖 登录 | 立即注册

本版积分规则

全国统一客服电话
0570-8028505

24x7小时免费咨询

  • 官方在线客服

    QQ客服:小西

    点击交谈

    QQ客服:良子

    点击交谈

    QQ客服:闵月

    点击交谈
  • 衢州市柯城区财富中心3号楼2楼

  • 衢州格堂装饰有限公司

  • 扫一扫关注官方微信

    获取一手特惠信息

快速回复 返回顶部 返回列表