• 手机版

    扫码体验手机版

  • 微信公众号

    扫码关注公众号

登录注册
游客您好
第三方账号登陆

[衢州] 碧桂园55#260㎡现代简约

[复制链接]
发表于 2018-5-8 16:17:48 | 显示全部楼层 |阅读模式
碧桂园55#260㎡现代简约

格堂装饰为您全程记录装修全过程!

小区名称
碧桂园
房屋面积
260㎡
户型结构
框架结构
装修风格
现代
装修方式
全包
装修造价
查看请联系客服万元
设计师
郑工
项目经理
彭工
装修公司
格堂装饰
完工实景
完工实景
水电全景
水电全景
VR全景
VR全景
设计说明
本案为简约混搭风格,从很大程度上阐释了一种简单洒脱的生活态度,也反映了现代生活重压下人们对自然恬静生活的追求,本案业主喜欢清爽大方的设计,搭配上一些有趣的软装,大气的吊顶,并且强烈追求后期的软装搭出的效果。
更多信息
回复

使用道具 举报

 楼主| 发表于 2018-5-8 16:22:43 | 显示全部楼层
一层原始结构图


683479979251836211.jpg


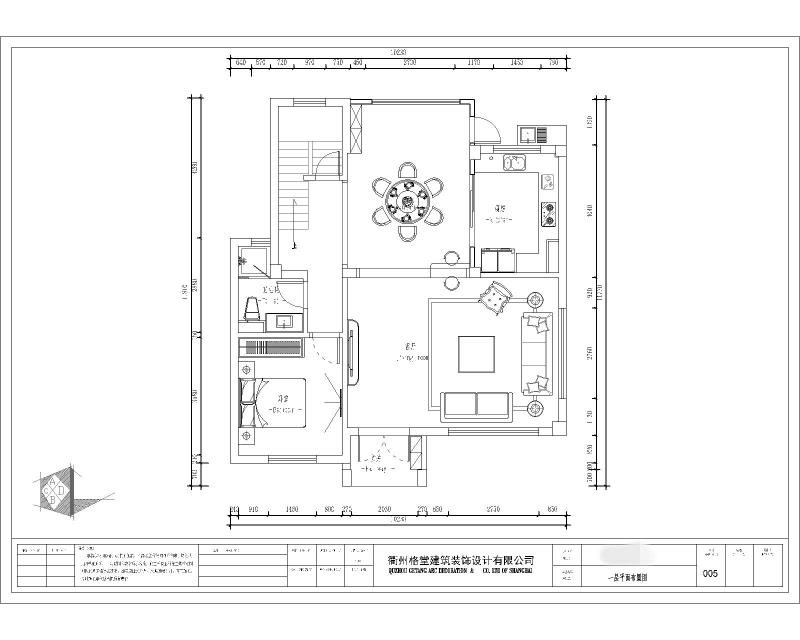
一层平面布置图



529276700858396070.jpg


回复 支持 反对

使用道具 举报

 楼主| 发表于 2018-5-8 16:24:05 | 显示全部楼层
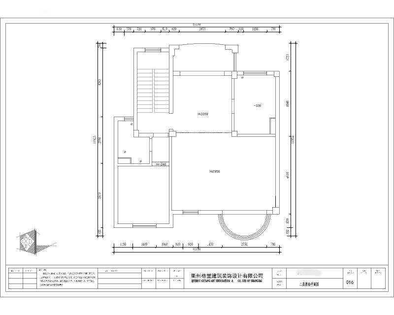
二层原始结构图


66815867117374899.jpg


二层平面布置图



725895588561834283.jpg


回复 支持 反对

使用道具 举报

 楼主| 发表于 2018-5-8 16:24:56 | 显示全部楼层
三层原始结构图


143550833254739584.jpg



三层平面布置图


82232461605223756.jpg


回复 支持 反对

使用道具 举报

 楼主| 发表于 2018-5-8 16:25:41 | 显示全部楼层
1.jpg


回复 支持 反对

使用道具 举报

 楼主| 发表于 2018-5-8 16:26:00 | 显示全部楼层
1.jpg


回复 支持 反对

使用道具 举报

 楼主| 发表于 2018-5-8 16:26:25 | 显示全部楼层
1.jpg


回复 支持 反对

使用道具 举报

 楼主| 发表于 2018-5-8 16:26:58 | 显示全部楼层
1.jpg


回复 支持 反对

使用道具 举报

 楼主| 发表于 2018-5-8 16:27:26 | 显示全部楼层
1.jpg


回复 支持 反对

使用道具 举报

 楼主| 发表于 2018-5-8 16:28:54 | 显示全部楼层
开工准备啦


266862121145933044.jpg



437171576220480443.jpg


回复 支持 反对

使用道具 举报

您需要登录后才可以回帖 登录 | 立即注册

本版积分规则

全国统一客服电话
0570-8028505

24x7小时免费咨询

  • 官方在线客服

    QQ客服:小西

    点击交谈

    QQ客服:良子

    点击交谈

    QQ客服:闵月

    点击交谈
  • 衢州市柯城区财富中心3号楼2楼

  • 衢州格堂装饰有限公司

  • 扫一扫关注官方微信

    获取一手特惠信息

快速回复 返回顶部 返回列表