• 手机版

    扫码体验手机版

  • 微信公众号

    扫码关注公众号

登录注册
游客您好
第三方账号登陆

[衢州] 吾悦华府3#155㎡现代简约——随然

[复制链接]
发表于 2018-4-27 16:27:38 | 显示全部楼层 |阅读模式
吾悦华府3#155㎡现代简约——随然

格堂装饰为您全程记录装修全过程!

小区名称
吾悦华府
房屋面积
155㎡
户型结构
框架
装修风格
现代
装修方式
全包
装修造价
查看请联系客服万元
设计师
毛工
项目经理
周工
装修公司
格堂装饰
完工实景
完工实景
水电全景
水电全景
VR全景
VR全景
设计说明
“隨然”,很簡單的名字,追尋隨性與自然的生活方式。是描述,也是定義。
更多信息
回复

使用道具 举报

 楼主| 发表于 2018-4-27 16:33:03 | 显示全部楼层

原始结构图
369214545739006360.jpg
回复 支持 反对

使用道具 举报

 楼主| 发表于 2018-4-27 16:36:49 | 显示全部楼层

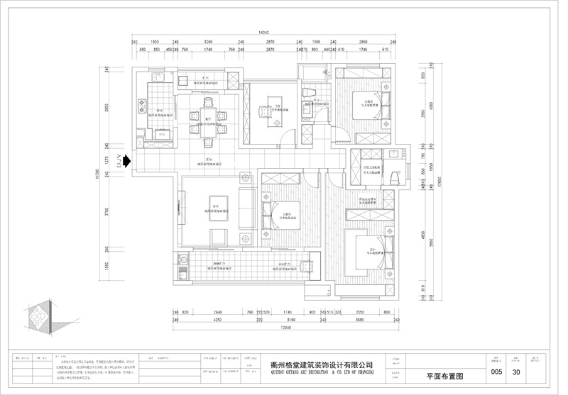
平面布置图
767262087448021199.jpg
回复 支持 反对

使用道具 举报

 楼主| 发表于 2018-4-27 16:57:57 | 显示全部楼层
本帖最后由 格堂云儿 于 2018-4-27 17:00 编辑

开工前准备好物料
IMG_7822.JPG

IMG_7821.JPG
回复 支持 反对

使用道具 举报

 楼主| 发表于 2018-4-28 10:55:46 | 显示全部楼层

桌子摆放好
IMG_7823.JPG
回复 支持 反对

使用道具 举报

 楼主| 发表于 2018-4-28 11:03:58 | 显示全部楼层

横幅铭牌都挂好了
IMG_7824.JPG

IMG_7825.JPG
回复 支持 反对

使用道具 举报

 楼主| 发表于 2018-4-28 11:11:05 | 显示全部楼层
本帖最后由 格堂云儿 于 2018-4-28 13:24 编辑

开工前大门要先保护起来,防止以后磕碰
IMG_7833.JPG
IMG_7861.JPG

IMG_7862.JPG

回复 支持 反对

使用道具 举报

 楼主| 发表于 2018-4-28 11:20:22 | 显示全部楼层
大门门槛保护到位,防止以后门槛变形和磕碰
IMG_7863.JPG
回复 支持 反对

使用道具 举报

 楼主| 发表于 2018-4-28 11:27:43 | 显示全部楼层
本帖最后由 格堂云儿 于 2018-4-28 11:30 编辑

煤气表保护
IMG_7827.JPG
回复 支持 反对

使用道具 举报

 楼主| 发表于 2018-4-28 11:32:37 | 显示全部楼层
本帖最后由 格堂云儿 于 2018-4-28 11:39 编辑

格堂专用的,临时马桶安装到位
IMG_7829.JPG
回复 支持 反对

使用道具 举报

您需要登录后才可以回帖 登录 | 立即注册

本版积分规则

全国统一客服电话
0570-8028505

24x7小时免费咨询

  • 官方在线客服

    QQ客服:小西

    点击交谈

    QQ客服:良子

    点击交谈

    QQ客服:闵月

    点击交谈
  • 衢州市柯城区财富中心3号楼2楼

  • 衢州格堂装饰有限公司

  • 扫一扫关注官方微信

    获取一手特惠信息

快速回复 返回顶部 返回列表