• 手机版

    扫码体验手机版

  • 微信公众号

    扫码关注公众号

登录注册
游客您好
第三方账号登陆

[衢州] 春江月15#115㎡简美

[复制链接]
发表于 2018-4-29 17:34:22 | 显示全部楼层 |阅读模式
春江月15#115㎡简美

格堂装饰为您全程记录装修全过程!

小区名称
春江月
房屋面积
115㎡
户型结构
框架
装修风格
简美
装修方式
全包
装修造价
查看请联系客服万元
设计师
余工
项目经理
李工
装修公司
格堂装饰
完工实景
完工实景
水电全景
水电全景
VR全景
VR全景
设计说明
本案例设计的简美风格突出了生活的舒适和自由,颜色深沉但不沉闷的家具,加上带有岁月沧桑的配饰,让整个空间变得更加饱满。主张人在空间里不是被装饰所束缚,而是一个自由的主体。根据需求实现设计,把情感融入到设计中。淡蓝色搭配上深咖色,放置上深沉的木色,体现出整个空间的大气与温馨。
更多信息
回复

使用道具 举报

 楼主| 发表于 2018-4-29 18:41:35 | 显示全部楼层
一层原始结构图


1.jpg


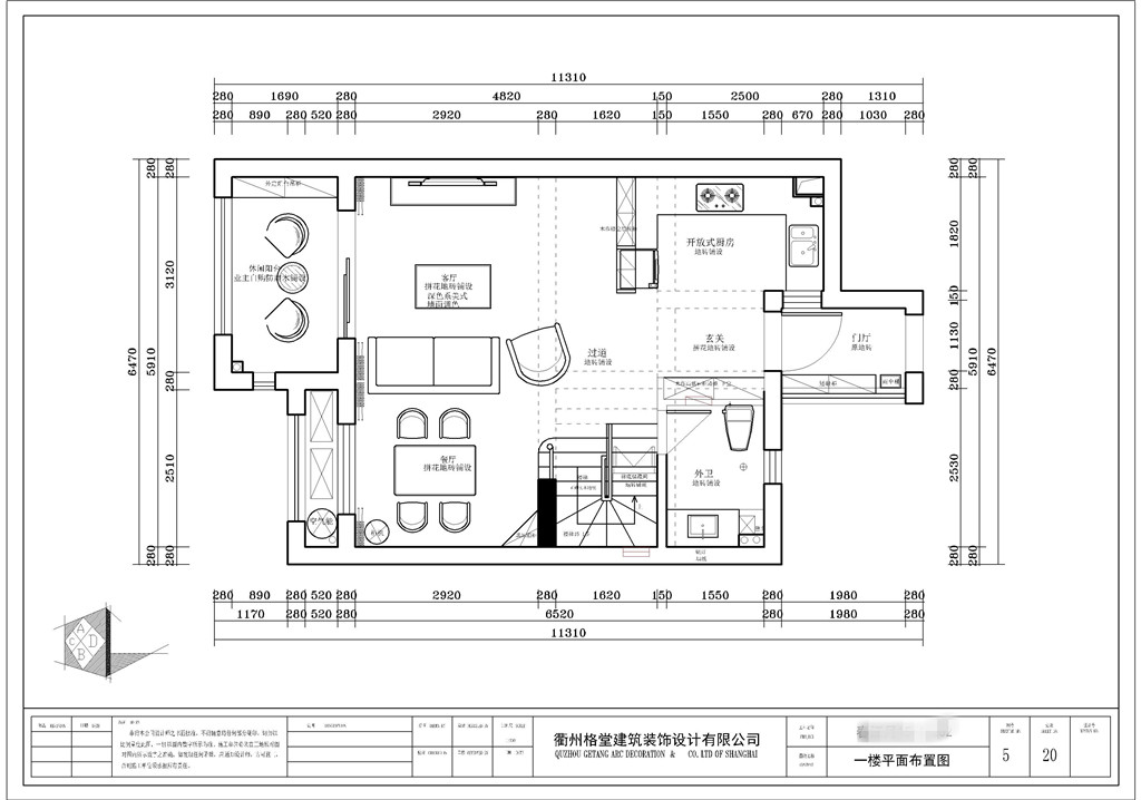
一层平面布置图


1p.jpg


回复 支持 反对

使用道具 举报

 楼主| 发表于 2018-4-29 18:42:42 | 显示全部楼层
二层原始结构图


2.jpg


二层平面布置图


2p.jpg


回复 支持 反对

使用道具 举报

 楼主| 发表于 2018-4-29 18:43:20 | 显示全部楼层

回复

使用道具 举报

 楼主| 发表于 2018-4-29 18:43:40 | 显示全部楼层

回复

使用道具 举报

 楼主| 发表于 2018-4-29 18:44:04 | 显示全部楼层

回复

使用道具 举报

 楼主| 发表于 2018-4-29 18:44:32 | 显示全部楼层

回复

使用道具 举报

 楼主| 发表于 2018-4-29 18:44:50 | 显示全部楼层

回复

使用道具 举报

 楼主| 发表于 2018-4-29 18:50:42 | 显示全部楼层
入户门进行保护



625036286546865858.jpg




回复 支持 反对

使用道具 举报

 楼主| 发表于 2018-4-29 18:51:04 | 显示全部楼层
本帖最后由 格堂王晓 于 2018-4-29 18:55 编辑

煤气表保护到位

3218038905091802.jpg

门槛石保护到位

350061655746586511.jpg

下水管防堵塞到位

411973441614632869.jpg


回复 支持 反对

使用道具 举报

您需要登录后才可以回帖 登录 | 立即注册

本版积分规则

全国统一客服电话
0570-8028505

24x7小时免费咨询

  • 官方在线客服

    QQ客服:小西

    点击交谈

    QQ客服:良子

    点击交谈

    QQ客服:闵月

    点击交谈
  • 衢州市柯城区财富中心3号楼2楼

  • 衢州格堂装饰有限公司

  • 扫一扫关注官方微信

    获取一手特惠信息

快速回复 返回顶部 返回列表