• 手机版

    扫码体验手机版

  • 微信公众号

    扫码关注公众号

登录注册
游客您好
第三方账号登陆

[衢州] 枫丹白露20-3#177㎡欧式——文化之旅

[复制链接]
发表于 2018-7-7 09:45:32 | 显示全部楼层 |阅读模式
枫丹白露20-3#177㎡欧式——文化之旅

格堂装饰为您全程记录装修全过程!

小区名称
枫丹白露
房屋面积
177㎡
户型结构
复式
装修风格
欧式
装修方式
半包
装修造价
查看请联系客服万元
设计师
何工
项目经理
彭工
装修公司
格堂装饰
完工实景
完工实景
水电全景
水电全景
VR全景
VR全景
设计说明
业主是两位老人和一位女儿,年龄的差异导致风格的不同,老人喜欢中式,而女儿喜欢欧式,于是,我们就做了一次中式,二层欧式的设计。
更多信息
回复

使用道具 举报

 楼主| 发表于 2018-7-7 09:47:37 | 显示全部楼层
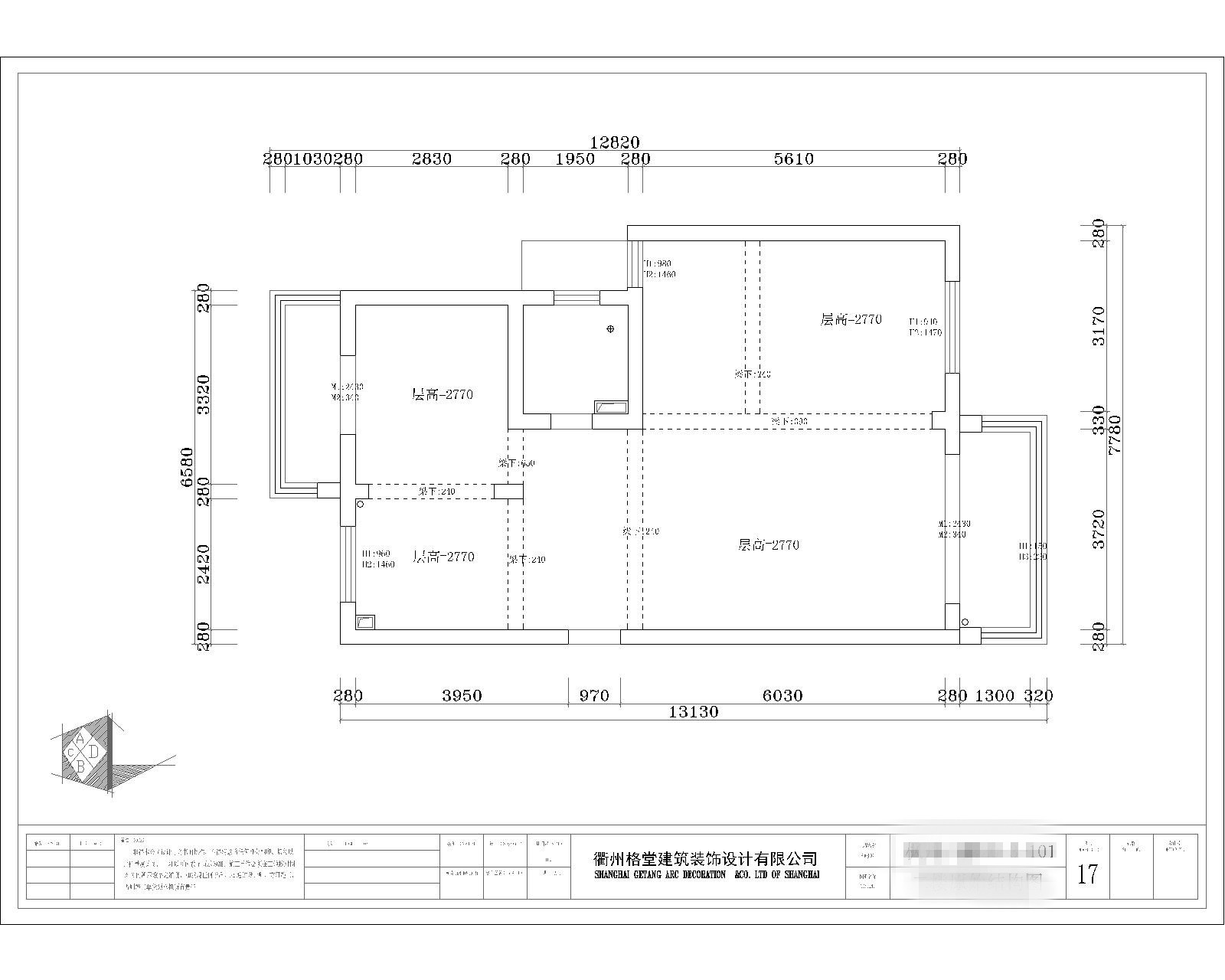
一层原始结构图


111.jpg


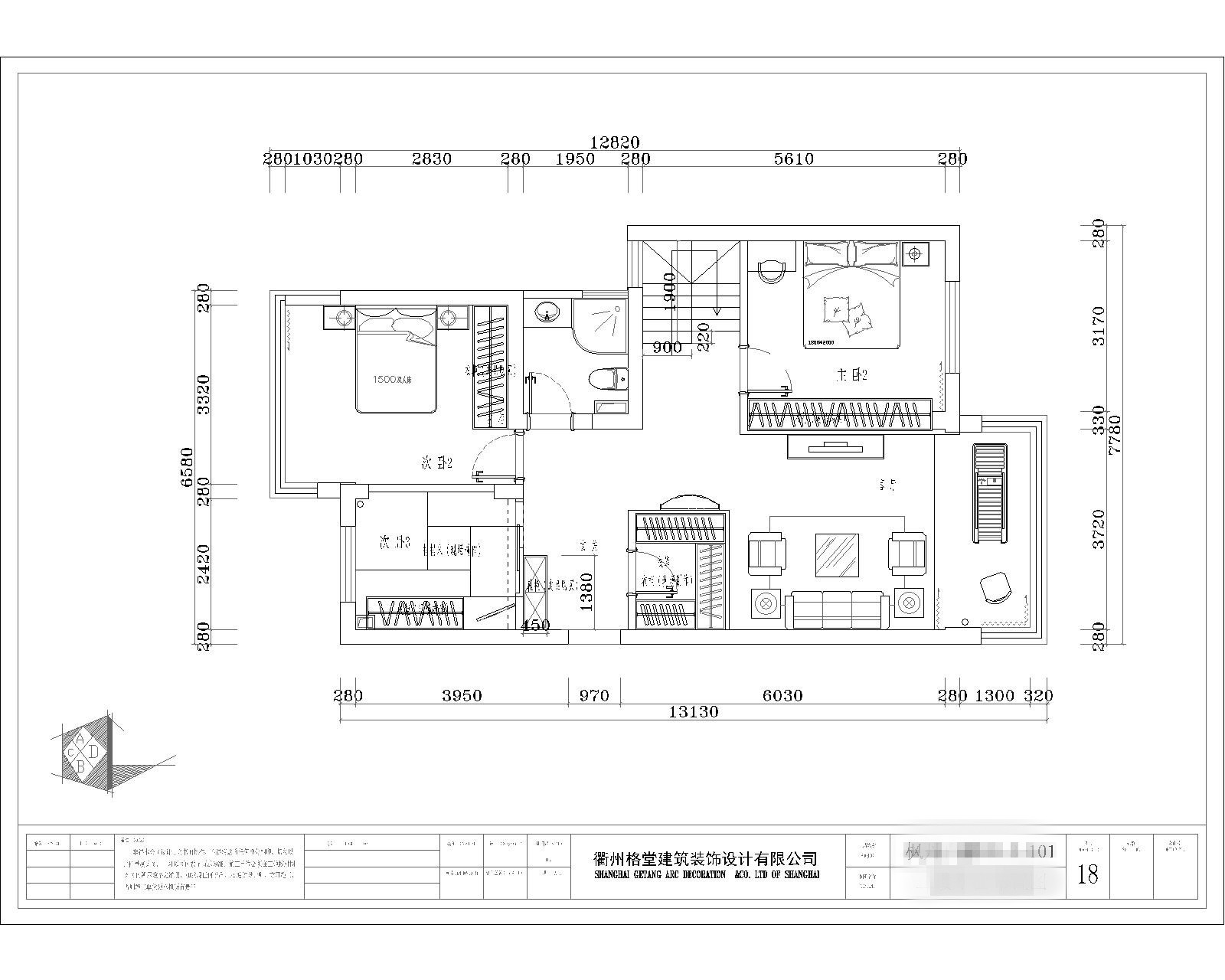
一层平面布置图


2222.jpg


回复 支持 反对

使用道具 举报

 楼主| 发表于 2018-7-7 09:48:18 | 显示全部楼层
二层原始结构图


3333.jpg


二层平面布置图


4444.jpg


回复 支持 反对

使用道具 举报

 楼主| 发表于 2018-7-7 09:48:41 | 显示全部楼层
1.jpg


回复 支持 反对

使用道具 举报

 楼主| 发表于 2018-7-7 09:49:02 | 显示全部楼层
1.jpg


回复 支持 反对

使用道具 举报

 楼主| 发表于 2018-7-7 09:49:20 | 显示全部楼层
1.jpg


回复 支持 反对

使用道具 举报

 楼主| 发表于 2018-7-7 09:49:46 | 显示全部楼层
1.jpg


回复 支持 反对

使用道具 举报

 楼主| 发表于 2018-7-7 09:50:12 | 显示全部楼层
1.jpg


回复 支持 反对

使用道具 举报

 楼主| 发表于 2018-7-7 09:52:18 | 显示全部楼层
恭祝业主大人开工大吉!



650915532106922552.jpg


82009998782725180.jpg


179343537035411466.jpg




回复 支持 反对

使用道具 举报

 楼主| 发表于 2018-7-7 09:52:55 | 显示全部楼层
敲墙现场


24507873444346486.jpg


41141643758612297.jpg


41173863142424474.jpg



回复 支持 反对

使用道具 举报

您需要登录后才可以回帖 登录 | 立即注册

本版积分规则

全国统一客服电话
0570-8028505

24x7小时免费咨询

  • 官方在线客服

    QQ客服:小西

    点击交谈

    QQ客服:良子

    点击交谈

    QQ客服:闵月

    点击交谈
  • 衢州市柯城区财富中心3号楼2楼

  • 衢州格堂装饰有限公司

  • 扫一扫关注官方微信

    获取一手特惠信息

快速回复 返回顶部 返回列表