• 手机版

    扫码体验手机版

  • 微信公众号

    扫码关注公众号

登录注册
游客您好
第三方账号登陆

[衢州] 枫丹白露22#125㎡北欧——爱上北欧

[复制链接]
发表于 2018-7-11 08:48:08 | 显示全部楼层 |阅读模式
枫丹白露22#125㎡北欧——爱上北欧

格堂装饰为您全程记录装修全过程!

小区名称
枫丹白露
房屋面积
125㎡
户型结构
平层
装修风格
北欧
装修方式
全包
装修造价
查看请联系客服万元
设计师
王工
项目经理
彭工
装修公司
格堂装饰
完工实景
完工实景
水电全景
水电全景
VR全景
VR全景
设计说明
北欧设计风格简约!主要指丹麦、瑞典、挪威、芬兰,综观北欧四国设计风格,的确是世界艺术设计王国中一道独特的风景,北欧设计回归自然,崇尚原木韵味,外加现代、实用、精美的艺术设计风格,反映出现代都市人进入后现代社会后的另一种思考方向。
更多信息
回复

使用道具 举报

 楼主| 发表于 2018-7-11 08:48:59 | 显示全部楼层
本帖最后由 格堂王晓 于 2018-7-11 10:35 编辑

原始结构图

128146494091223650.jpg



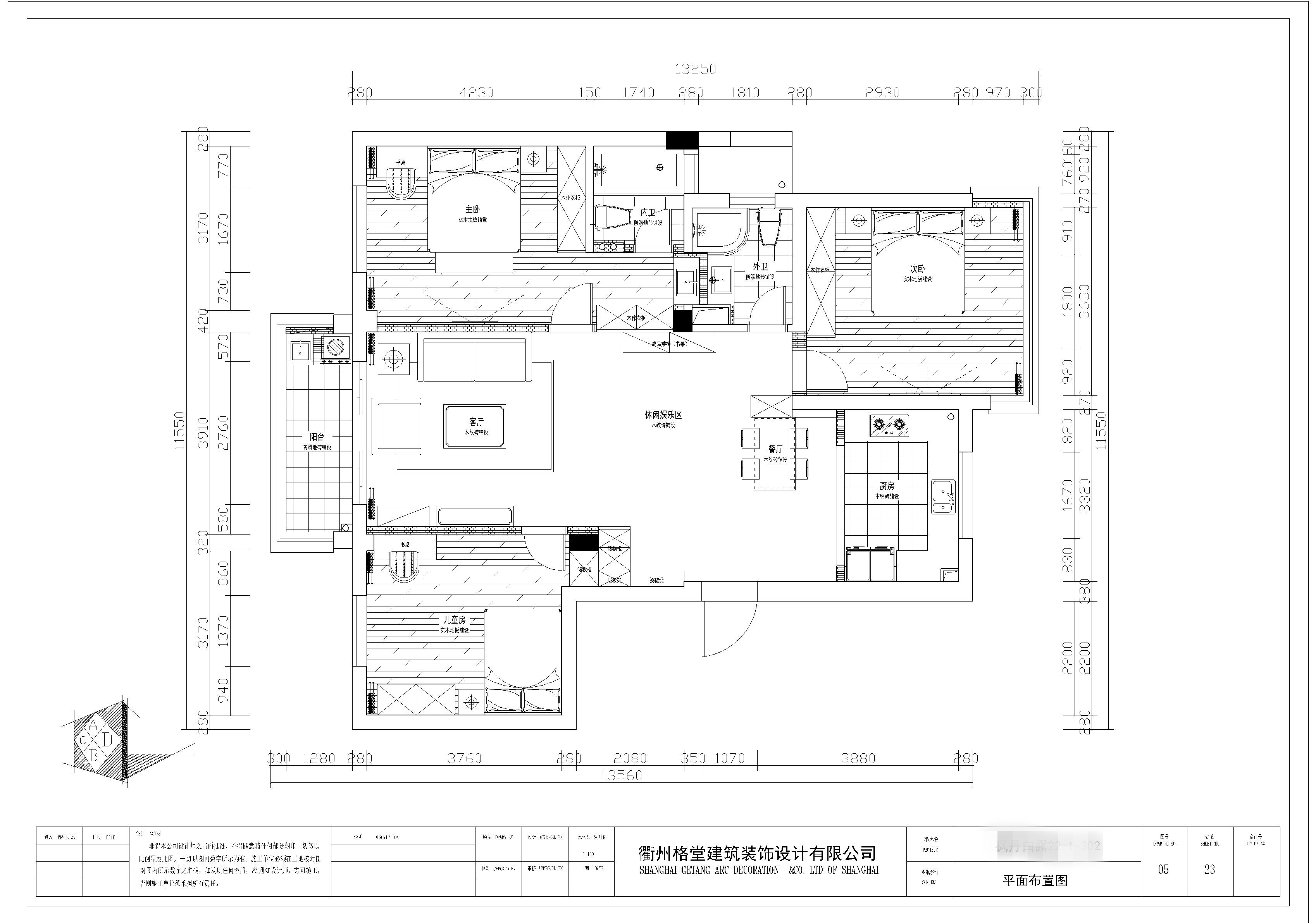
平面布置图

454205667456551295.jpg

回复 支持 反对

使用道具 举报

 楼主| 发表于 2018-7-11 08:51:57 | 显示全部楼层
1.jpg


回复 支持 反对

使用道具 举报

 楼主| 发表于 2018-7-11 08:53:03 | 显示全部楼层
1.jpg


回复 支持 反对

使用道具 举报

 楼主| 发表于 2018-7-11 08:53:25 | 显示全部楼层
1.jpg


回复 支持 反对

使用道具 举报

 楼主| 发表于 2018-7-11 08:53:51 | 显示全部楼层
1.jpg


回复 支持 反对

使用道具 举报

 楼主| 发表于 2018-7-11 08:54:19 | 显示全部楼层
1.jpg


回复 支持 反对

使用道具 举报

 楼主| 发表于 2018-7-11 08:55:01 | 显示全部楼层
入户门进行保护



494118336840616520.jpg


304015082647421523.jpg




回复 支持 反对

使用道具 举报

 楼主| 发表于 2018-7-11 08:59:51 | 显示全部楼层
下水管防堵塞到位



874201008520689284.jpg


777017703593542685.jpg


637670185340635050.jpg




回复 支持 反对

使用道具 举报

 楼主| 发表于 2018-7-11 10:12:01 | 显示全部楼层
临时马桶安装到位



142449080651824473.jpg


回复 支持 反对

使用道具 举报

您需要登录后才可以回帖 登录 | 立即注册

本版积分规则

全国统一客服电话
0570-8028505

24x7小时免费咨询

  • 官方在线客服

    QQ客服:小西

    点击交谈

    QQ客服:良子

    点击交谈

    QQ客服:闵月

    点击交谈
  • 衢州市柯城区财富中心3号楼2楼

  • 衢州格堂装饰有限公司

  • 扫一扫关注官方微信

    获取一手特惠信息

快速回复 返回顶部 返回列表