• 手机版

    扫码体验手机版

  • 微信公众号

    扫码关注公众号

登录注册
游客您好
第三方账号登陆

[衢州] 幸福家园59#119㎡北欧——北欧之家

[复制链接]
发表于 2018-7-7 16:58:10 | 显示全部楼层 |阅读模式
幸福家园59#119㎡北欧——北欧之家

格堂装饰为您全程记录装修全过程!

小区名称
幸福家园
房屋面积
119㎡
户型结构
平层
装修风格
北欧
装修方式
半包
装修造价
查看请联系客服万元
设计师
饶工
项目经理
王工
装修公司
格堂装饰
完工实景
完工实景
水电全景
水电全景
VR全景
VR全景
设计说明
待添加...
更多信息
回复

使用道具 举报

 楼主| 发表于 2018-7-7 16:59:35 | 显示全部楼层
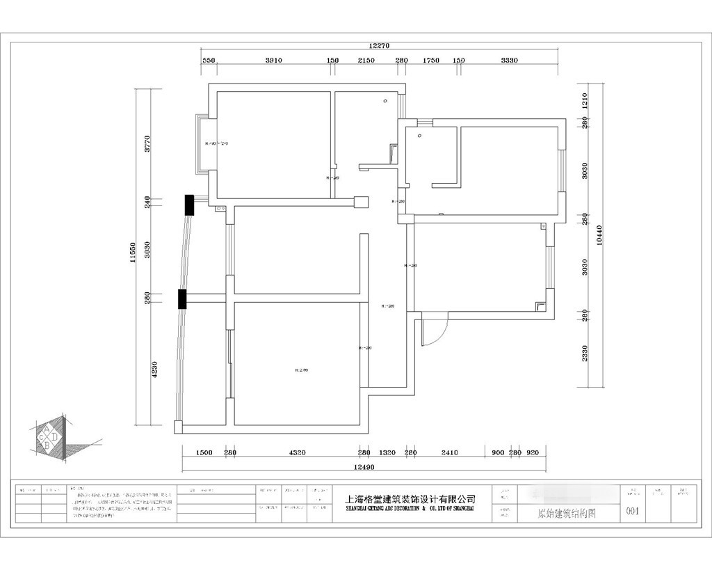
原始结构图



791977451212524335.jpg


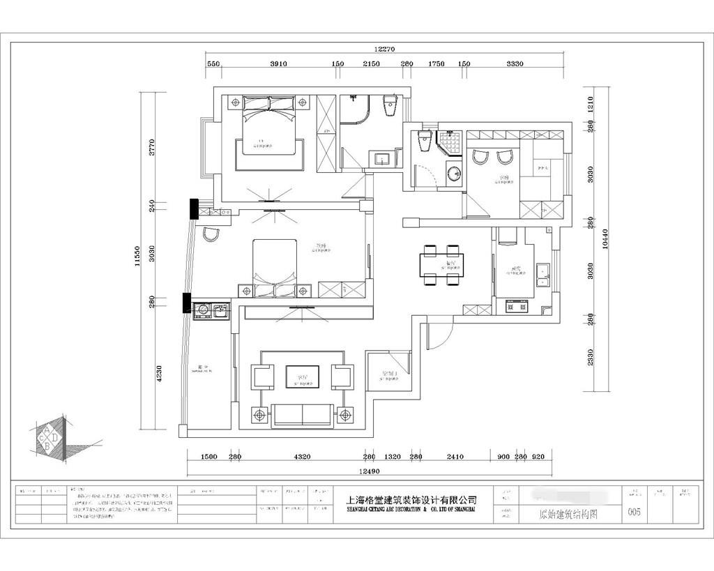
平面布置图



223301994082756620.jpg


回复 支持 反对

使用道具 举报

 楼主| 发表于 2018-7-7 17:00:01 | 显示全部楼层
1.jpg


回复 支持 反对

使用道具 举报

 楼主| 发表于 2018-7-7 17:01:58 | 显示全部楼层
1.jpg


回复 支持 反对

使用道具 举报

 楼主| 发表于 2018-7-7 17:02:15 | 显示全部楼层
1.jpg


回复 支持 反对

使用道具 举报

 楼主| 发表于 2018-7-7 17:02:47 | 显示全部楼层
1.jpg


回复 支持 反对

使用道具 举报

 楼主| 发表于 2018-7-7 17:03:27 | 显示全部楼层
1.jpg


回复 支持 反对

使用道具 举报

 楼主| 发表于 2018-7-7 17:04:27 | 显示全部楼层
入户门进行保护



565381751241115568.jpg




回复 支持 反对

使用道具 举报

 楼主| 发表于 2018-7-7 17:04:50 | 显示全部楼层
下水管防堵塞到位





566333691459594121.jpg


回复 支持 反对

使用道具 举报

 楼主| 发表于 2018-7-7 17:05:13 | 显示全部楼层
煤气表保护到位


725130485409998223.jpg


回复 支持 反对

使用道具 举报

您需要登录后才可以回帖 登录 | 立即注册

本版积分规则

全国统一客服电话
0570-8028505

24x7小时免费咨询

  • 官方在线客服

    QQ客服:小西

    点击交谈

    QQ客服:良子

    点击交谈

    QQ客服:闵月

    点击交谈
  • 衢州市柯城区财富中心3号楼2楼

  • 衢州格堂装饰有限公司

  • 扫一扫关注官方微信

    获取一手特惠信息

快速回复 返回顶部 返回列表