• 手机版

    扫码体验手机版

  • 微信公众号

    扫码关注公众号

登录注册
游客您好
第三方账号登陆

[龙游] 红树林B5#100㎡现代简约——新现代流行高级灰

[复制链接]
发表于 2017-4-7 16:20:43 | 显示全部楼层 |阅读模式
红树林B5#100㎡现代简约——新现代流行高级灰

格堂装饰为您全程记录装修全过程!

小区名称
红树林
房屋面积
100㎡
户型结构
套房
装修风格
现代
装修方式
半包
装修造价
查看请联系客服万元
设计师
何工
项目经理
周工
装修公司
格堂装饰
完工实景
完工实景
水电全景
水电全景
VR全景
VR全景
设计说明
待添加...
更多信息
回复

使用道具 举报

 楼主| 发表于 2017-4-7 16:22:47 | 显示全部楼层
本帖最后由 格堂小马 于 2017-6-16 09:19 编辑

客厅效果图
134379223410568724.jpg
餐厅效果图
28311579324566326.jpg
书房效果图
414337828810171412.jpg    设计说明:
  现代风格具有简洁造型、无过多的装饰、推崇科学合理的构造工艺,重视发挥材料的性能的特点。包豪斯学派注重展现建筑结构的形式美,探究材料自身的质地和色彩搭配的效果,实验以功能布局为核心的不对称非传统的构图方法。代风格家居重视功能和空间组织,注意发挥结构构成本身的形式美,造型简洁,反对多余装饰,崇尚合理的构成工艺,尊重材料的性能,讲究材料自身的质地和色彩的配置效果,发展了非传统的以功能布局为依据的不对称的构图手法。

回复 支持 反对

使用道具 举报

 楼主| 发表于 2017-4-7 16:29:30 | 显示全部楼层
本帖最后由 格堂小马 于 2017-6-16 09:20 编辑

原始结构图
50550977680600310.jpg
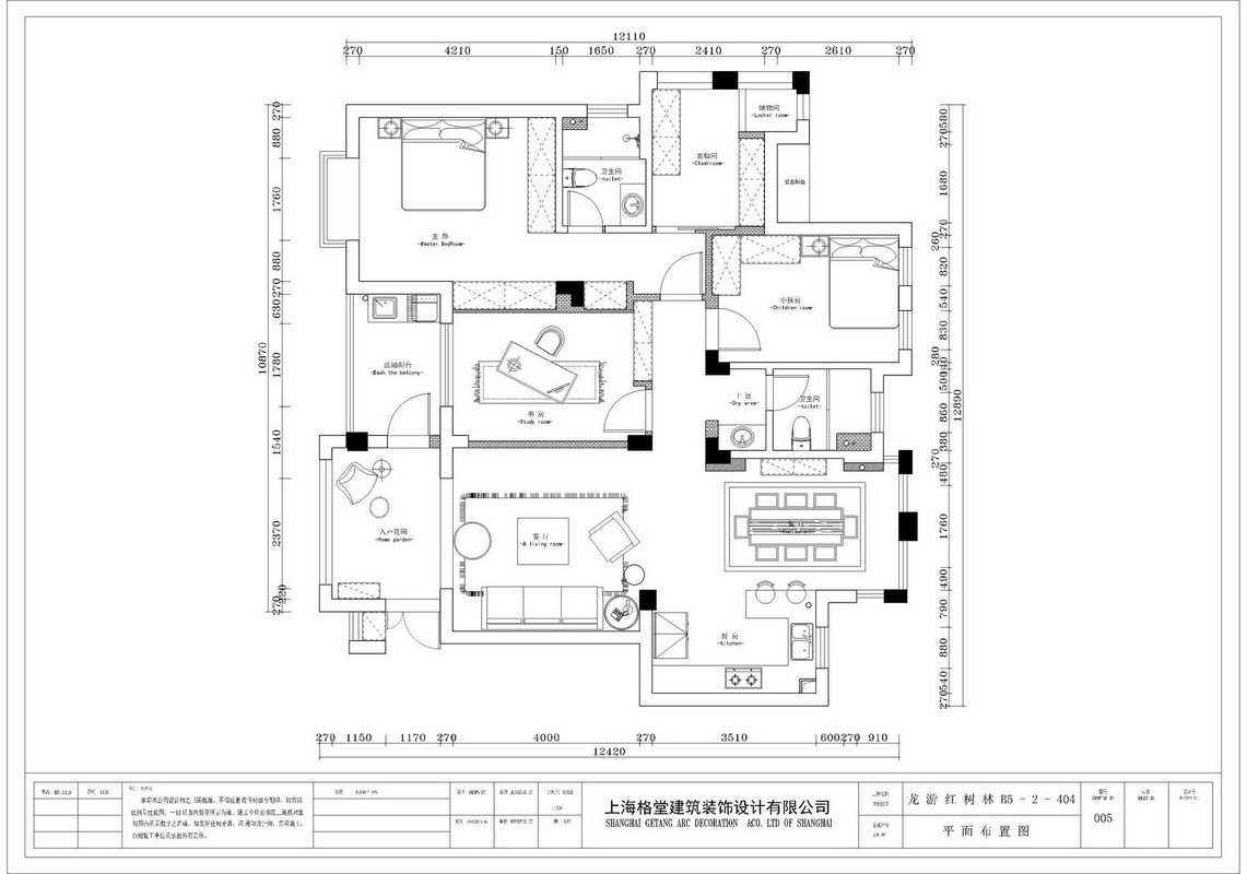
平面布置图
84262205968292023.jpg
回复 支持 反对

使用道具 举报

 楼主| 发表于 2017-4-7 16:30:02 | 显示全部楼层



回复

使用道具 举报

 楼主| 发表于 2017-4-7 16:31:03 | 显示全部楼层
本帖最后由 格堂小马 于 2017-4-7 16:32 编辑

红树林,我们来啦
IMG_5354.JPG

IMG_5336.JPG
回复 支持 反对

使用道具 举报

 楼主| 发表于 2017-4-7 16:31:38 | 显示全部楼层

开始做开工准备,今天是个好日子
IMG_5333.JPG
回复 支持 反对

使用道具 举报

 楼主| 发表于 2017-4-7 16:33:10 | 显示全部楼层

恭祝业主大人开工大吉大吉大利
IMG_5346.JPG
回复 支持 反对

使用道具 举报

 楼主| 发表于 2017-4-7 16:33:53 | 显示全部楼层

拆改放样
IMG_5331.JPG
IMG_5335.JPG
回复 支持 反对

使用道具 举报

 楼主| 发表于 2017-4-7 16:35:05 | 显示全部楼层

需要拆改的位置,标识出来
IMG_5339.JPG
IMG_5343.JPG
回复 支持 反对

使用道具 举报

 楼主| 发表于 2017-4-7 16:36:26 | 显示全部楼层

接下来铲灰,拆改
IMG_5352.JPG
IMG_5353.JPG
IMG_5355.JPG
回复 支持 反对

使用道具 举报

您需要登录后才可以回帖 登录 | 立即注册

本版积分规则

全国统一客服电话
0570-8028505

24x7小时免费咨询

  • 官方在线客服

    QQ客服:小西

    点击交谈

    QQ客服:良子

    点击交谈

    QQ客服:闵月

    点击交谈
  • 衢州市柯城区财富中心3号楼2楼

  • 衢州格堂装饰有限公司

  • 扫一扫关注官方微信

    获取一手特惠信息

快速回复 返回顶部 返回列表