[衢州] 阳光水岸9-3#122㎡现代简约——简洁时尚 |
|
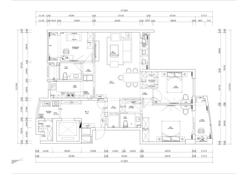
阳光水岸9-3#122㎡现代简约——简洁时尚
格堂装饰为您全程记录装修全过程! 设计说明
现代混搭风格是一种新风格衍生,由于现代生活与以往的生活习惯与审美发生很多的变化,但有些好的优点依旧保留下来,比如深色大气舒适的实木地板,难看耐脏的深色实木门,搭配上现代质感的沙发餐桌等家具,大理石台面飘窗,再搭配上鲜艳的软装,使得整个空间不仅经看耐用,而且具有现代朝气,本案业主是一对亲家给自己孩子的婚房装修,两家关系融洽,对婚房装修也非常上心,提了出很多实用的要求与建议,在此祝愿今后小两口和和美美,全家幸福安康!
更多信息
|
| |
| |


在线客服
微信客服
关注有礼