• 手机版

    扫码体验手机版

  • 微信公众号

    扫码关注公众号

登录注册
游客您好
第三方账号登陆

[衢州] 兰馨苑45幢#235㎡欧式——爱,北欧

[复制链接]
发表于 2016-7-26 09:13:15 | 显示全部楼层 |阅读模式
兰馨苑45幢#235㎡欧式——爱,北欧

格堂装饰为您全程记录装修全过程!

小区名称
兰馨苑
房屋面积
235㎡
户型结构
套房
装修风格
欧式
装修方式
半包
装修造价
查看请联系客服万元
设计师
毛工
项目经理
施工
装修公司
格堂装饰
完工实景
完工实景
水电全景
水电全景
VR全景
VR全景
设计说明
待添加...
更多信息
回复

使用道具 举报

 楼主| 发表于 2016-7-26 09:13:30 | 显示全部楼层
本帖最后由 格堂小徐 于 2016-7-26 11:21 编辑

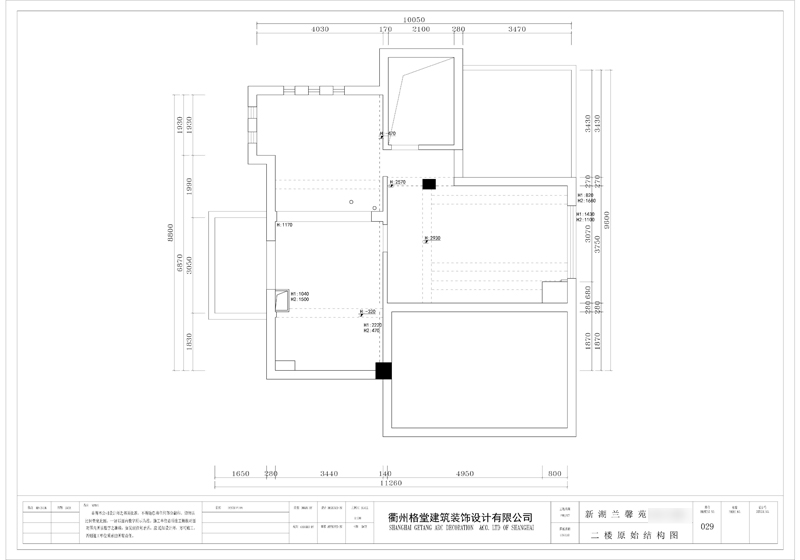
原始结构图:
新湖兰馨苑45二楼.jpg


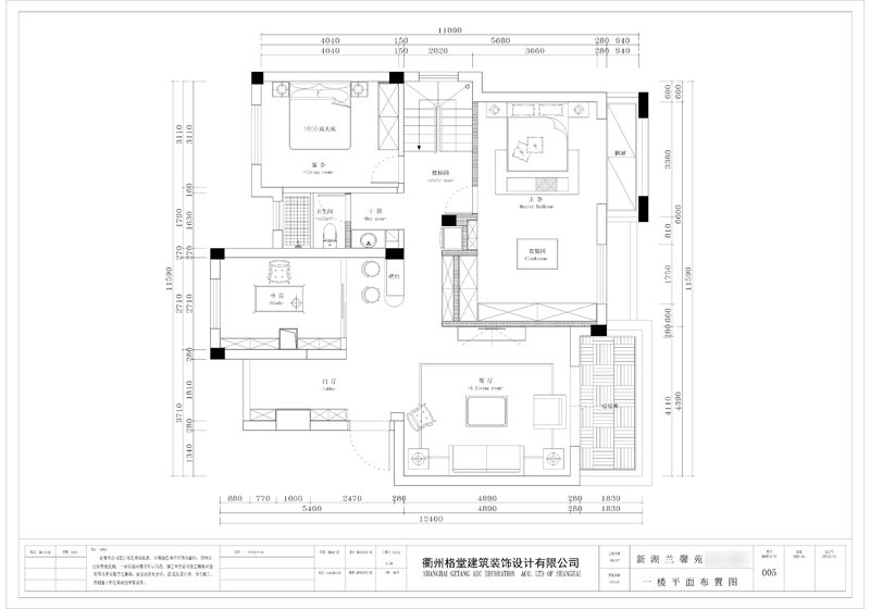
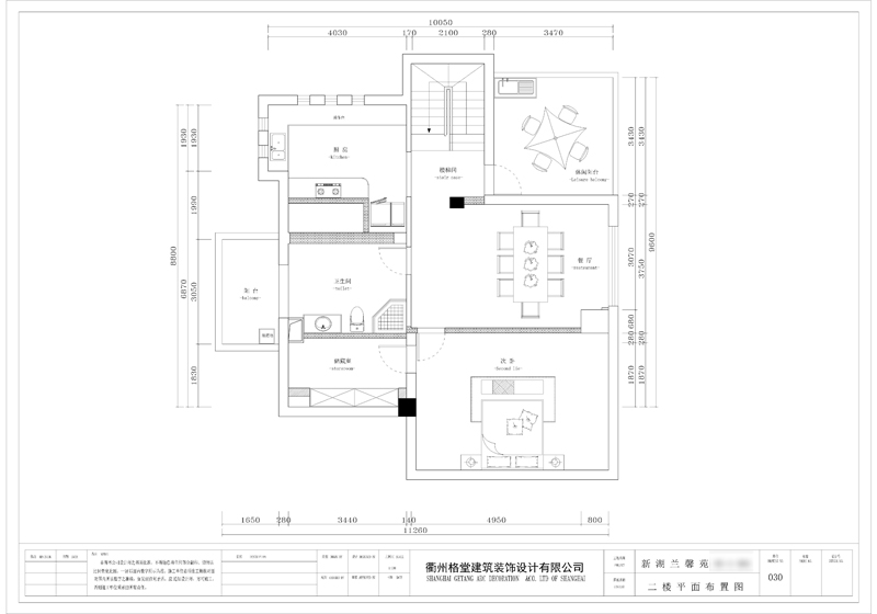
平面布置图:
新湖兰馨苑45一楼.jpg
新湖兰馨苑45-二楼.jpg
回复 支持 反对

使用道具 举报

 楼主| 发表于 2016-7-26 09:13:37 | 显示全部楼层

回复

使用道具 举报

 楼主| 发表于 2016-7-26 09:13:44 | 显示全部楼层

回复

使用道具 举报

 楼主| 发表于 2016-7-26 09:13:53 | 显示全部楼层

回复

使用道具 举报

 楼主| 发表于 2016-7-26 09:14:00 | 显示全部楼层

回复

使用道具 举报

 楼主| 发表于 2016-7-26 09:14:06 | 显示全部楼层

回复

使用道具 举报

 楼主| 发表于 2016-7-26 09:14:12 | 显示全部楼层

回复

使用道具 举报

 楼主| 发表于 2016-7-26 09:45:07 | 显示全部楼层
前期我们把现浇楼梯给做起来
529087471579355268.jpg
99358573892819150.jpg
54711808095983027.jpg


回复 支持 反对

使用道具 举报

 楼主| 发表于 2016-7-26 09:47:03 | 显示全部楼层
本帖最后由 格堂小徐 于 2016-7-26 09:48 编辑

现浇部分前期已完成,等保养好了这些框架就可以拆掉了
123288923163877049.jpg
213430893584936758.jpg
408536989009226269.jpg
回复 支持 反对

使用道具 举报

您需要登录后才可以回帖 登录 | 立即注册

本版积分规则

全国统一客服电话
0570-8028505

24x7小时免费咨询

  • 官方在线客服

    QQ客服:小西

    点击交谈

    QQ客服:良子

    点击交谈

    QQ客服:闵月

    点击交谈
  • 衢州市柯城区财富中心3号楼2楼

  • 衢州格堂装饰有限公司

  • 扫一扫关注官方微信

    获取一手特惠信息

快速回复 返回顶部 返回列表