• 手机版

    扫码体验手机版

  • 微信公众号

    扫码关注公众号

登录注册
游客您好
第三方账号登陆

[衢州] 国风澜园19-#497㎡——流动的风

[复制链接]
 楼主| 发表于 2024-12-12 16:00:31 | 显示全部楼层
三层原始结构图

三层原始图.jpg
回复 支持 反对

使用道具 举报

 楼主| 发表于 2024-12-12 16:01:12 | 显示全部楼层
三层平面布置图

三层平面图.jpg
回复 支持 反对

使用道具 举报

 楼主| 发表于 2024-12-12 16:01:29 | 显示全部楼层
四层原始结构图

四层原始图.jpg
回复 支持 反对

使用道具 举报

 楼主| 发表于 2024-12-12 16:01:52 | 显示全部楼层
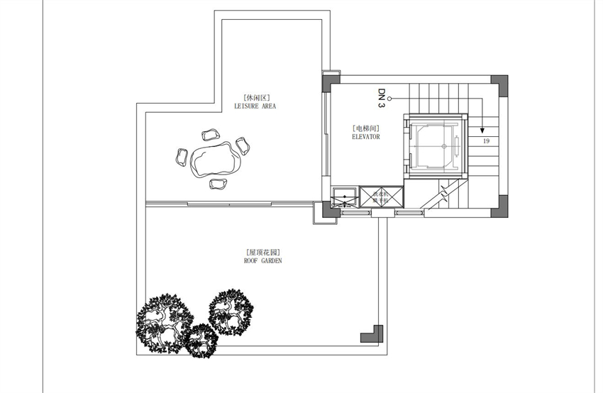
四层平面布置图

四层平面图.jpg
回复 支持 反对

使用道具 举报

 楼主| 发表于 2024-12-12 16:02:58 | 显示全部楼层
开工前,大门已保护好
微信图片_20241031112316.jpg

微信图片_20241031112318.jpg

微信图片_20241031112326.jpg

微信图片_20241106145443.jpg





回复 支持 反对

使用道具 举报

 楼主| 发表于 2024-12-12 16:03:27 | 显示全部楼层
煤气表已经保护到位

微信图片_20241031112254.jpg
回复 支持 反对

使用道具 举报

 楼主| 发表于 2024-12-12 16:03:48 | 显示全部楼层
临时小便池已经安放好了:每一个施工现场都会配备临时小便斗,并且时刻保持干净卫生,保证工地环境干净整洁
回复 支持 反对

使用道具 举报

 楼主| 发表于 2024-12-12 16:04:29 | 显示全部楼层
开工仪式准备,开工横幅、鲜花、礼花准备到位,就等吉时!

微信图片_20241031112323.jpg

微信图片_20241031112350.jpg
回复 支持 反对

使用道具 举报

 楼主| 发表于 2024-12-12 16:05:17 | 显示全部楼层
吉时到开工了,恭祝业主大人开工大吉,热热闹闹满堂红
微信图片_20241031112330.jpg

微信图片_20241031112333.jpg

微信图片_20241031112337.jpg





回复 支持 反对

使用道具 举报

 楼主| 发表于 2024-12-12 16:05:45 | 显示全部楼层
开工第一锤,由业主敲在要拆除的墙体的墙角上,象征一锤定音,也代表着新房动土。

微信图片_20241031112346.png
回复 支持 反对

使用道具 举报

您需要登录后才可以回帖 登录 | 立即注册

本版积分规则

全国统一客服电话
0570-8028505

24x7小时免费咨询

  • 官方在线客服

    QQ客服:小西

    点击交谈

    QQ客服:良子

    点击交谈

    QQ客服:闵月

    点击交谈
  • 衢州市柯城区财富中心3号楼2楼

  • 衢州格堂装饰有限公司

  • 扫一扫关注官方微信

    获取一手特惠信息

快速回复 返回顶部 返回列表