[衢州] 国风澜园19-#497㎡——流动的风 |
|
国风澜园19-#497㎡——流动的风
格堂装饰为您全程记录装修全过程! 设计说明
设计主题: 流动的风
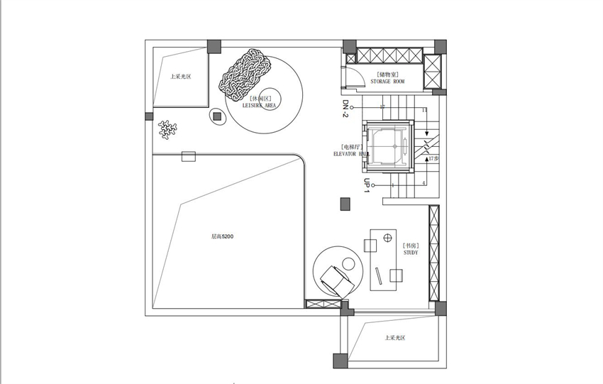
设计理念:本项目为国风澜园19-5的室内设计,旨在打造一个融合现代审美于一体的居住空间。项目由王斌耀与徐美玲共同负责设计,杨少君担任施工负责人,采用半包的合作方式。 本项目为国风澜园19-5的室内设计,旨在打造一个融合现代审美于一体的居住空间。项目由王斌耀与徐美玲共同负责设计,杨少君担任施工负责人,采用半包的合作方式。 本次设计的核心理念为“流动的风”,寓意着传统与现代、静谧与灵动之间的和谐交融。我们希望通过设计,让每一位居住者都能感受到如春风拂面般的舒适与愉悦。注重空间的通透感和流动性,采用开放式设计,使各个功能区域相互渗透,增强空间的互动性。 在施工过程中,我们严格把控材料质量和工艺流程,确保每一个细节都能达到设计预期。同时,与施工团队紧密合作,共同解决施工过程中遇到的问题,确保项目顺利进行。 更多信息
| |
|
|


在线客服
微信客服
关注有礼