• 手机版

    扫码体验手机版

  • 微信公众号

    扫码关注公众号

登录注册
游客您好
第三方账号登陆

[衢州] 花园岗小区3-1-20#95㎡现代简约——【淡雅】

[复制链接]
发表于 2022-7-17 15:02:12 | 显示全部楼层 |阅读模式
【淡雅】

格堂装饰为您全程记录装修全过程!

小区名称
花园岗小区
房屋面积
127㎡
户型结构
套房
装修风格
现代
装修方式
半包
装修造价
查看请联系客服万元
设计师
徐工
项目经理
刘工
装修公司
格堂装饰
完工实景
完工实景
水电全景
水电全景
VR全景
VR全景
设计说明
本案设计从生活方式中汲取灵感,采用个性化的方法,注重形式、颜色、工艺、细节和品味,创造现代时尚和令人难忘的空间。
更多信息
本帖最后由 格堂飞飞 于 2022-8-9 17:23 编辑

效果图
IMG_7077.JPG

IMG_7078.JPG

回复

使用道具 举报

 楼主| 发表于 2022-7-17 15:02:30 | 显示全部楼层
回复 支持 反对

使用道具 举报

 楼主| 发表于 2022-7-17 15:02:57 | 显示全部楼层
本帖最后由 格堂飞飞 于 2022-8-9 14:24 编辑

原始结构图
QQ浏览器截图20220717145424.png
回复 支持 反对

使用道具 举报

 楼主| 发表于 2022-7-17 15:03:14 | 显示全部楼层

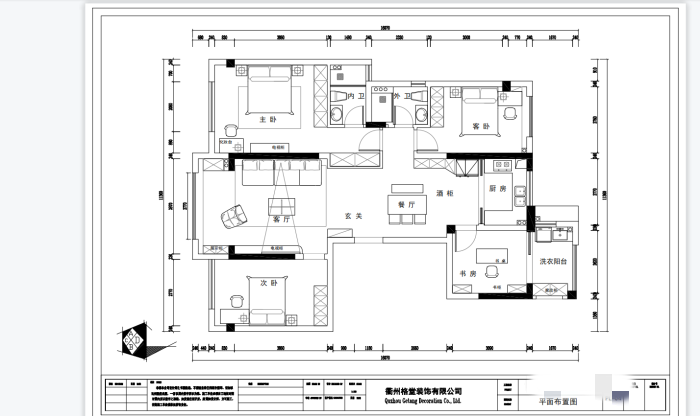
平面布置图
QQ浏览器截图20220717145520.png
回复 支持 反对

使用道具 举报

 楼主| 发表于 2022-7-17 15:10:52 | 显示全部楼层
开工前准备工作,先要做好哦!
IMG_4252.JPG
项目经理正在做,开工前的准备工作。
IMG_4253.JPG

IMG_4254.JPG
回复 支持 反对

使用道具 举报

 楼主| 发表于 2022-7-17 15:12:27 | 显示全部楼层

临时马桶安装好了,要讲究卫生哦!
IMG_4258.JPG
回复 支持 反对

使用道具 举报

 楼主| 发表于 2022-7-17 15:13:33 | 显示全部楼层

下水管用格堂专用保护盖保护,防止砂石堵塞管道。

IMG_4256.JPG

IMG_4257.JPG
回复 支持 反对

使用道具 举报

 楼主| 发表于 2022-7-17 15:14:36 | 显示全部楼层

一切准备就绪,就等开工吉时啦!
IMG_4263.JPG

IMG_4264.JPG
回复 支持 反对

使用道具 举报

 楼主| 发表于 2022-7-17 15:16:02 | 显示全部楼层

吉时已到,恭祝业主大人,开工大吉!
IMG_4270.JPG
回复 支持 反对

使用道具 举报

 楼主| 发表于 2022-7-17 15:17:10 | 显示全部楼层

开工第一锤,由业主大人,亲自来哦!
IMG_4268.JPG
回复 支持 反对

使用道具 举报

您需要登录后才可以回帖 登录 | 立即注册

本版积分规则

全国统一客服电话
0570-8028505

24x7小时免费咨询

  • 官方在线客服

    QQ客服:小西

    点击交谈

    QQ客服:良子

    点击交谈

    QQ客服:闵月

    点击交谈
  • 衢州市柯城区财富中心3号楼2楼

  • 衢州格堂装饰有限公司

  • 扫一扫关注官方微信

    获取一手特惠信息

快速回复 返回顶部 返回列表