• 手机版

    扫码体验手机版

  • 微信公众号

    扫码关注公众号

登录注册
游客您好
第三方账号登陆

[衢州] 壹号院9-1-3#90㎡ 现代——家·阖

[复制链接]
发表于 2022-2-17 09:35:52 | 显示全部楼层 |阅读模式
家·阖

格堂装饰为您全程记录装修全过程!

小区名称
壹号院
房屋面积
90㎡
户型结构
套房
装修风格
现代
装修方式
半包
装修造价
查看请联系客服万元
设计师
杨工
项目经理
傅工
装修公司
格堂装饰
完工实景
完工实景
水电全景
水电全景
VR全景
VR全景
设计说明
家,是温暖的港湾;家,是心灵的的归宿;家,是感情的寄托
更多信息

效果图
840f8508e6fd64603983ac8a45292cd.jpg

回复

使用道具 举报

 楼主| 发表于 2022-2-17 09:36:14 | 显示全部楼层
回复 支持 反对

使用道具 举报

 楼主| 发表于 2022-2-17 09:36:30 | 显示全部楼层

原始结构图
80523f40f848c0e1e5d769c34af867e.jpg
回复 支持 反对

使用道具 举报

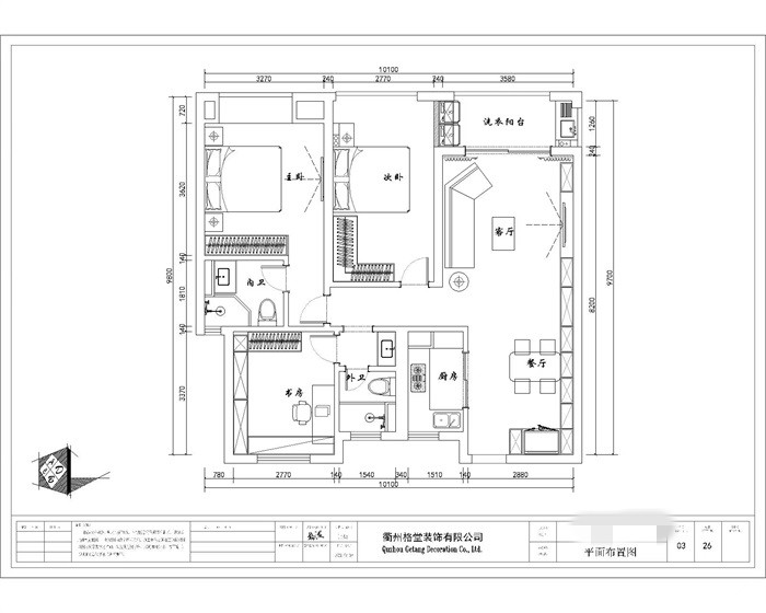
 楼主| 发表于 2022-2-17 09:36:49 | 显示全部楼层

平面布置图
f01f404b91e78965d3936a2a03e7830.jpg
回复 支持 反对

使用道具 举报

 楼主| 发表于 2022-2-17 09:37:47 | 显示全部楼层

开工前大门,先要保护起来,防止磕碰哦!
IMG_3949.JPG
回复 支持 反对

使用道具 举报

 楼主| 发表于 2022-2-17 09:39:51 | 显示全部楼层
本帖最后由 格堂飞飞 于 2022-2-17 16:55 编辑

今天是个好日子,就等开工吉时啦!
IMG_3948.JPG
回复 支持 反对

使用道具 举报

 楼主| 发表于 2022-2-17 09:40:26 | 显示全部楼层

吉时已到,恭祝业主大人,开工大吉!
IMG_3941.JPG
回复 支持 反对

使用道具 举报

 楼主| 发表于 2022-2-17 09:43:40 | 显示全部楼层
本帖最后由 格堂飞飞 于 2022-2-17 09:45 编辑

开工第一锤,由业主大人,亲自来哦,装修开工第一锤应该由业主敲在要拆除的墙体的墙角(即拐角)上,象征一锤定音的意思,也是新房动土的一种表示方式。 IMG_3940.JPG
回复 支持 反对

使用道具 举报

 楼主| 发表于 2022-2-17 09:46:21 | 显示全部楼层

设计师和业主,正在墙面拆改放样。
IMG_3942.JPG

IMG_3946.JPG

IMG_3947.JPG
回复 支持 反对

使用道具 举报

 楼主| 发表于 2022-2-17 09:47:07 | 显示全部楼层

墙面拆改标识到位,方便师傅施工!
IMG_3944.JPG

IMG_3945.JPG

IMG_3943.JPG
回复 支持 反对

使用道具 举报

您需要登录后才可以回帖 登录 | 立即注册

本版积分规则

全国统一客服电话
0570-8028505

24x7小时免费咨询

  • 官方在线客服

    QQ客服:小西

    点击交谈

    QQ客服:良子

    点击交谈

    QQ客服:闵月

    点击交谈
  • 衢州市柯城区财富中心3号楼2楼

  • 衢州格堂装饰有限公司

  • 扫一扫关注官方微信

    获取一手特惠信息

快速回复 返回顶部 返回列表