• 手机版

    扫码体验手机版

  • 微信公众号

    扫码关注公众号

登录注册
游客您好
第三方账号登陆

[衢州] 牡丹园7-3-50#169㎡日式—日式暖意住宅,逐光而居,向阳而生

[复制链接]
发表于 2020-10-11 17:15:52 | 显示全部楼层 |阅读模式
日式暖意住宅,逐光而居,向阳而生

格堂装饰为您全程记录装修全过程!

小区名称
牡丹园
房屋面积
169㎡
户型结构
套房
装修风格
日式
装修方式
半包
装修造价
查看请联系客服万元
设计师
王工
项目经理
周工
装修公司
格堂装饰
完工实景
完工实景
水电全景
水电全景
VR全景
VR全景
设计说明
日式暖意住宅,逐光而居,向阳而生

设计理念:择一地而居,自然为邻,花草相伴,温暖且向阳。
悄悄藏起自然的馈赠,植一片属于自己的“森林”。
看几回花开,拾几片落叶,满城春风拂过心湖。
即遇隆冬,也有了春色……
更多信息

回复

使用道具 举报

 楼主| 发表于 2020-10-11 17:20:51 | 显示全部楼层
效果图

微信图片_20201011171211.jpg

微信图片_20201011171217.jpg
回复 支持 反对

使用道具 举报

 楼主| 发表于 2020-10-11 17:21:16 | 显示全部楼层
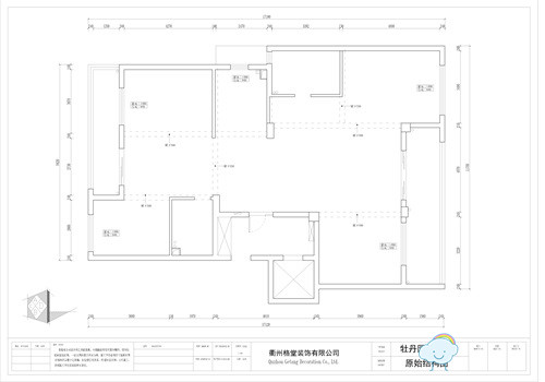
原始结构图


微信图片_20201011171153.jpg

平面布置图


微信图片_20201011171206.jpg
回复 支持 反对

使用道具 举报

 楼主| 发表于 2020-10-11 17:21:53 | 显示全部楼层
开工之前做好准备工作


微信图片_20201007155737.jpg

微信图片_202010071557371.jpg


回复 支持 反对

使用道具 举报

 楼主| 发表于 2020-10-11 17:22:20 | 显示全部楼层
开工大吉


微信图片_202010071557378.jpg

装修开工第一锤应该由业主敲在要拆除的墙体的墙角(即拐角)上,象征一锤定音的意思,也是新房动土的一种表示方式。


微信图片_202010071557376.jpg
回复 支持 反对

使用道具 举报

 楼主| 发表于 2020-10-21 16:10:31 | 显示全部楼层
铲灰,是为了防止墙体出现空鼓,在做好油漆后,不会有墙体整块油漆脱落的现象。


IMG_20201014_114640.jpg


IMG_20201014_114643.jpg



IMG_20201014_114642.jpg


IMG_20201014_114651.jpg


IMG_20201014_114656.jpg
回复 支持 反对

使用道具 举报

 楼主| 发表于 2020-10-21 16:10:50 | 显示全部楼层
铲灰,是为了防止墙体出现空鼓,在做好油漆后,不会有墙体整块油漆脱落的现象。


IMG_20201014_114701.jpg

IMG_20201014_114703.jpg


IMG_20201014_114702.jpg


IMG_20201014_114707.jpg


IMG_20201014_114710.jpg
回复 支持 反对

使用道具 举报

 楼主| 发表于 2020-10-21 16:11:56 | 显示全部楼层
新老墙交接处,粉刷层剥落,后期新砌的墙体和老墙结合才会牢固


IMG_20201014_114720.jpg



IMG_20201014_114713.jpg


IMG_20201014_114712.jpg


IMG_20201014_114722.jpg



IMG_20201014_114724.jpg
回复 支持 反对

使用道具 举报

 楼主| 发表于 2020-10-21 16:12:43 | 显示全部楼层
墙体拆除


IMG_20201014_114727.jpg




IMG_20201014_114733.jpg


IMG_20201014_114734.jpg


IMG_20201014_114736.jpg


IMG_20201014_114739.jpg

回复 支持 反对

使用道具 举报

 楼主| 发表于 2020-10-21 16:13:11 | 显示全部楼层
施工工地保持干净


IMG_20201014_114743.jpg

IMG_20201014_114754.jpg


IMG_20201014_114747.jpg


IMG_20201014_114755.jpg


IMG_20201014_114757.jpg
回复 支持 反对

使用道具 举报

您需要登录后才可以回帖 登录 | 立即注册

本版积分规则

全国统一客服电话
0570-8028505

24x7小时免费咨询

  • 官方在线客服

    QQ客服:小西

    点击交谈

    QQ客服:良子

    点击交谈

    QQ客服:闵月

    点击交谈
  • 衢州市柯城区财富中心3号楼2楼

  • 衢州格堂装饰有限公司

  • 扫一扫关注官方微信

    获取一手特惠信息

快速回复 返回顶部 返回列表