• 手机版

    扫码体验手机版

  • 微信公众号

    扫码关注公众号

登录注册
游客您好
第三方账号登陆

[衢州] 春江月15-2-120#110㎡北欧 —-不浓烈,也不冷清,落落大方刚刚好

[复制链接]
发表于 2020-7-12 09:01:07 | 显示全部楼层 |阅读模式
不浓烈,也不冷清,落落大方刚刚好

格堂装饰为您全程记录装修全过程!

小区名称
春江月
房屋面积
110㎡
户型结构
复式
装修风格
北欧
装修方式
半包
装修造价
查看请联系客服万元
设计师
胡工
项目经理
彭工
装修公司
格堂装饰
完工实景
完工实景
水电全景
水电全景
VR全景
VR全景
设计说明
空间如同一面镜子,映照出居者的内心世界,

当你凝视空间时,空间也在凝视你”
在经典与潮流的凝练蜕变中,

优雅,
是艺术所散发的美学,
是凝练的精神体现。
更多信息

回复

使用道具 举报

 楼主| 发表于 2020-7-12 09:04:22 | 显示全部楼层
原始结构图



微信图片_20200712085355.jpg



微信图片_20200712085436.jpg



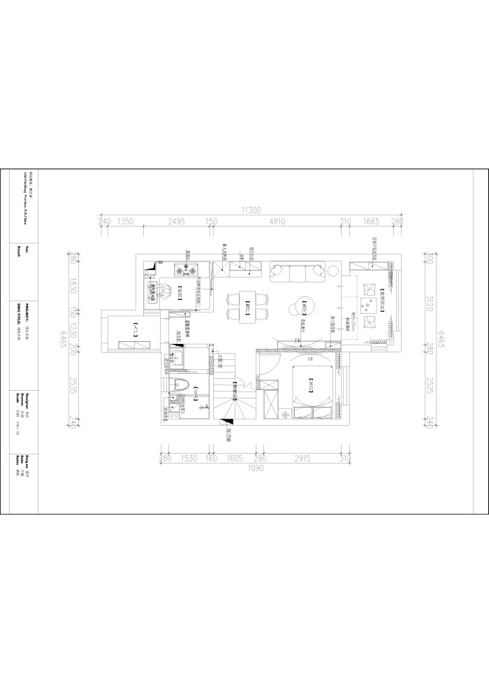
平面布置图



微信图片_20200712085432.jpg



微信图片_20200712085439.jpg
回复 支持 反对

使用道具 举报

 楼主| 发表于 2020-7-12 09:06:52 | 显示全部楼层
效果图



回复

使用道具 举报

 楼主| 发表于 2020-7-12 09:14:16 | 显示全部楼层
开工吉时已到

IMG_20200705_073028.jpg


装修开工第一锤应该敲在要拆除的墙体的墙角(即拐角)上,象征一锤定音的意思,也是新房动土的一种表示方式



IMG_20200705_072826.jpg



回复 支持 反对

使用道具 举报

 楼主| 发表于 2020-7-12 09:15:09 | 显示全部楼层
临时马桶安放到位,时刻保持工地卫生干净



IMG_20200705_073130.jpg


煤气表保护到位


IMG_20200705_071720.jpg

回复 支持 反对

使用道具 举报

 楼主| 发表于 2020-7-12 09:18:55 | 显示全部楼层
开工之前电梯墙面用格堂专用保护膜保护到位



IMG_20200710_074833.jpg


IMG_20200710_074835.jpg


IMG_20200710_074838.jpg




IMG_20200710_074849.jpg



IMG_20200710_074851.jpg
回复 支持 反对

使用道具 举报

 楼主| 发表于 2020-7-12 09:35:41 | 显示全部楼层


电梯地面墙面保护到位

IMG_20200710_074853.jpg



IMG_20200710_074859.jpg


IMG_20200710_074855.jpg



IMG_20200710_074901.jpg



IMG_20200710_074904.jpg
回复 支持 反对

使用道具 举报

 楼主| 发表于 2020-7-12 09:36:52 | 显示全部楼层




IMG_20200710_074920.jpg



IMG_20200710_074922.jpg


IMG_20200710_074924.jpg



IMG_20200710_074926.jpg

大门保护到位,防止后期破坏到

IMG_20200710_074933.jpg
回复 支持 反对

使用道具 举报

 楼主| 发表于 2020-7-12 09:37:45 | 显示全部楼层
IMG_20200710_074936.jpg


拆改阶段


微信图片_20200712091355.jpg



微信图片_20200712091343.jpg
回复 支持 反对

使用道具 举报

 楼主| 发表于 2020-7-12 09:38:11 | 显示全部楼层
客厅


IMG_20200710_075005.jpg



IMG_20200710_075008.jpg



IMG_20200710_075014.jpg



IMG_20200710_075017.jpg
回复 支持 反对

使用道具 举报

您需要登录后才可以回帖 登录 | 立即注册

本版积分规则

全国统一客服电话
0570-8028505

24x7小时免费咨询

  • 官方在线客服

    QQ客服:小西

    点击交谈

    QQ客服:良子

    点击交谈

    QQ客服:闵月

    点击交谈
  • 衢州市柯城区财富中心3号楼2楼

  • 衢州格堂装饰有限公司

  • 扫一扫关注官方微信

    获取一手特惠信息

快速回复 返回顶部 返回列表