• 手机版

    扫码体验手机版

  • 微信公众号

    扫码关注公众号

登录注册
游客您好
第三方账号登陆

[衢州] 牡丹园7-2-150#177㎡ 新中式—-都市东方韵

[复制链接]
发表于 2020-3-6 16:04:56 | 显示全部楼层 |阅读模式
都市东方韵

格堂装饰为您全程记录装修全过程!

小区名称
牡丹园
房屋面积
177㎡
户型结构
套房
装修风格
新中式
装修方式
半包
装修造价
查看请联系客服万元
设计师
王工
项目经理
刘工
装修公司
格堂装饰
完工实景
完工实景
水电全景
水电全景
VR全景
VR全景
设计说明
设计汲取东方的美学精髓,活用中式的古雅与诗韵,


为都市提供一种当代东方人居体验,清风徐来,安适自在。


整体透露深厚底蕴的传统文化,


从家具的选型、色泽到花鸟图的写意,


均镌刻着东方诗性的肌理,流露出优雅自信的悠悠风骨。
更多信息

回复

使用道具 举报

 楼主| 发表于 2020-3-6 16:06:30 | 显示全部楼层
效果图
微信图片_20200306155607.jpg


微信图片_20200306155619.jpg
回复 支持 反对

使用道具 举报

 楼主| 发表于 2020-3-6 16:06:55 | 显示全部楼层
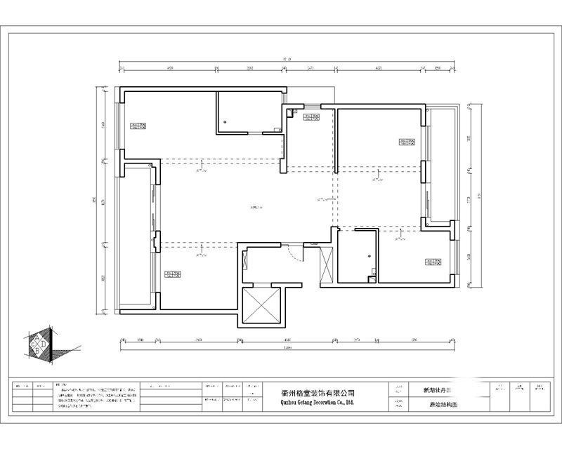
原始结构图

微信图片_20200306155624.jpg


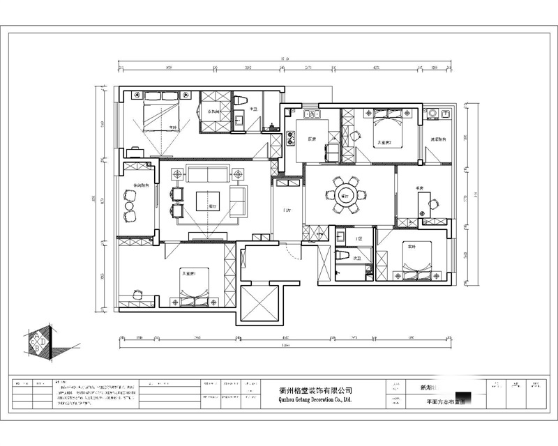
平面布置图


微信图片_20200306155627.jpg
回复 支持 反对

使用道具 举报

 楼主| 发表于 2020-3-6 16:09:26 | 显示全部楼层
开工道具准备到位

IMG_20200301_082756.jpg

IMG_20200301_082942.jpg


IMG_20200301_083113.jpg


IMG_20200301_083115.jpg
回复 支持 反对

使用道具 举报

 楼主| 发表于 2020-3-6 16:10:02 | 显示全部楼层
施工之前电梯地面墙面保护到位

IMG_20200301_083124.jpg


IMG_20200301_083127.jpg


IMG_20200301_083129.jpg



IMG_20200301_083144.jpg



IMG_20200301_083139.jpg
回复 支持 反对

使用道具 举报

 楼主| 发表于 2020-3-6 16:10:40 | 显示全部楼层
瓷砖用格堂专用保护膜保护到位

IMG_20200301_083147.jpg


IMG_20200301_083150.jpg


IMG_20200301_083152.jpg



IMG_20200301_083155.jpg
回复 支持 反对

使用道具 举报

 楼主| 发表于 2020-3-6 16:11:40 | 显示全部楼层
开工之前煤气表保护到位

IMG_20200301_083202.jpg
回复 支持 反对

使用道具 举报

 楼主| 发表于 2020-3-6 16:12:27 | 显示全部楼层
开工仪式很短暂,家居装修却很长……与漫漫人生历程相比,这些短短一瞬,却包含了满满的心意。我们竭力用自己的专业技能,让每位业主拥有最接近梦想的家。
恭祝开工大吉!!!


IMG_20200301_082854.jpg


装修开工,第一锤应该敲在要拆除的墙体的墙角及拐角上,象征一槌定音的意思,也是新房动土的一种表示方式


IMG_20200301_082937.jpg


回复 支持 反对

使用道具 举报

 楼主| 发表于 2020-3-6 16:13:30 | 显示全部楼层
拆改阶段

IMG_20200303_103909.jpg


IMG_20200303_103917.jpg


IMG_20200303_103920.jpg


IMG_20200303_103923.jpg


IMG_20200303_103928.jpg


IMG_20200303_103929.jpg
回复 支持 反对

使用道具 举报

 楼主| 发表于 2020-3-6 16:14:19 | 显示全部楼层

墙体拆除

IMG_20200303_103942.jpg


IMG_20200303_103945.jpg


IMG_20200303_104001.jpg


IMG_20200303_103956.jpg


IMG_20200303_103931.jpg
回复 支持 反对

使用道具 举报

您需要登录后才可以回帖 登录 | 立即注册

本版积分规则

全国统一客服电话
0570-8028505

24x7小时免费咨询

  • 官方在线客服

    QQ客服:小西

    点击交谈

    QQ客服:良子

    点击交谈

    QQ客服:闵月

    点击交谈
  • 衢州市柯城区财富中心3号楼2楼

  • 衢州格堂装饰有限公司

  • 扫一扫关注官方微信

    获取一手特惠信息

快速回复 返回顶部 返回列表