• 手机版

    扫码体验手机版

  • 微信公众号

    扫码关注公众号

登录注册
游客您好
第三方账号登陆

[衢州] 牡丹园10-5-11#106㎡ 北欧—-向往生活的家-愿有所爱而期待

[复制链接]
发表于 2019-12-19 12:01:08 | 显示全部楼层 |阅读模式
向往生活的家-愿有所爱而期待

格堂装饰为您全程记录装修全过程!

小区名称
牡丹园
房屋面积
106㎡
户型结构
套房
装修风格
北欧
装修方式
全包
装修造价
查看请联系客服万元
设计师
王工
项目经理
余工
装修公司
格堂装饰
完工实景
完工实景
水电全景
水电全景
VR全景
VR全景
设计说明
家是归家途中,
千里庭缩的那种急迫,家是久别归来,审容膝之易
安的那种舒适;家是出门在外,蝴蝶梦中家万里的那份思念。
更多信息

回复

使用道具 举报

 楼主| 发表于 2019-12-19 12:04:10 | 显示全部楼层
效果图

微信图片_20191219115427.jpg

微信图片_20191219115437.jpg

微信图片_20191219115441.jpg

微信图片_20191219115444.jpg
回复 支持 反对

使用道具 举报

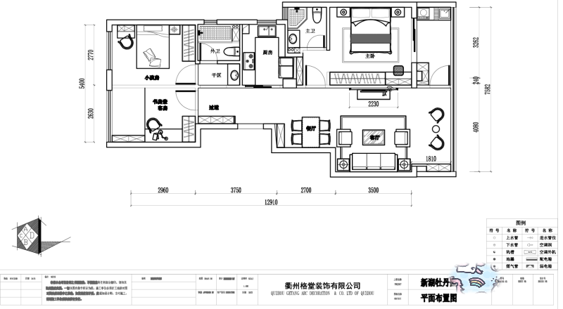
 楼主| 发表于 2019-12-19 12:04:30 | 显示全部楼层
平面布置图

微信图片_20191219115722.png

原始结构图

微信图片_20191219115727.png
回复 支持 反对

使用道具 举报

 楼主| 发表于 2019-12-19 12:06:55 | 显示全部楼层
项目经理,设计师现场交接
IMG_20191215_092909.jpg

IMG_20191215_093111.jpg

IMG_20191215_093338.jpg

开工吉时已到,恭祝业主开工大吉

IMG_20191215_101814.jpg

装修开工,第一锤应该敲在要拆除的墙体的墙角及拐角上,象征一槌定音的意思,也是新房动土的一种表示方式

IMG_20191215_095840.jpg

回复 支持 反对

使用道具 举报

 楼主| 发表于 2019-12-19 12:07:54 | 显示全部楼层
业主现场对施工图纸进行签字确认

IMG_20191215_100026.jpg

煤气表保护到位

IMG_20191215_100036.jpg
回复 支持 反对

使用道具 举报

 楼主| 发表于 2019-12-19 12:08:12 | 显示全部楼层
拆改阶段

IMG_20191217_105259.jpg

IMG_20191217_105303.jpg

IMG_20191217_105305.jpg
回复 支持 反对

使用道具 举报

 楼主| 发表于 2019-12-19 12:08:40 | 显示全部楼层
铲灰是为了降低后期油漆施工出现空鼓现象

IMG_20191217_105313.jpg

IMG_20191217_105327.jpg

IMG_20191217_105330.jpg

IMG_20191217_105333.jpg

IMG_20191217_105405.jpg
回复 支持 反对

使用道具 举报

 楼主| 发表于 2019-12-19 12:09:11 | 显示全部楼层
阳台拆改

IMG_20191217_105410.jpg

IMG_20191217_105417.jpg

IMG_20191217_105421.jpg

IMG_20191217_105423.jpg

IMG_20191217_105426.jpg
回复 支持 反对

使用道具 举报

 楼主| 发表于 2019-12-19 12:09:28 | 显示全部楼层
阳台

IMG_20191217_105428.jpg

IMG_20191217_105429.jpg

IMG_20191217_105436.jpg

IMG_20191217_105438.jpg

IMG_20191217_105439.jpg
回复 支持 反对

使用道具 举报

 楼主| 发表于 2019-12-19 12:10:21 | 显示全部楼层
临时马桶放置到位,时刻保持工地卫生干净

IMG_20191217_105521.jpg

IMG_20191217_105532.jpg

IMG_20191217_105535.jpg

IMG_20191217_105441.jpg

IMG_20191217_105442.jpg
回复 支持 反对

使用道具 举报

您需要登录后才可以回帖 登录 | 立即注册

本版积分规则

全国统一客服电话
0570-8028505

24x7小时免费咨询

  • 官方在线客服

    QQ客服:小西

    点击交谈

    QQ客服:良子

    点击交谈

    QQ客服:闵月

    点击交谈
  • 衢州市柯城区财富中心3号楼2楼

  • 衢州格堂装饰有限公司

  • 扫一扫关注官方微信

    获取一手特惠信息

快速回复 返回顶部 返回列表