• 手机版

    扫码体验手机版

  • 微信公众号

    扫码关注公众号

登录注册
游客您好
第三方账号登陆

[衢州] 银湖山庄天一阁1#80㎡北欧——向往干净与自由

[复制链接]
发表于 2018-4-17 16:50:01 | 显示全部楼层 |阅读模式
银湖山庄天一阁1#80㎡北欧——向往干净与自由

格堂装饰为您全程记录装修全过程!

小区名称
银湖山庄
房屋面积
80㎡
户型结构
套房
装修风格
北欧
装修方式
全包
装修造价
查看请联系客服万元
设计师
胡工
项目经理
郑工
装修公司
格堂装饰
完工实景
完工实景
水电全景
水电全景
VR全景
VR全景
设计说明
北欧可以用色彩丰富的软装来点缀,也可以用纯粹的黑白灰来搭配,根据不同业主对色彩的爱好,我们可以做出不同色系的北欧风! 业主是个极爱家的人,因为要经常做家务,要求所有柜体以深木色为主,才有了这样一套以深木色为基调的北欧风。
更多信息
回复

使用道具 举报

 楼主| 发表于 2018-4-17 16:59:24 | 显示全部楼层

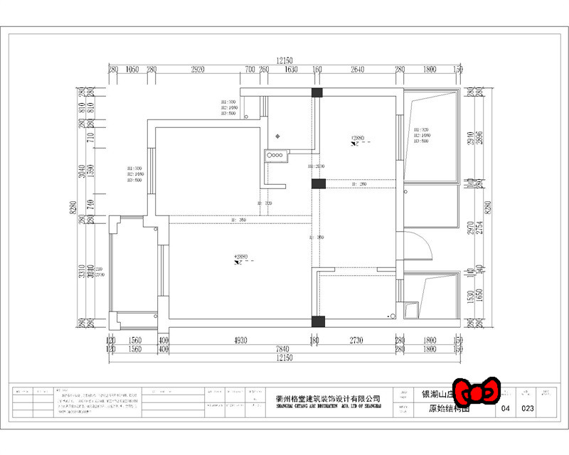
原始结构图
380400181595023513_副本.jpg
平面布置图
432763352578267703_副本.jpg
回复 支持 反对

使用道具 举报

 楼主| 发表于 2018-4-17 16:59:47 | 显示全部楼层


792449340357860543.jpg
回复 支持 反对

使用道具 举报

 楼主| 发表于 2018-4-17 17:00:14 | 显示全部楼层


792449340357860543.jpg
回复 支持 反对

使用道具 举报

 楼主| 发表于 2018-4-17 17:00:40 | 显示全部楼层


792449340357860543.jpg
回复 支持 反对

使用道具 举报

 楼主| 发表于 2018-4-17 17:01:14 | 显示全部楼层


792449340357860543.jpg
回复 支持 反对

使用道具 举报

 楼主| 发表于 2018-4-17 17:03:43 | 显示全部楼层

今天是开工的好日子,设计师和项目经理、拆除师傅都到喽
IMG_20180415_083526.jpg
回复 支持 反对

使用道具 举报

 楼主| 发表于 2018-4-17 17:12:57 | 显示全部楼层

开工仪式准备先做好
IMG_20180415_083930.jpg

IMG_20180415_084745.jpg
回复 支持 反对

使用道具 举报

 楼主| 发表于 2018-4-17 17:13:59 | 显示全部楼层

大门保护,防止磕碰到
IMG_20180415_085516.jpg
回复 支持 反对

使用道具 举报

 楼主| 发表于 2018-4-17 17:14:21 | 显示全部楼层

煤气表保护
IMG_20180415_084806.jpg
回复 支持 反对

使用道具 举报

您需要登录后才可以回帖 登录 | 立即注册

本版积分规则

全国统一客服电话
0570-8028505

24x7小时免费咨询

  • 官方在线客服

    QQ客服:小西

    点击交谈

    QQ客服:良子

    点击交谈

    QQ客服:闵月

    点击交谈
  • 衢州市柯城区财富中心3号楼2楼

  • 衢州格堂装饰有限公司

  • 扫一扫关注官方微信

    获取一手特惠信息

快速回复 返回顶部 返回列表