• 手机版

    扫码体验手机版

  • 微信公众号

    扫码关注公众号

登录注册
游客您好
第三方账号登陆

[龙游] 龙游新湖风景#94㎡欧式——极简灵动

[复制链接]
发表于 2017-3-23 10:51:30 | 显示全部楼层 |阅读模式
龙游新湖风景#94㎡欧式——极简灵动

格堂装饰为您全程记录装修全过程!

小区名称
新湖风景
房屋面积
94㎡
户型结构
套房
装修风格
欧式
装修方式
半包
装修造价
查看请联系客服万元
设计师
毛工
项目经理
周工
装修公司
格堂装饰
完工实景
完工实景
水电全景
水电全景
VR全景
VR全景
设计说明
待添加...
更多信息
回复

使用道具 举报

 楼主| 发表于 2017-3-23 10:51:37 | 显示全部楼层
本帖最后由 格堂小徐 于 2017-4-2 09:12 编辑

设计说明:
北欧风格,是注重人与自然、社会、与环境的有机的科学的结合。它以简洁、现代,以浅色为代表,整体感舒适自然,同现代简约风格有着极大的相似,颇受现在人们的喜爱。它的身上集中体现了绿色设计、环保设计、可持续发展设计的理念;它显示了对手工艺传统和天然材料的尊重与偏爱且在形式上更为柔和与有机,因而富有浓厚的人情味。 效果.jpg

回复 支持 反对

使用道具 举报

 楼主| 发表于 2017-3-23 10:51:43 | 显示全部楼层
本帖最后由 格堂小徐 于 2017-4-2 09:13 编辑

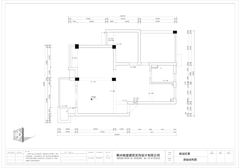
原始结构图:
微信图片_20170331142432.jpg

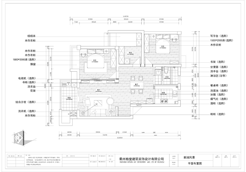
平面布置图:
微信图片_20170331142525.jpg

回复 支持 反对

使用道具 举报

 楼主| 发表于 2017-3-23 10:52:08 | 显示全部楼层

回复

使用道具 举报

 楼主| 发表于 2017-3-23 10:52:16 | 显示全部楼层

回复

使用道具 举报

 楼主| 发表于 2017-3-23 10:52:23 | 显示全部楼层

回复

使用道具 举报

 楼主| 发表于 2017-3-23 10:53:11 | 显示全部楼层
3月22日,龙游开工去啦!
IMG_4048(1)_副本.jpg
IMG_4050(1)_副本.jpg

回复 支持 反对

使用道具 举报

 楼主| 发表于 2017-3-23 10:54:02 | 显示全部楼层
施工标准
IMG_4051(1).jpg
回复 支持 反对

使用道具 举报

 楼主| 发表于 2017-3-23 10:55:02 | 显示全部楼层
本帖最后由 格堂小徐 于 2017-3-23 10:59 编辑

8:08开工大吉
IMG_4072(1).jpg
IMG_4054(1)_副本.jpg
IMG_4059.jpg



回复 支持 反对

使用道具 举报

 楼主| 发表于 2017-3-23 10:55:55 | 显示全部楼层
本帖最后由 格堂小徐 于 2017-3-23 10:57 编辑

开工第一锤,咱们推广部小许是业主大人的朋友,也来助阵啦!
IMG_4058(1).jpg
IMG_4060(1).jpg
回复 支持 反对

使用道具 举报

您需要登录后才可以回帖 登录 | 立即注册

本版积分规则

全国统一客服电话
0570-8028505

24x7小时免费咨询

  • 官方在线客服

    QQ客服:小西

    点击交谈

    QQ客服:良子

    点击交谈

    QQ客服:闵月

    点击交谈
  • 衢州市柯城区财富中心3号楼2楼

  • 衢州格堂装饰有限公司

  • 扫一扫关注官方微信

    获取一手特惠信息

快速回复 返回顶部 返回列表