[衢州] 阳光城19-2-10#324㎡现代——【光映,隐于形】 |
|
阳光城19-2-10#324㎡现代——【光映,隐于形】
格堂装饰为您全程记录装修全过程! 设计说明
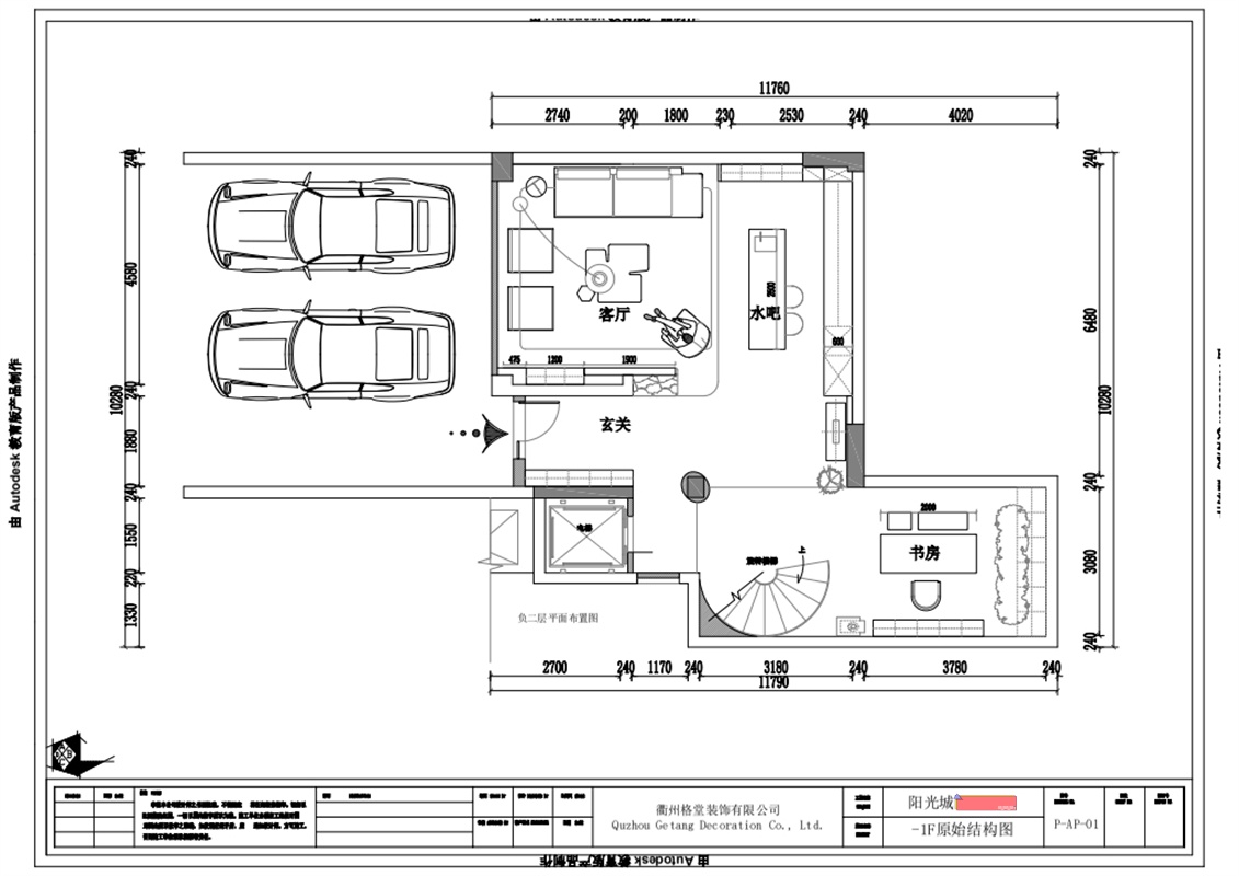
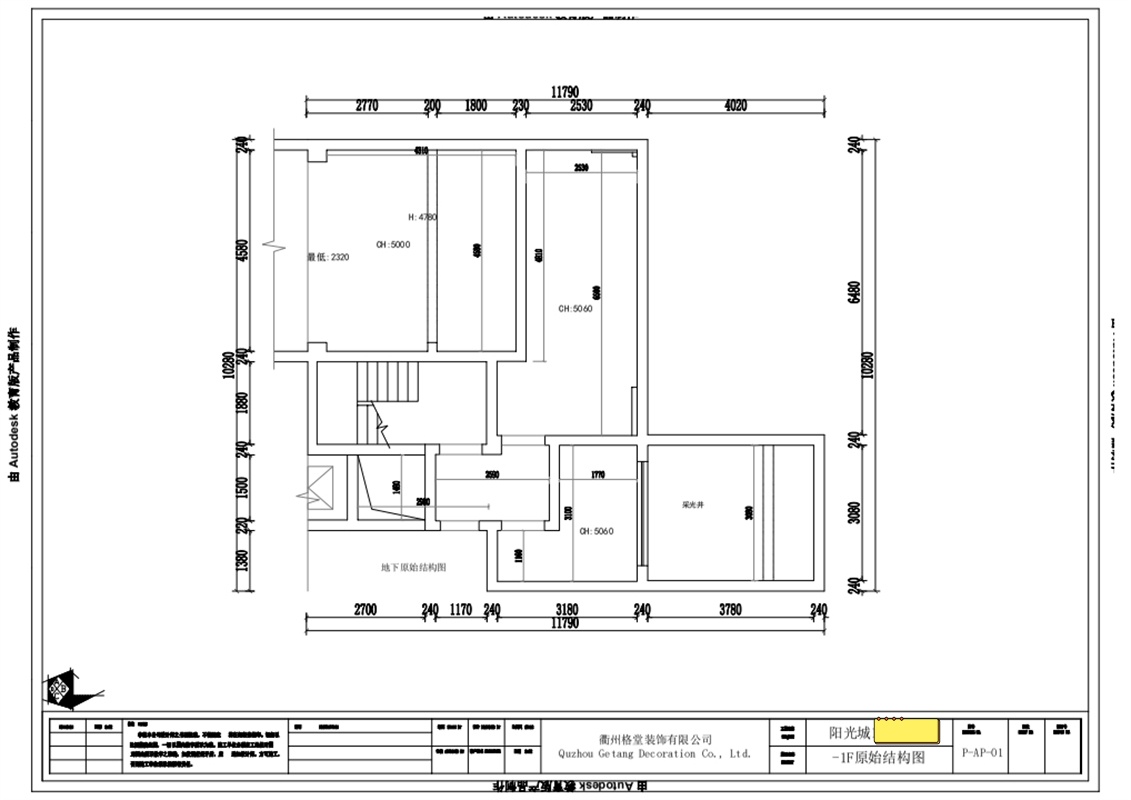
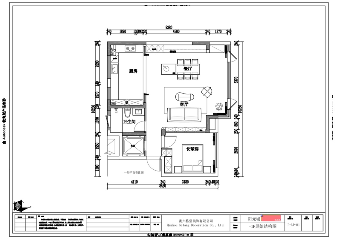
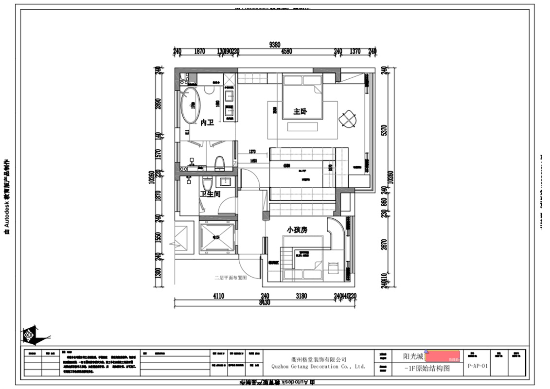
本项目原始结构为地上两层,地下一层的下叠户型。
地下空间:层高为5.06米,并有南北双采光,北采光井处设计了大挑空空间,让地下采光更好,南采光井处设计了书房兼茶室,阳光能直接引到茶桌。取消了室内其他楼梯,唯独在负二层做了旋转楼梯,体现动态的美感,楼梯下来直接看到的是一个亚克力灯光吧台,点亮地下空间。地面一层主要是客餐厨空间,扩大厨房,注重厨餐空间。二层设计为居住空间,主卧配上双衣帽间。整个设计关系是松弛、合理并注重细节的,营造静谧的居住环境,陈设在材质选择、色彩搭配、家具质感以及绿植花艺、艺术品的形态选择,都经过精心打磨与考量。 更多信息
| |
|
|
| |
| |


在线客服
微信客服
关注有礼