• 手机版

    扫码体验手机版

  • 微信公众号

    扫码关注公众号

登录注册
游客您好
第三方账号登陆

[衢州] 兰馨苑29-#254㎡——流动的艺术

[复制链接]
发表于 2024-10-18 17:07:23 | 显示全部楼层 |阅读模式
兰馨苑29-#200㎡——流动的艺术

格堂装饰为您全程记录装修全过程!

小区名称
兰馨苑
房屋面积
254㎡
户型结构
叠排
装修风格
现代
装修方式
半包
装修造价
查看请联系客服万元
设计师
梁工
项目经理
王工
装修公司
格堂装饰
完工实景
完工实景
水电全景
水电全景
VR全景
VR全景
设计说明
生活不是繁琐的叠加
而是化繁为简
让你拂去繁重

回归心灵的宁静
简洁而不随意

高级而不浮夸
与其说现代简约是一种风格
不如说它是一种优雅的生活态度
更多信息
本帖最后由 格堂柴姐 于 2024-10-18 17:11 编辑

效果图:

微信图片_20241018164353.jpg

微信图片_20241018164401.jpg

微信图片_20241018164405.jpg

微信图片_20241018164409.jpg

微信图片_20241018164412.jpg
回复

使用道具 举报

 楼主| 发表于 2024-10-18 17:08:30 | 显示全部楼层
回复 支持 反对

使用道具 举报

 楼主| 发表于 2024-10-18 17:09:03 | 显示全部楼层
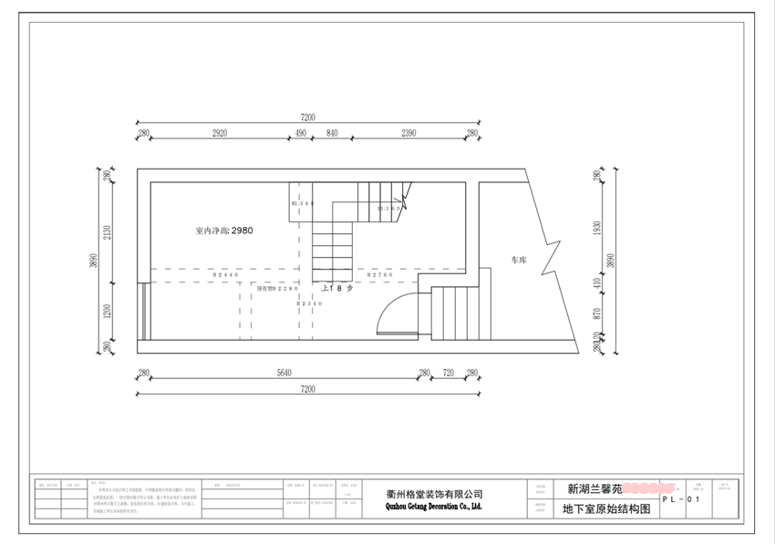
负一楼原始结构图

负一楼原始结构图.png
回复 支持 反对

使用道具 举报

 楼主| 发表于 2024-10-18 17:09:25 | 显示全部楼层
负一楼平面布置图

负一楼平面布置图.png
回复 支持 反对

使用道具 举报

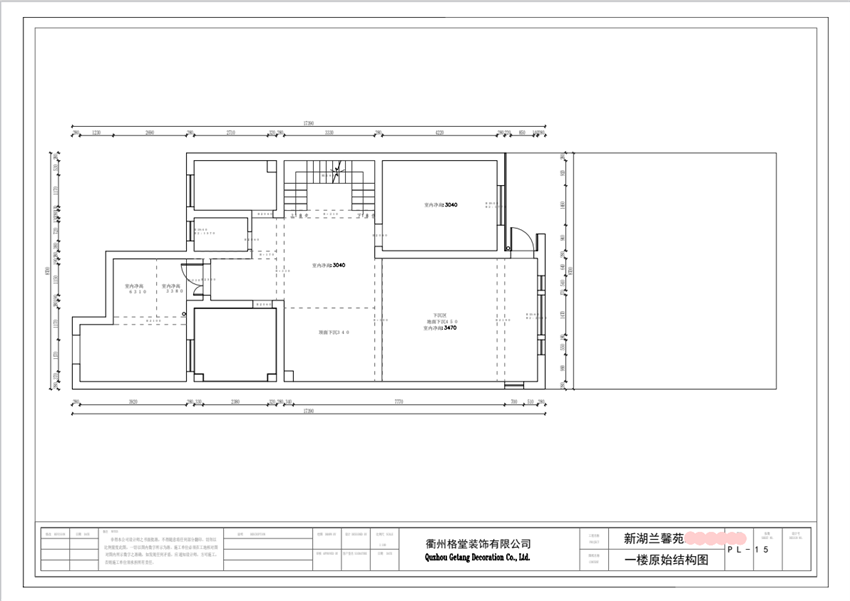
 楼主| 发表于 2024-10-18 17:09:46 | 显示全部楼层
一楼原始结构图

一楼原始结构图.png
回复 支持 反对

使用道具 举报

 楼主| 发表于 2024-10-18 17:10:04 | 显示全部楼层
一楼平面布置图

一楼平面布置图.png
回复 支持 反对

使用道具 举报

 楼主| 发表于 2024-10-18 17:10:23 | 显示全部楼层
二楼原始结构图

二楼原始结构图.png
回复 支持 反对

使用道具 举报

 楼主| 发表于 2024-10-18 17:10:58 | 显示全部楼层
二楼平面布置图

二楼平面布置图.png
回复 支持 反对

使用道具 举报

 楼主| 发表于 2024-10-18 17:11:54 | 显示全部楼层
开工前,电梯口墙面和地面已经保护到位
回复 支持 反对

使用道具 举报

 楼主| 发表于 2024-10-18 17:12:20 | 显示全部楼层
大门已经保护到位
回复 支持 反对

使用道具 举报

您需要登录后才可以回帖 登录 | 立即注册

本版积分规则

全国统一客服电话
0570-8028505

24x7小时免费咨询

  • 官方在线客服

    QQ客服:小西

    点击交谈

    QQ客服:良子

    点击交谈

    QQ客服:闵月

    点击交谈
  • 衢州市柯城区财富中心3号楼2楼

  • 衢州格堂装饰有限公司

  • 扫一扫关注官方微信

    获取一手特惠信息

快速回复 返回顶部 返回列表