• 手机版

    扫码体验手机版

  • 微信公众号

    扫码关注公众号

登录注册
游客您好
第三方账号登陆

[衢州] 星月宸庐7-1-6#122㎡现代奶油

[复制链接]
发表于 2024-9-23 16:03:36 | 显示全部楼层 |阅读模式
星月宸庐7-1-6#122㎡现代奶油

格堂装饰为您全程记录装修全过程!

小区名称
星月宸庐
房屋面积
122㎡
户型结构
套房
装修风格
现代
装修方式
半包
装修造价
查看请联系客服万元
设计师
邓工
项目经理
施工
装修公司
格堂装饰
完工实景
完工实景
水电全景
水电全景
VR全景
VR全景
设计说明
本案以含蓄雅致的米色调为主基调,构建简约素雅的空间基底,让空间更为流畅柔和,唤醒内心的宁静。阅尽繁华,不言繁饰,至简中的包容,是藏锋于内,返心归真,向内探知灵魂深处的向往。
留白未尽,自由生长!
更多信息
本帖最后由 格堂王姐 于 2024-10-29 15:28 编辑

效果图

微信图片_20240923150818.jpg

微信图片_20240923150823.jpg

微信图片_20240923150826.jpg

微信图片_20240923150829.jpg

微信图片_20240923150832.jpg
回复

使用道具 举报

 楼主| 发表于 2024-10-29 15:30:17 | 显示全部楼层
本帖最后由 格堂王姐 于 2025-3-13 22:45 编辑


回复 支持 反对

使用道具 举报

 楼主| 发表于 2024-10-29 15:41:32 | 显示全部楼层
原始结构图
微信图片_20240923150806.png



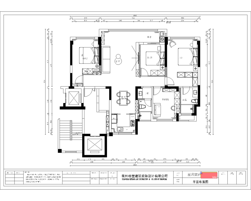
平面布置图

微信图片_20240923150810.png
回复 支持 反对

使用道具 举报

 楼主| 发表于 2024-10-29 15:42:45 | 显示全部楼层
本帖最后由 格堂王姐 于 2024-10-29 19:59 编辑

开工仪式准备,开工横幅、鲜花、礼花准备到位,就等吉时!
微信图片_20240923150705.jpg

微信图片_20240923150716.jpg

吉时到开工了,恭祝业主大人开工大吉!
微信图片_20240923150740.jpg

开工第一锤,由业主敲在要拆除的墙体的墙角上,象征一锤定音,也代表着新房动土。
微信图片_20240923150744.jpg

敲的痕迹
微信图片_20240923150753.jpg

开工前,电梯口墙面和地面已经保护到位。
IMG_20241026_090655.jpg

IMG_20241026_090656.jpg

IMG_20241026_090658.jpg

IMG_20241026_090700.jpg

IMG_20241026_090701.jpg

对角
IMG_20241026_090706.jpg

IMG_20241026_090708.jpg

IMG_20241026_090710.jpg

IMG_20241026_090712.jpg

IMG_20241026_090713.jpg

回复 支持 反对

使用道具 举报

 楼主| 发表于 2024-10-29 15:48:27 | 显示全部楼层
本帖最后由 格堂王姐 于 2024-10-29 15:50 编辑

水电放样
立体放样,就是把设计图纸上的内容弹到实际顶面、地面和墙面上,相当于将图纸转移到现实工地中,业主可以很直观的看到装修后的大致效果,勾勒出美好生活。如有需要整改的地方,业主第一时间看了就能提出来,方便设计师、项目经理的工作开展。
mmexport1729932624191.jpg

mmexport1729932629804.jpg

mmexport1729932636774.jpg

mmexport1729932640961.jpg

mmexport1729932696501.jpg

mmexport1729932702836.jpg

mmexport1729932708323.jpg

回复 支持 反对

使用道具 举报

 楼主| 发表于 2024-10-29 15:53:01 | 显示全部楼层
水电开槽

我们开线槽前先弹过墨线,再用切割机切过,最后开线槽,这样开的线槽就横平竖直了。
线槽转弯处大弯工艺施工,后期线路更加容易抽换。
地面开槽深度够深,开槽标准,线管低于地面1公分。
mmexport1729932756340.jpg

mmexport1729932760563.jpg

mmexport1729932764831.jpg

mmexport1729932770006.jpg

mmexport1729932774685.jpg

回复 支持 反对

使用道具 举报

 楼主| 发表于 2024-10-29 15:54:26 | 显示全部楼层
mmexport1729932774685.jpg


mmexport1729932777855.jpg

mmexport1729932785623.jpg

mmexport1729932790093.jpg

mmexport1729932793032.jpg

mmexport1729932800519.jpg

mmexport1729932805291.jpg

mmexport1729932811735.jpg

mmexport1729932831725.jpg
回复 支持 反对

使用道具 举报

 楼主| 发表于 2024-10-29 15:56:32 | 显示全部楼层
水电材料

电线            中大元通阻燃线
PVC排水         城家DN50/DN75
PVC线管         城家DN20
PPR水管         海德欧DN25*4.2钢网复合管
网络线          普鲁仕超六类网线带屏蔽(UTP
电视线          普鲁仕高清(966671
mmexport1729932837579.jpg

mmexport1729932841449.jpg

mmexport1729932846368.jpg

mmexport1729932851069.jpg

mmexport1729932853816.jpg

mmexport1729932856637.jpg

mmexport1729932860807.jpg

回复 支持 反对

使用道具 举报

 楼主| 发表于 2024-10-29 19:26:51 | 显示全部楼层
水电中途
暗盒之间用快速连接件连接,既能固定线盒,又能避免水泥掉到线盒里。
线管与暗盒间要加杯梳,方便抽拉电线和后期维护。
强电用橙色线盒、橙色线管,弱电用蓝色线盒、蓝色线管。
IMG_20241026_090558.jpg

火线用红线,蓝色线、绿色线用于零线,双色线用于接地。
IMG_20241026_090538.jpg

IMG_20241026_090542.jpg

回复 支持 反对

使用道具 举报

 楼主| 发表于 2024-10-29 19:28:09 | 显示全部楼层
玄关

IMG_20241026_085606.jpg

IMG_20241026_085607.jpg

IMG_20241026_085609.jpg

IMG_20241026_085611.jpg

IMG_20241026_085613.jpg
回复 支持 反对

使用道具 举报

您需要登录后才可以回帖 登录 | 立即注册

本版积分规则

全国统一客服电话
0570-8028505

24x7小时免费咨询

  • 官方在线客服

    QQ客服:小西

    点击交谈

    QQ客服:良子

    点击交谈

    QQ客服:闵月

    点击交谈
  • 衢州市柯城区财富中心3号楼2楼

  • 衢州格堂装饰有限公司

  • 扫一扫关注官方微信

    获取一手特惠信息

快速回复 返回顶部 返回列表