• 手机版

    扫码体验手机版

  • 微信公众号

    扫码关注公众号

登录注册
游客您好
第三方账号登陆

[龙游] 龙都锦城8-17#120 ㎡奶油——予你

[复制链接]
发表于 2024-7-30 13:48:29 | 显示全部楼层 |阅读模式
予你

格堂装饰为您全程记录装修全过程!

小区名称
龙都锦城
房屋面积
120㎡
户型结构
套房
装修风格
奶油风
装修方式
半包
装修造价
查看请联系客服万元
设计师
陈工
项目经理
谢工
装修公司
格堂装饰
完工实景
完工实景
水电全景
水电全景
VR全景
VR全景
设计说明
生活不在于追求新奇和潮流,而在于那份对美好事物的热爱和珍惜。
更多信息
回复

使用道具 举报

 楼主| 发表于 2024-7-30 13:49:00 | 显示全部楼层
原始结构图

IMG_0763(1).JPG
回复 支持 反对

使用道具 举报

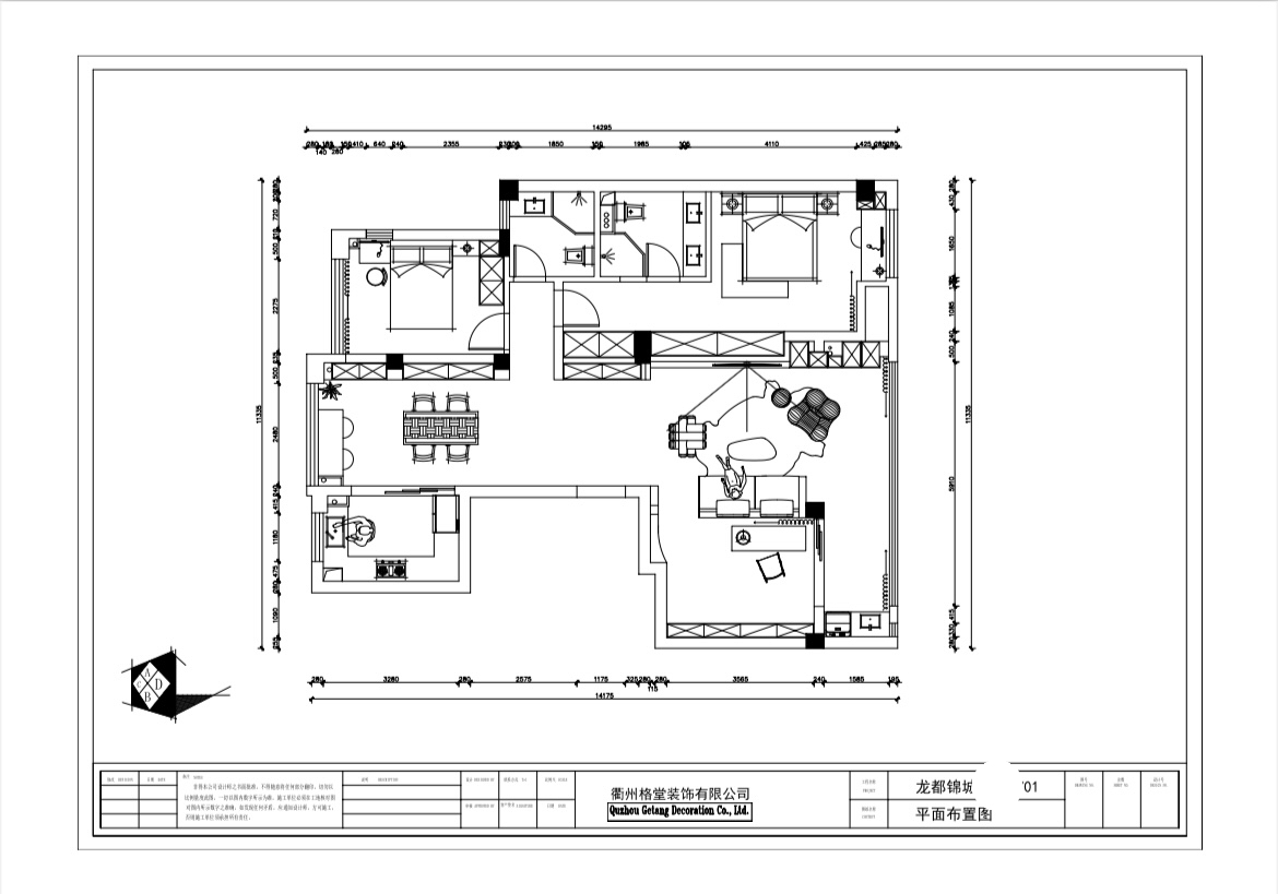
 楼主| 发表于 2024-7-30 13:49:20 | 显示全部楼层
平面布置

IMG_0762(1).JPG
回复 支持 反对

使用道具 举报

 楼主| 发表于 2024-7-30 13:52:06 | 显示全部楼层
进户门保护防止磕损

IMG_0444.JPG

IMG_0445.JPG

IMG_0446.JPG

IMG_0447.JPG

IMG_0448.JPG
回复 支持 反对

使用道具 举报

 楼主| 发表于 2024-7-30 13:52:30 | 显示全部楼层
IMG_0449.JPG


IMG_0450.JPG

IMG_0451.JPG

IMG_0452.JPG

IMG_0453.JPG
回复 支持 反对

使用道具 举报

 楼主| 发表于 2024-7-30 13:53:08 | 显示全部楼层
煤气管道保护防止磕损

IMG_0469(1).JPG

IMG_0470(1).JPG
回复 支持 反对

使用道具 举报

 楼主| 发表于 2024-7-30 13:53:41 | 显示全部楼层
临时马桶安置处

IMG_0454.JPG
回复 支持 反对

使用道具 举报

 楼主| 发表于 2024-7-30 13:54:20 | 显示全部楼层
下水管道保护放置堵塞

IMG_0455.JPG

IMG_0457.JPG

IMG_0456.JPG
回复 支持 反对

使用道具 举报

 楼主| 发表于 2024-7-30 13:55:15 | 显示全部楼层
开工金锤

回复 支持 反对

使用道具 举报

 楼主| 发表于 2024-7-30 13:55:28 | 显示全部楼层
开工礼炮

回复 支持 反对

使用道具 举报

您需要登录后才可以回帖 登录 | 立即注册

本版积分规则

全国统一客服电话
0570-8028505

24x7小时免费咨询

  • 官方在线客服

    QQ客服:小西

    点击交谈

    QQ客服:良子

    点击交谈

    QQ客服:闵月

    点击交谈
  • 衢州市柯城区财富中心3号楼2楼

  • 衢州格堂装饰有限公司

  • 扫一扫关注官方微信

    获取一手特惠信息

快速回复 返回顶部 返回列表