• 手机版

    扫码体验手机版

  • 微信公众号

    扫码关注公众号

登录注册
游客您好
第三方账号登陆

[常山] 常山宋邸潮鸣10-1-4#85㎡现代——逸雅

[复制链接]
发表于 2024-6-25 15:05:46 | 显示全部楼层 |阅读模式
常山宋邸潮鸣10-1-4#85㎡现代——逸雅

格堂装饰为您全程记录装修全过程!

小区名称
宋邸潮鸣
房屋面积
85㎡
户型结构
套房
装修风格
现代
装修方式
半包
装修造价
查看请联系客服万元
设计师
江工
项目经理
施工
装修公司
格堂装饰
完工实景
完工实景
水电全景
水电全景
VR全景
VR全景
设计说明
神游一隅天地,超然物外形意。在场域与精神的双向考量中,家,早已超越空间本身的物理属性,成为连接人与空间、自然、外部世界的无限可能。
更多信息
效果图

c7da102b7a9eb0d066c8a8cdeb7f8df.jpg

fdd0241094e727b6658a4b873535162.jpg
回复

使用道具 举报

 楼主| 发表于 2024-6-25 15:06:47 | 显示全部楼层
本帖最后由 格堂小丽 于 2025-1-6 14:35 编辑

本帖最后由 格堂小丽 于 2024-6-21 15:36 编辑


目      录


回复 支持 反对

使用道具 举报

 楼主| 发表于 2024-6-25 15:07:10 | 显示全部楼层
原始结构图

4bf4e5a64992f037b292856f3b1c378.jpg
回复 支持 反对

使用道具 举报

 楼主| 发表于 2024-6-25 15:07:27 | 显示全部楼层
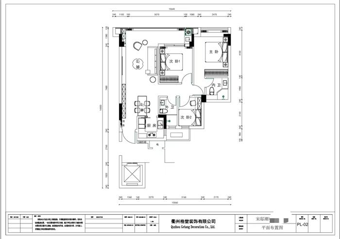
平面布置图

6aee6c382eff2093a30bf324d4468b7.jpg
回复 支持 反对

使用道具 举报

 楼主| 发表于 2024-6-25 15:21:47 | 显示全部楼层
开工咯,仪式准备好

ef6c9d4657852f4a49f4093eab93734.jpg
回复 支持 反对

使用道具 举报

 楼主| 发表于 2024-6-25 15:22:15 | 显示全部楼层
鲜花礼炮准备好

cca30f7d0af01887680a4a28408d8dd.jpg

9f2ef5dcfb705742d6fce2a9232ebfe.jpg
回复 支持 反对

使用道具 举报

 楼主| 发表于 2024-6-25 15:22:45 | 显示全部楼层
吉时到,恭祝业主开工大吉!

3060ff44600e49ead5e6041acb9790b.jpg
回复 支持 反对

使用道具 举报

 楼主| 发表于 2024-6-25 15:23:24 | 显示全部楼层
开工第一锤,由业主敲在要拆除的墙体的墙角(即拐角)上,象征一锤定音的意思,也是新房动土的一种表示方式

518abe9db714d34b91ebe30cf49e409.jpg

accf9f4c03aa33471ba80345a628232.jpg
回复 支持 反对

使用道具 举报

 楼主| 发表于 2024-6-25 15:24:33 | 显示全部楼层
卫生间不动

9eb5779ac5cad2afee5ed8e9a0acb4c.jpg

78544277e57c912f4f4d6d6e0413bfa.jpg
回复 支持 反对

使用道具 举报

 楼主| 发表于 2024-6-25 15:25:03 | 显示全部楼层
厨房需要拆除,重新施工

d718d01d7121bef98320ddfb2252660.jpg
回复 支持 反对

使用道具 举报

您需要登录后才可以回帖 登录 | 立即注册

本版积分规则

全国统一客服电话
0570-8028505

24x7小时免费咨询

  • 官方在线客服

    QQ客服:小西

    点击交谈

    QQ客服:良子

    点击交谈

    QQ客服:闵月

    点击交谈
  • 衢州市柯城区财富中心3号楼2楼

  • 衢州格堂装饰有限公司

  • 扫一扫关注官方微信

    获取一手特惠信息

快速回复 返回顶部 返回列表