• 手机版

    扫码体验手机版

  • 微信公众号

    扫码关注公众号

登录注册
游客您好
第三方账号登陆

[江山] 西城国际517-29.6㎡简约之家--现代风格

[复制链接]
发表于 2023-11-9 15:43:23 | 显示全部楼层 |阅读模式
西城国际517-29.6㎡简约之家--现代风格

格堂装饰为您全程记录装修全过程!

小区名称
西城国际
房屋面积
29.6㎡
户型结构
框架结构
装修风格
现代
装修方式
半包
装修造价
查看请联系客服万元
设计师
王工
项目经理
郑工
装修公司
格堂装饰
完工实景
完工实景
水电全景
水电全景
VR全景
VR全景
设计说明
充分利用空间面积,使其功能强大,居住舒适。
更多信息
本帖最后由 格堂红叶 于 2023-12-9 16:27 编辑

原始结构图


西城国际517-布局1.png


开工


水电放样
回复

使用道具 举报

 楼主| 发表于 2023-11-9 15:45:02 | 显示全部楼层
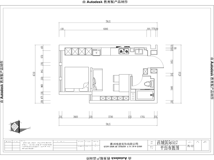
平面布置图


bcea64cbb374135da2d3a84be5e7918.png
回复 支持 反对

使用道具 举报

 楼主| 发表于 2023-11-9 15:58:29 | 显示全部楼层
开工前大门先保护到位

61168403c91229836c773e678e607d9.jpg

回复 支持 反对

使用道具 举报

 楼主| 发表于 2023-11-9 16:00:00 | 显示全部楼层
开工前门口地面已经保护到位,防止磕碰。

3a05415c7fb2b014f927305a0006bb3.jpg

回复 支持 反对

使用道具 举报

 楼主| 发表于 2023-11-9 16:01:06 | 显示全部楼层
卫生间的简易马桶安装到位,防止后期施工中沙石堵塞进入,美观又干净

bf2110b8490cfe506fcd826394fa413.jpg

回复 支持 反对

使用道具 举报

 楼主| 发表于 2023-11-9 16:03:23 | 显示全部楼层
排水管道用格堂装饰专用保护盖保护,防止后期施工砂石堵塞管道。

4b62c4acaf1933b65fa8372e79480ea.jpg

7885953adf1a29e79b39538e0507ba5.jpg

回复 支持 反对

使用道具 举报

 楼主| 发表于 2023-11-9 16:04:56 | 显示全部楼层
送给业主的鲜花已准备好

dc1501dd038e1b1e47be9f394d2bc2b.jpg

回复 支持 反对

使用道具 举报

 楼主| 发表于 2023-11-9 16:06:54 | 显示全部楼层
开工锤已准备好

3a4810048478b3c39a567cc4e3418f9.jpg
回复 支持 反对

使用道具 举报

 楼主| 发表于 2023-11-9 16:07:48 | 显示全部楼层
礼炮已准备好

7b406b04d7b32f927d4b2a243063144.jpg

回复 支持 反对

使用道具 举报

 楼主| 发表于 2023-11-9 16:08:37 | 显示全部楼层
一切准备就绪,等待开工吉时.

7efc8ca795dd2893cafe120c7efda25.jpg


回复 支持 反对

使用道具 举报

您需要登录后才可以回帖 登录 | 立即注册

本版积分规则

全国统一客服电话
0570-8028505

24x7小时免费咨询

  • 官方在线客服

    QQ客服:小西

    点击交谈

    QQ客服:良子

    点击交谈

    QQ客服:闵月

    点击交谈
  • 衢州市柯城区财富中心3号楼2楼

  • 衢州格堂装饰有限公司

  • 扫一扫关注官方微信

    获取一手特惠信息

快速回复 返回顶部 返回列表