• 手机版

    扫码体验手机版

  • 微信公众号

    扫码关注公众号

登录注册
游客您好
第三方账号登陆

[衢州] 凤栖云庐32-# 421㎡——欧式现代

[复制链接]
发表于 2023-10-11 16:06:35 | 显示全部楼层 |阅读模式
凤栖云庐32-# 421㎡——欧式现代

格堂装饰为您全程记录装修全过程!

小区名称
凤栖云庐
房屋面积
421㎡
户型结构
排屋
装修风格
现代
装修方式
半包
装修造价
查看请联系客服万元
设计师
毛工
项目经理
周工
装修公司
格堂装饰
完工实景
完工实景
水电全景
水电全景
VR全景
VR全景
设计说明
。。。。。。
更多信息
效果图

微信图片_20231011150316.jpg

微信图片_20231011150320.jpg

微信图片_20231011150408.jpg

微信图片_20231011160542.png

微信图片_20231011160550.png

微信图片_20231011160553.png

微信图片_20231011160556.png

回复

使用道具 举报

 楼主| 发表于 2023-10-11 16:09:05 | 显示全部楼层
本帖最后由 格堂柴姐 于 2024-12-26 10:49 编辑

目      录


回复 支持 反对

使用道具 举报

 楼主| 发表于 2023-10-11 16:19:25 | 显示全部楼层
负二楼原始结构图

负二层原始图.jpg
回复 支持 反对

使用道具 举报

 楼主| 发表于 2023-10-11 16:20:48 | 显示全部楼层
负二楼平面布置图

负二层平面图.jpg
回复 支持 反对

使用道具 举报

 楼主| 发表于 2023-10-11 16:21:21 | 显示全部楼层
负一楼原始结构图

负一层原始图.jpg
回复 支持 反对

使用道具 举报

 楼主| 发表于 2023-10-11 16:21:51 | 显示全部楼层
负一楼平面布置图

负一楼平面图.jpg
回复 支持 反对

使用道具 举报

 楼主| 发表于 2023-10-11 16:22:19 | 显示全部楼层
一楼原始结构图

一楼原始图.jpg
回复 支持 反对

使用道具 举报

 楼主| 发表于 2023-10-11 16:22:37 | 显示全部楼层
一楼平面布置图

一楼平面图.jpg
回复 支持 反对

使用道具 举报

 楼主| 发表于 2023-10-11 16:23:01 | 显示全部楼层
二楼原始结构图

二楼原始图.jpg
回复 支持 反对

使用道具 举报

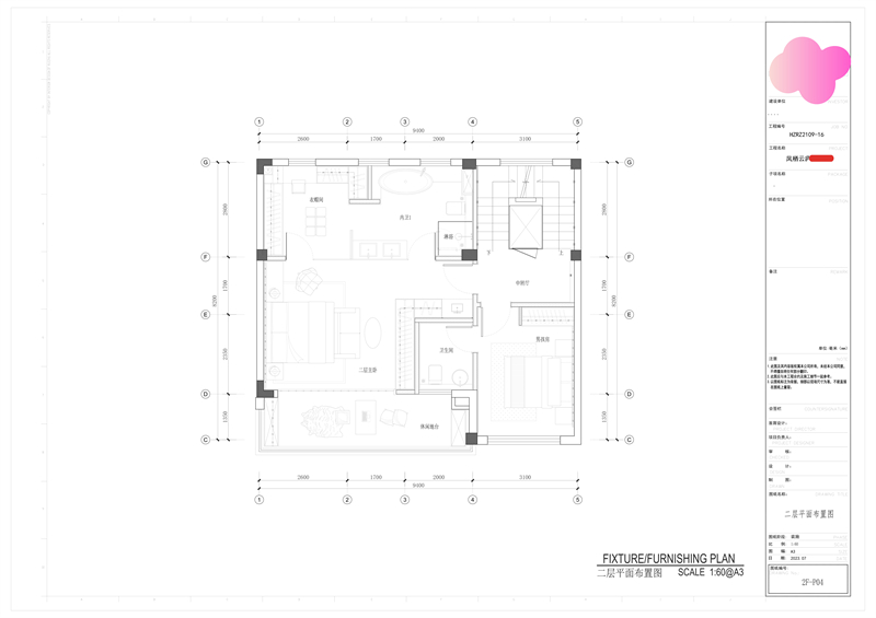
 楼主| 发表于 2023-10-11 16:23:20 | 显示全部楼层
二楼平面布置图

二楼平面图.jpg
回复 支持 反对

使用道具 举报

您需要登录后才可以回帖 登录 | 立即注册

本版积分规则

全国统一客服电话
0570-8028505

24x7小时免费咨询

  • 官方在线客服

    QQ客服:小西

    点击交谈

    QQ客服:良子

    点击交谈

    QQ客服:闵月

    点击交谈
  • 衢州市柯城区财富中心3号楼2楼

  • 衢州格堂装饰有限公司

  • 扫一扫关注官方微信

    获取一手特惠信息

快速回复 返回顶部 返回列表