• 手机版

    扫码体验手机版

  • 微信公众号

    扫码关注公众号

登录注册
游客您好
第三方账号登陆

云澜府26-1-10#107㎡现代——极简奶油风

[复制链接]
发表于 2023-7-5 12:27:09 | 显示全部楼层 |阅读模式
云澜府26-1-10#107㎡现代——极简奶油风

格堂装饰实景完工案例欣赏!

小区名称
云澜府
房屋面积
107㎡
户型结构
套房
装修风格
现代
装修方式
半包
装修造价
查看请联系客服万元
设计师
吴工
项目经理
周工
装修公司
格堂装饰
装修过程
装修日记
设计说明
一层弧形背景墙随性自在,展开此间恰当而简趣的叙事开场,剔除繁冗的「杂」,核心细节更具视觉层次。
更多信息
本帖最后由 格堂方俊 于 2023-7-23 10:41 编辑

7E1A6618.jpg


回复

使用道具 举报

 楼主| 发表于 2023-7-5 12:27:44 | 显示全部楼层
本帖最后由 格堂方俊 于 2023-7-23 10:43 编辑

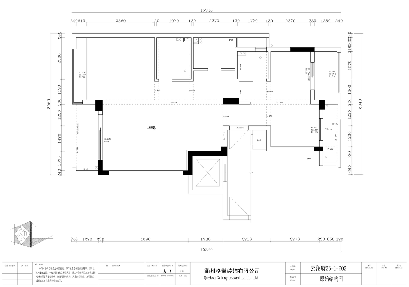
原始构图▼▼▼

091901apqgnejjoxdgp25n.png

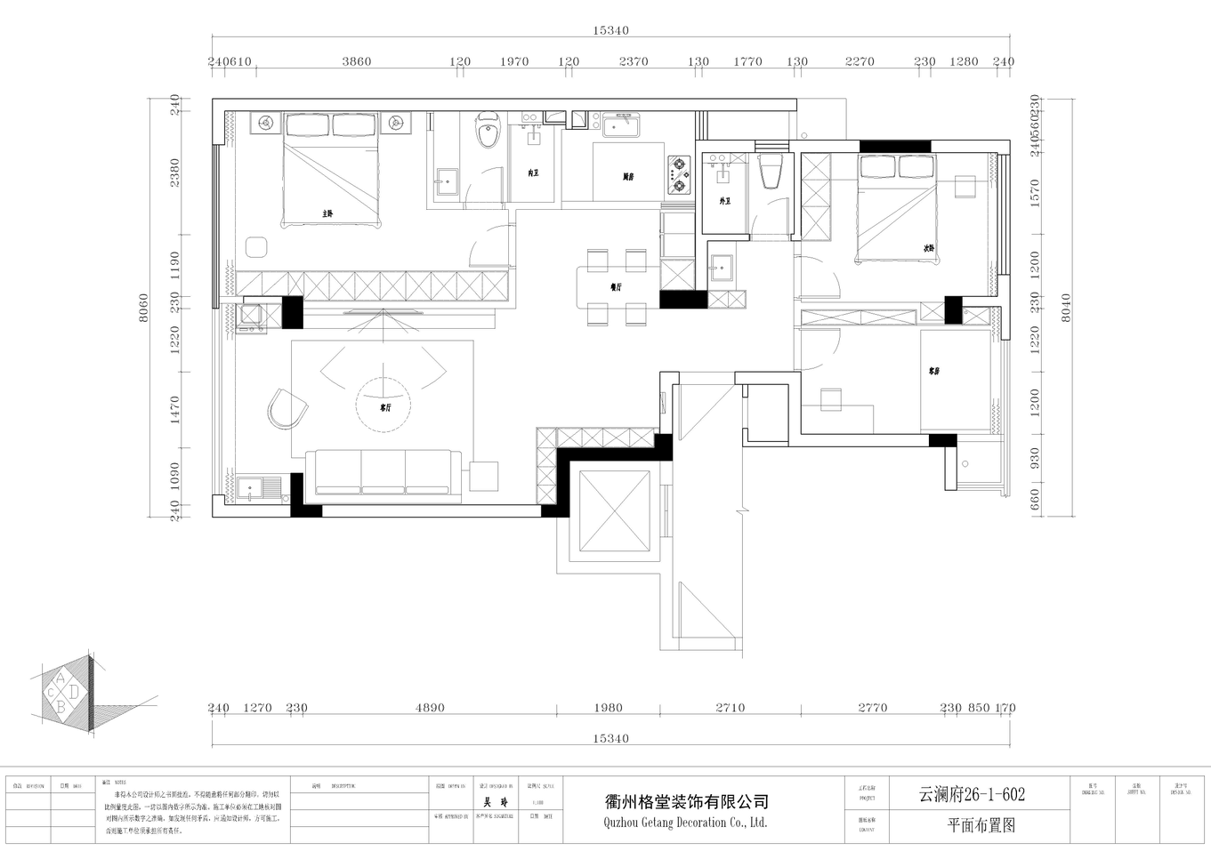
平面布置图▼▼▼

091939v36vj5500jzj6jrs.png


回复 支持 反对

使用道具 举报

 楼主| 发表于 2023-7-5 12:28:17 | 显示全部楼层
客厅▼▼▼



7E1A6583.jpg


7E1A6616.jpg


7E1A6617.jpg


7E1A6618.jpg


7E1A6619.jpg


7E1A6621.jpg


7E1A6626.jpg


7E1A6627.jpg




回复 支持 反对

使用道具 举报

 楼主| 发表于 2023-7-5 12:28:48 | 显示全部楼层
餐厅▼▼▼

7E1A6586.jpg


7E1A6587.jpg


7E1A6624.jpg


7E1A6625.jpg


7E1A6630.jpg




回复 支持 反对

使用道具 举报

 楼主| 发表于 2023-7-5 12:29:30 | 显示全部楼层
厨房▼▼▼



7E1A6589.jpg


回复 支持 反对

使用道具 举报

 楼主| 发表于 2023-7-5 12:29:45 | 显示全部楼层
玄关▼▼▼



7E1A6659.jpg


回复 支持 反对

使用道具 举报

 楼主| 发表于 2023-7-5 12:30:06 | 显示全部楼层
主卧▼▼▼



7E1A6637.jpg


7E1A6639.jpg


7E1A6640.jpg


7E1A6642.jpg


7E1A6643.jpg


7E1A6644.jpg


7E1A6645.jpg




回复 支持 反对

使用道具 举报

 楼主| 发表于 2023-7-5 12:30:32 | 显示全部楼层
小孩房▼▼▼

7E1A6633.jpg


7E1A6634.jpg


7E1A6636.jpg




回复 支持 反对

使用道具 举报

 楼主| 发表于 2023-7-5 12:30:55 | 显示全部楼层
主卫▼▼▼



7E1A6656.jpg


7E1A6657.jpg




回复 支持 反对

使用道具 举报

 楼主| 发表于 2023-7-5 12:31:25 | 显示全部楼层
小景▼▼▼



7E1A6599.jpg


7E1A6600.jpg


7E1A6603.jpg


7E1A6606.jpg


7E1A6610.jpg


7E1A6613.jpg


7E1A6646.jpg


7E1A6650.jpg




7E1A6654.jpg
回复 支持 反对

使用道具 举报

您需要登录后才可以回帖 登录 | 立即注册

本版积分规则

全国统一客服电话
0570-8028505

24x7小时免费咨询

  • 官方在线客服

    QQ客服:小西

    点击交谈

    QQ客服:良子

    点击交谈

    QQ客服:闵月

    点击交谈
  • 衢州市柯城区财富中心3号楼2楼

  • 衢州格堂装饰有限公司

  • 扫一扫关注官方微信

    获取一手特惠信息

快速回复 返回顶部 返回列表