• 手机版

    扫码体验手机版

  • 微信公众号

    扫码关注公众号

登录注册
游客您好
第三方账号登陆

[衢州] 云澜府26-1-10#107㎡现代——极简奶油风

[复制链接]
发表于 2022-9-4 09:56:09 | 显示全部楼层 |阅读模式
极简奶油风

格堂装饰为您全程记录装修全过程!

小区名称
云澜府
房屋面积
107㎡
户型结构
套房
装修风格
现代
装修方式
半包
装修造价
查看请联系客服万元
设计师
吴工
项目经理
周工
装修公司
格堂装饰
完工实景
完工实景
水电全景
水电全景
VR全景
VR全景
设计说明
一层弧形背景墙随性自在,展开此间恰当而简趣的叙事开场,剔除繁冗的「杂」,核心细节更具视觉层次。
更多信息

效果图
6d6fef90fc56af6e980393218845d8c.jpg

b336b92e1b068e5e978c018f8992559.jpg
回复

使用道具 举报

 楼主| 发表于 2022-9-4 09:56:21 | 显示全部楼层
回复 支持 反对

使用道具 举报

 楼主| 发表于 2022-9-4 09:56:37 | 显示全部楼层

原始结构图
截图20220904094257.png
回复 支持 反对

使用道具 举报

 楼主| 发表于 2022-9-4 09:56:56 | 显示全部楼层

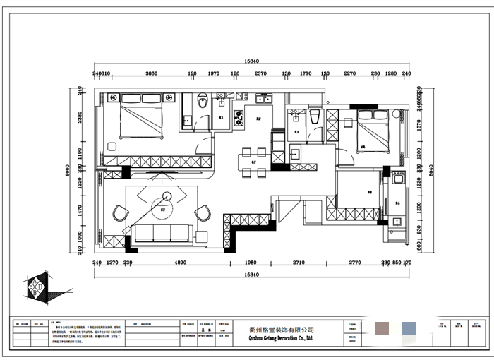
平面布置图
截图20220904094138.png
回复 支持 反对

使用道具 举报

 楼主| 发表于 2022-9-4 09:57:59 | 显示全部楼层

开工前准备工作,先要做好了哦!
IMG_0576.JPG

IMG_0578.JPG
回复 支持 反对

使用道具 举报

 楼主| 发表于 2022-9-4 09:58:37 | 显示全部楼层

大门保护好了,防止磕碰哦!
IMG_0579.JPG

IMG_0583.JPG
回复 支持 反对

使用道具 举报

 楼主| 发表于 2022-9-4 09:59:10 | 显示全部楼层

煤气表也要保护起来,防止磕碰哦!
IMG_0584.JPG
回复 支持 反对

使用道具 举报

 楼主| 发表于 2022-9-4 10:00:02 | 显示全部楼层

螺丝马桶安装好了,方便师傅使用,要讲究卫生哦!
IMG_0581.JPG
回复 支持 反对

使用道具 举报

 楼主| 发表于 2022-9-4 10:02:34 | 显示全部楼层

下水管用格堂专用保护盖保护,防止砂石堵塞管道。
IMG_0585.JPG
回复 支持 反对

使用道具 举报

 楼主| 发表于 2022-9-4 10:04:24 | 显示全部楼层

准备就绪,等待开工,吉时啦!
IMG_0589.JPG

IMG_0594.JPG
回复 支持 反对

使用道具 举报

您需要登录后才可以回帖 登录 | 立即注册

本版积分规则

全国统一客服电话
0570-8028505

24x7小时免费咨询

  • 官方在线客服

    QQ客服:小西

    点击交谈

    QQ客服:良子

    点击交谈

    QQ客服:闵月

    点击交谈
  • 衢州市柯城区财富中心3号楼2楼

  • 衢州格堂装饰有限公司

  • 扫一扫关注官方微信

    获取一手特惠信息

快速回复 返回顶部 返回列表