• 手机版

    扫码体验手机版

  • 微信公众号

    扫码关注公众号

登录注册
游客您好
第三方账号登陆

香缇公馆3--3-#250㎡——简洁的白色空间。

[复制链接]
发表于 2023-7-5 09:20:14 | 显示全部楼层 |阅读模式
香缇公馆3--3-#250㎡——简洁的白色空间。

格堂装饰实景完工案例欣赏!

小区名称
香缇公馆
房屋面积
250㎡
户型结构
别墅
装修风格
现代
装修方式
半包
装修造价
查看请联系客服万元
设计师
佘工
项目经理
刘工
装修公司
格堂装饰
装修过程
装修日记
设计说明
家居空间无需繁复的装饰,但需要有趣的造型与精致的细节,低调的诠释出对生活的热爱。


简洁的白色空间,剔除了繁杂琐碎的墙面装饰,在光影的作用下,形成了巧妙的色彩变化。定制的亚克力餐椅与风扇造型的吊灯,使得用餐空间变得立体且时尚。
更多信息
7E1A5570.jpg

回复

使用道具 举报

 楼主| 发表于 2023-7-5 09:21:31 | 显示全部楼层
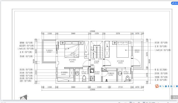
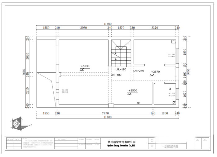
原始构图▼▼▼

093451b1it8chm85i81hv1.png

093451chvj3h7cpvv07jgc.png

093451ehz8cxnhvnjyh4ze.png

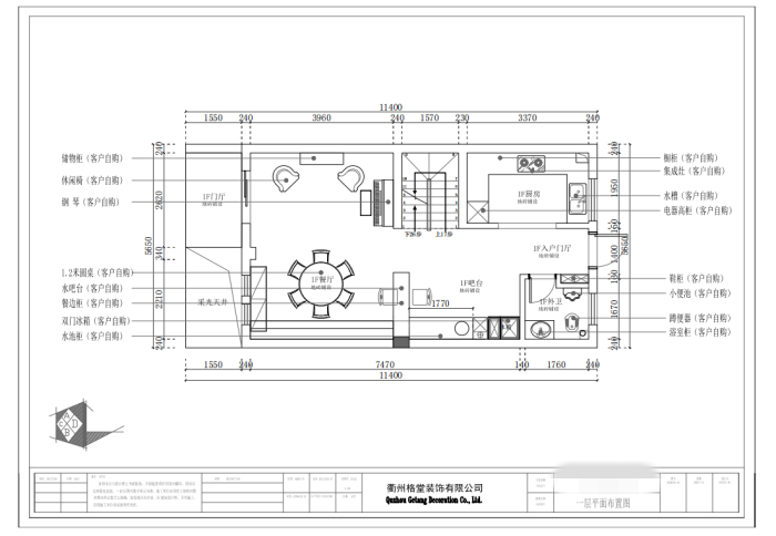
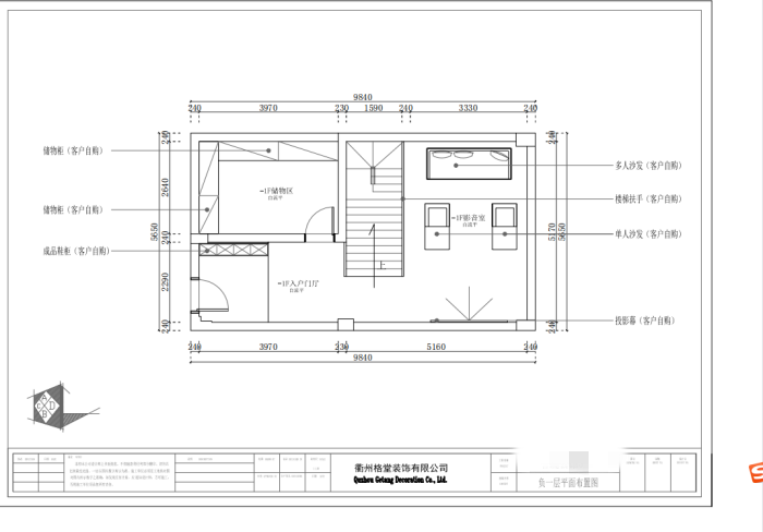
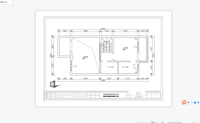
平面布置图▼▼▼

093829bhjtihoo3a4hri4a.png

093829hbh83j6eydilhl8j.png

093829wh9chdcn59vsshly.png



回复 支持 反对

使用道具 举报

 楼主| 发表于 2023-7-5 09:22:15 | 显示全部楼层
客厅▼▼▼



7E1A5569.jpg


7E1A5570.jpg




回复 支持 反对

使用道具 举报

 楼主| 发表于 2023-7-5 09:22:37 | 显示全部楼层
餐厅▼▼▼



7E1A5564.jpg


7E1A5566.jpg


7E1A5567.jpg


7E1A5568.jpg




回复 支持 反对

使用道具 举报

 楼主| 发表于 2023-7-5 09:23:01 | 显示全部楼层
过道▼▼▼



7E1A5593.jpg


7E1A5594.jpg


7E1A5599.jpg






回复 支持 反对

使用道具 举报

 楼主| 发表于 2023-7-5 09:23:24 | 显示全部楼层
厨房▼▼▼



7E1A5606.jpg


7E1A5607.jpg


7E1A5608.jpg




回复 支持 反对

使用道具 举报

 楼主| 发表于 2023-7-5 09:24:03 | 显示全部楼层
主卧▼▼▼



7E1A5622.jpg


7E1A5623.jpg


7E1A5624.jpg




回复 支持 反对

使用道具 举报

 楼主| 发表于 2023-7-5 09:24:23 | 显示全部楼层
次卧▼▼▼



7E1A5614.jpg


7E1A5615.jpg


7E1A5616.jpg




回复 支持 反对

使用道具 举报

 楼主| 发表于 2023-7-5 09:25:08 | 显示全部楼层
三楼卧室▼▼▼



7E1A5634.jpg


7E1A5635.jpg


7E1A5636.jpg



回复 支持 反对

使用道具 举报

 楼主| 发表于 2023-7-5 09:25:30 | 显示全部楼层
书房▼▼▼



7E1A5629.jpg


7E1A5630.jpg


回复 支持 反对

使用道具 举报

您需要登录后才可以回帖 登录 | 立即注册

本版积分规则

全国统一客服电话
0570-8028505

24x7小时免费咨询

  • 官方在线客服

    QQ客服:小西

    点击交谈

    QQ客服:良子

    点击交谈

    QQ客服:闵月

    点击交谈
  • 衢州市柯城区财富中心3号楼2楼

  • 衢州格堂装饰有限公司

  • 扫一扫关注官方微信

    获取一手特惠信息

快速回复 返回顶部 返回列表