• 手机版

    扫码体验手机版

  • 微信公众号

    扫码关注公众号

登录注册
游客您好
第三方账号登陆

[衢州] 香缇公馆3--3-#250㎡——简洁的白色空间。

[复制链接]
发表于 2021-12-21 09:33:45 | 显示全部楼层 |阅读模式
简洁的白色空间

格堂装饰为您全程记录装修全过程!

小区名称
香缇公馆
房屋面积
250㎡
户型结构
别墅
装修风格
现代
装修方式
半包
装修造价
查看请联系客服万元
设计师
余工
项目经理
刘工
装修公司
格堂装饰
完工实景
完工实景
水电全景
水电全景
VR全景
VR全景
设计说明
家居空间无需繁复的装饰,但需要有趣的造型与精致的细节,低调的诠释出对生活的热爱。


简洁的白色空间,剔除了繁杂琐碎的墙面装饰,在光影的作用下,形成了巧妙的色彩变化。定制的亚克力餐椅与风扇造型的吊灯,使得用餐空间变得立体且时尚。
更多信息
回复

使用道具 举报

 楼主| 发表于 2021-12-21 09:35:12 | 显示全部楼层

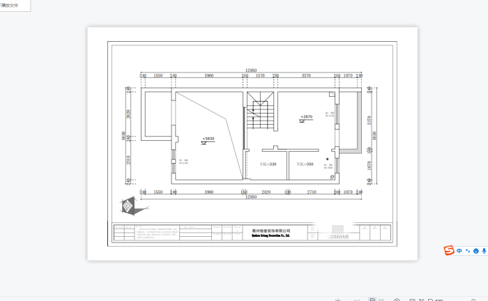
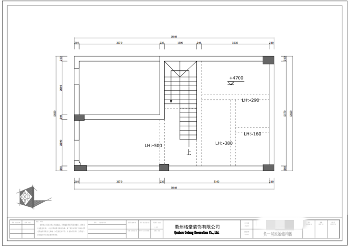
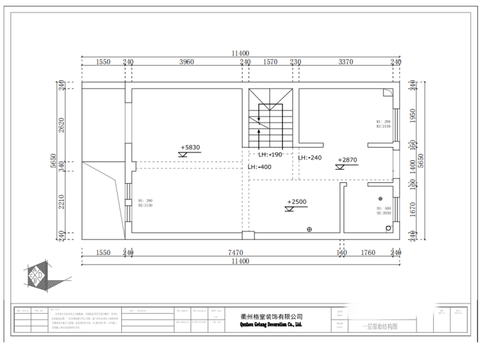
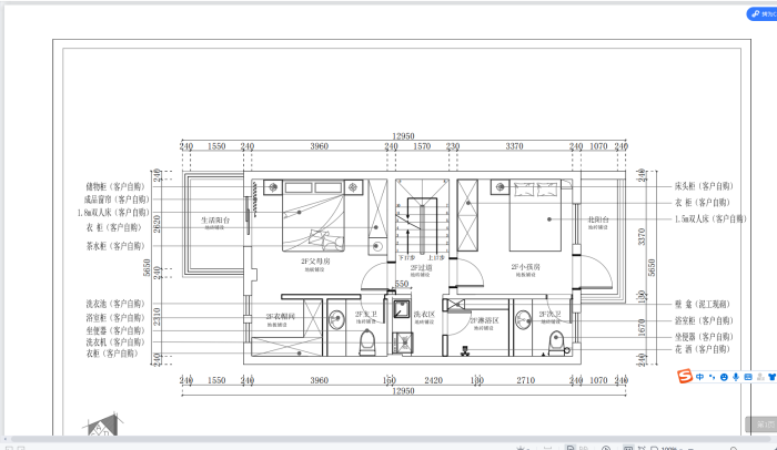
原始结构图
微信截图_20211219174106.png

微信截图_20211219174303.png

微信截图_20211219174422.png
回复 支持 反对

使用道具 举报

 楼主| 发表于 2021-12-21 09:38:44 | 显示全部楼层

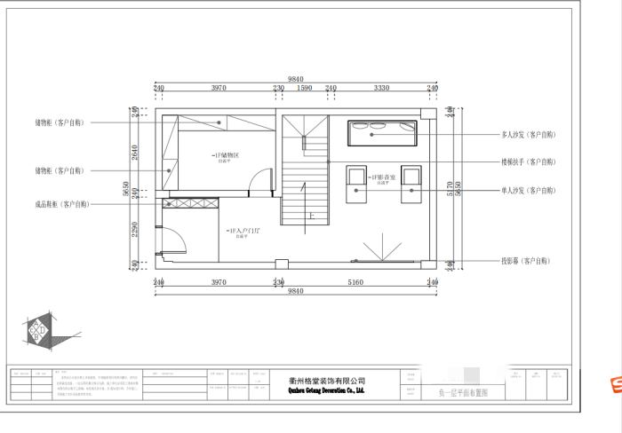
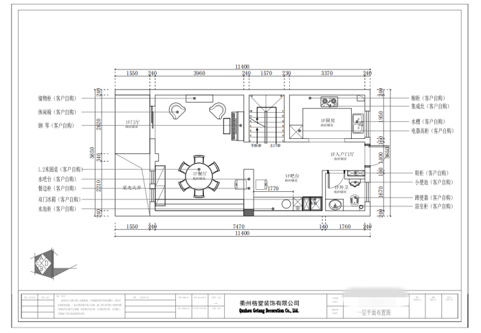
平面布置图
微信截图_20211219173937.png

微信截图_20211219174234.png

微信截图_20211219174357.png
回复 支持 反对

使用道具 举报

 楼主| 发表于 2021-12-21 09:50:46 | 显示全部楼层

开工前大门,先要保护起来,防止磕碰!
IMG_20211210_092747.jpg
回复 支持 反对

使用道具 举报

 楼主| 发表于 2021-12-21 09:52:06 | 显示全部楼层

煤气表也要保护起来,防止磕碰哦!
IMG_20211210_092752.jpg

IMG_20211210_092807.jpg
回复 支持 反对

使用道具 举报

 楼主| 发表于 2021-12-21 09:55:37 | 显示全部楼层

下水管用格堂专用保护盖保护,防止砂石堵塞管道。

IMG_20211210_092801.jpg

IMG_20211210_093029.jpg

IMG_20211210_093027.jpg
回复 支持 反对

使用道具 举报

 楼主| 发表于 2021-12-21 09:56:45 | 显示全部楼层

临时马桶安装到位,方便师傅使用,要讲究卫生间。
IMG_20211210_092756.jpg

IMG_20211210_092758.jpg
回复 支持 反对

使用道具 举报

 楼主| 发表于 2021-12-21 10:02:24 | 显示全部楼层
一切准备就绪,就等开工吉时啦!
IMG_20211210_092734.jpg

IMG_20211210_092739.jpg
回复 支持 反对

使用道具 举报

 楼主| 发表于 2021-12-21 10:04:12 | 显示全部楼层

吉时已到,恭祝业主大人,开工大吉!
IMG_6294.JPG
回复 支持 反对

使用道具 举报

 楼主| 发表于 2021-12-21 10:06:57 | 显示全部楼层

开工第一锤,由业主大人,亲自来哦!
IMG_20211210_095907.jpg

IMG_20211210_095907_1.jpg
回复 支持 反对

使用道具 举报

您需要登录后才可以回帖 登录 | 立即注册

本版积分规则

全国统一客服电话
0570-8028505

24x7小时免费咨询

  • 官方在线客服

    QQ客服:小西

    点击交谈

    QQ客服:良子

    点击交谈

    QQ客服:闵月

    点击交谈
  • 衢州市柯城区财富中心3号楼2楼

  • 衢州格堂装饰有限公司

  • 扫一扫关注官方微信

    获取一手特惠信息

快速回复 返回顶部 返回列表