• 手机版

    扫码体验手机版

  • 微信公众号

    扫码关注公众号

登录注册
游客您好
第三方账号登陆

[龙游] 湖镇赵家自建房180㎡新中式——暖 韵

[复制链接]
发表于 2023-6-7 10:17:25 | 显示全部楼层 |阅读模式
暖韵

格堂装饰为您全程记录装修全过程!

小区名称
湖镇赵家
房屋面积
180㎡
户型结构
框架结构
装修风格
新中式
装修方式
半包
装修造价
查看请联系客服万元
设计师
金工
项目经理
沈工
装修公司
格堂装饰
完工实景
完工实景
水电全景
水电全景
VR全景
VR全景
设计说明
中式的美,是一种意境之美,一墙一廊,一灯一盏、一桌一椅,古香流韵,皆为室内一景,有着诉不完的东方情怀,道不尽的古典美韵。这诉不完的美韵尽现而出,实为中式之美一部分。
更多信息
本帖最后由 格堂艳子 于 2023-10-28 16:08 编辑

效果图
IMG_5381(20230607-095712).JPG

IMG_5385(20230607-095731).JPG

IMG_5384(20230607-095727).JPG

IMG_5382(20230607-095717).JPG






目      录


1开工  9泥木工完工
2拆改                砌墙10橱柜安装     地板安装
3水电放样        水电材料11柜子安装
4水电中途        水电完工12竣工完工图
5水电细节        水电验收13
6防水阶段        木工材料14
7木工阶段        泥工阶段15
8油漆材料        油漆阶段  16

回复

使用道具 举报

 楼主| 发表于 2023-6-7 10:23:01 | 显示全部楼层
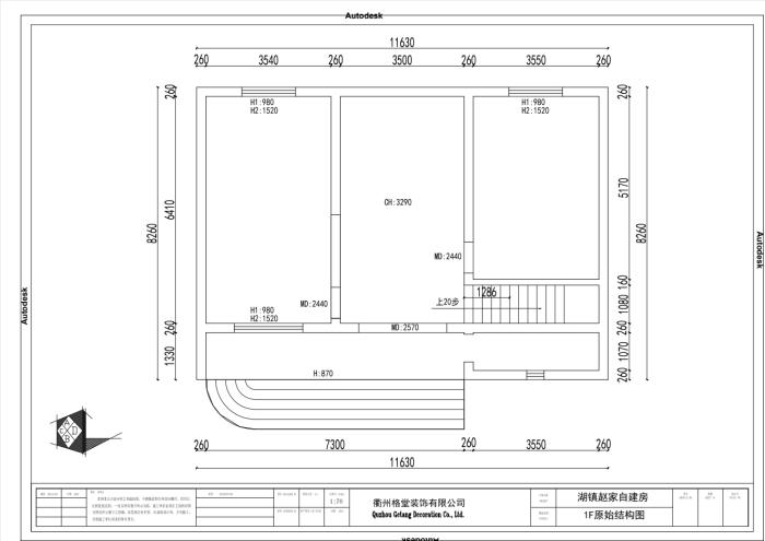
原始结构图
IMG_5376.PNG

IMG_5377.PNG

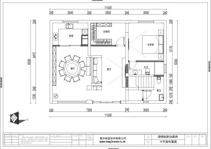
平面布置图

IMG_5380.PNG

IMG_5379.PNG
回复 支持 反对

使用道具 举报

 楼主| 发表于 2023-6-7 10:27:01 | 显示全部楼层
开工前准备

IMG_9449(1).JPG

IMG_9451(1).JPG


回复 支持 反对

使用道具 举报

 楼主| 发表于 2023-6-7 10:27:40 | 显示全部楼层
卧室

IMG_9453(1).JPG

IMG_9454(1).JPG

IMG_9455(1).JPG
回复 支持 反对

使用道具 举报

 楼主| 发表于 2023-6-7 10:28:10 | 显示全部楼层


IMG_9458(1).JPG

IMG_9456(1).JPG

IMG_9457(1).JPG
回复 支持 反对

使用道具 举报

 楼主| 发表于 2023-6-7 10:28:51 | 显示全部楼层
卧室

IMG_9459(1).JPG

IMG_9462(1).JPG

IMG_9463(1).JPG

IMG_9465(1).JPG
回复 支持 反对

使用道具 举报

 楼主| 发表于 2023-6-7 10:34:49 | 显示全部楼层
四大工种的施工规范牌,同样展示到位,方便检查和验收。进度控制表,使工地进度按预定的目标进行,确保按期完工。施工铭牌上标示着设计师、项目经理、施工工人的姓名和电话,方便业主随时监督。

IMG_9473(1).JPG
回复 支持 反对

使用道具 举报

 楼主| 发表于 2023-6-7 10:37:57 | 显示全部楼层
开工锤已准备好

IMG_9468(1).JPG
回复 支持 反对

使用道具 举报

 楼主| 发表于 2023-6-7 10:38:23 | 显示全部楼层
礼炮已准备好

IMG_9470(1).JPG
回复 支持 反对

使用道具 举报

 楼主| 发表于 2023-6-7 10:38:49 | 显示全部楼层
IMG_9466(1).JPG
回复 支持 反对

使用道具 举报

您需要登录后才可以回帖 登录 | 立即注册

本版积分规则

全国统一客服电话
0570-8028505

24x7小时免费咨询

  • 官方在线客服

    QQ客服:小西

    点击交谈

    QQ客服:良子

    点击交谈

    QQ客服:闵月

    点击交谈
  • 衢州市柯城区财富中心3号楼2楼

  • 衢州格堂装饰有限公司

  • 扫一扫关注官方微信

    获取一手特惠信息

快速回复 返回顶部 返回列表