• 手机版

    扫码体验手机版

  • 微信公众号

    扫码关注公众号

登录注册
游客您好
第三方账号登陆

[衢州] 郁金香郡22-1-3#156㎡ 现代----空间藏景

[复制链接]
发表于 2023-5-9 11:19:34 | 显示全部楼层 |阅读模式
郁金香郡22-1-3#156㎡ 现代----空间藏景

格堂装饰为您全程记录装修全过程!

小区名称
郁金香郡
房屋面积
156㎡
户型结构
套房
装修风格
现代
装修方式
半包
装修造价
查看请联系客服万元
设计师
石工
项目经理
周工
装修公司
格堂装饰
完工实景
完工实景
水电全景
水电全景
VR全景
VR全景
设计说明
质朴,是天真是自然无需刻意雕琢
雅致,是高雅的意趣蕴含考究细节
褪去复杂留下融于生活的景
更多信息
效果图
效果图1.png

效果图2.png

效果图3.png

效果图4.png
回复

使用道具 举报

 楼主| 发表于 2023-5-9 11:27:49 | 显示全部楼层
本帖最后由 格堂柴姐 于 2024-1-17 15:51 编辑

目      录


回复 支持 反对

使用道具 举报

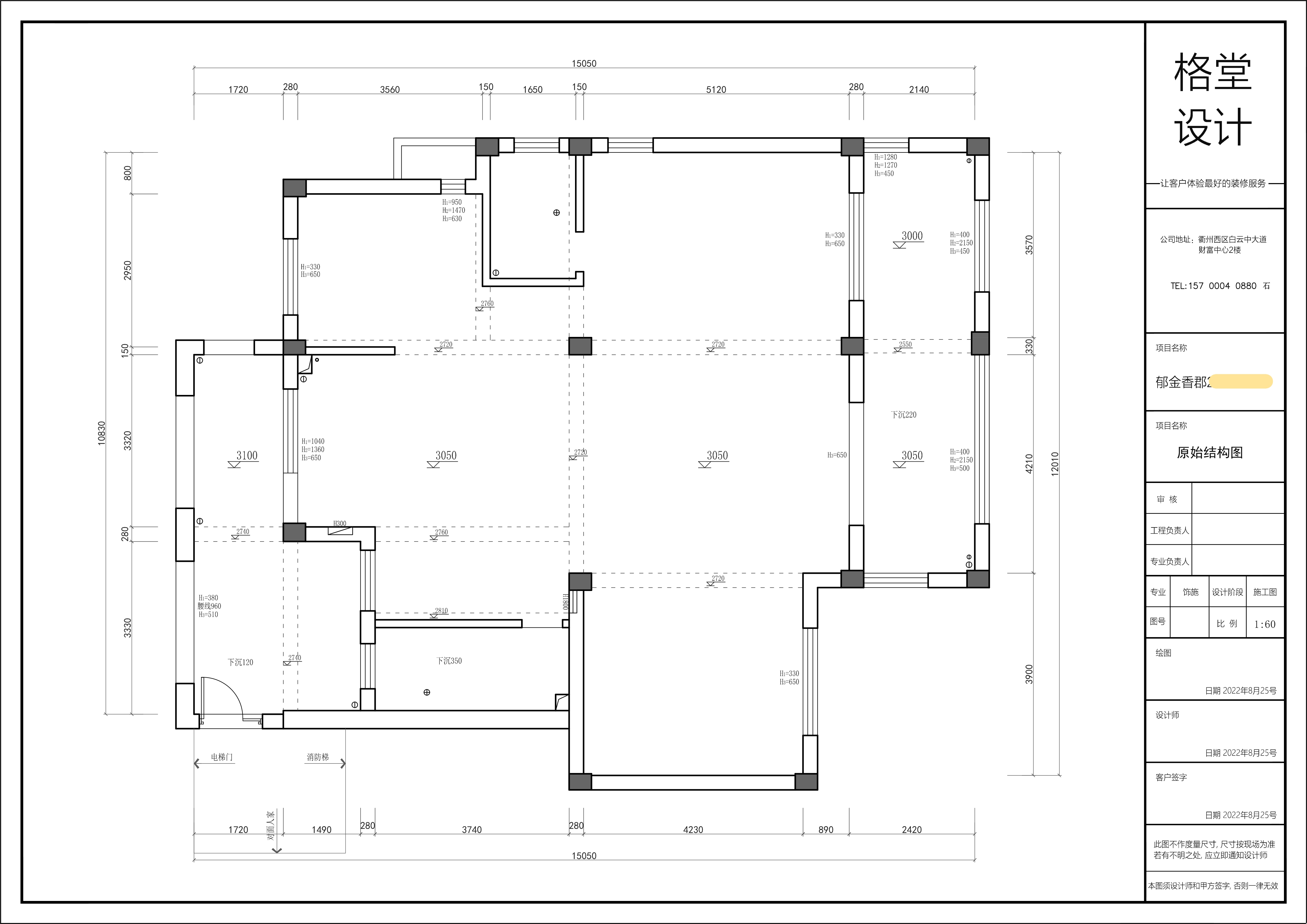
 楼主| 发表于 2023-5-9 11:32:56 | 显示全部楼层
原始结构图: 微信图片_20230507174405.jpg



回复 支持 反对

使用道具 举报

 楼主| 发表于 2023-5-9 11:33:22 | 显示全部楼层
平面布置图
微信图片_20230507174416.jpg
回复 支持 反对

使用道具 举报

 楼主| 发表于 2023-5-9 11:34:04 | 显示全部楼层
本帖最后由 格堂柴姐 于 2023-5-17 09:15 编辑

开工前,电梯口墙面和地面已经保护到位
微信图片_20230507174719.jpg

微信图片_20230507174723.jpg

IMG_20230515_104009.jpg

IMG_20230515_104019.jpg

IMG_20230515_104023.jpg

IMG_20230515_104026.jpg

IMG_20230515_104030.jpg

IMG_20230515_104033.jpg

IMG_20230515_104047.jpg

IMG_20230515_104050.jpg

IMG_20230515_104144.jpg

IMG_20230515_104146.jpg

IMG_20230515_104150.jpg

IMG_20230515_104152.jpg

IMG_20230515_104155.jpg

IMG_20230515_104159.jpg
回复 支持 反对

使用道具 举报

 楼主| 发表于 2023-5-9 11:35:47 | 显示全部楼层
大门已经保护到位
微信图片_20230507174728.jpg

微信图片_20230507174731.jpg
回复 支持 反对

使用道具 举报

 楼主| 发表于 2023-5-9 11:36:11 | 显示全部楼层
本帖最后由 格堂柴姐 于 2023-5-9 11:38 编辑

煤气表已经保护到位 微信图片_20230507174429.jpg

微信图片_20230507174814.jpg

回复 支持 反对

使用道具 举报

 楼主| 发表于 2023-5-9 11:36:37 | 显示全部楼层
临时小便池已经安放好了:每一个施工现场都会配备临时小便斗,并且时刻保持干净卫生,保证工地环境干净整洁
微信图片_20230507174820.jpg
回复 支持 反对

使用道具 举报

 楼主| 发表于 2023-5-9 11:37:20 | 显示全部楼层
各露出的管道也已封堵好
微信图片_20230507174817.jpg

微信图片_20230507174824.jpg
回复 支持 反对

使用道具 举报

 楼主| 发表于 2023-5-9 11:38:11 | 显示全部楼层
开工仪式准备,开工横幅、鲜花、礼花准备到位,就等吉时!
微信图片_20230507174419.jpg

微信图片_20230507174423.jpg

微信图片_20230507174426.jpg
回复 支持 反对

使用道具 举报

您需要登录后才可以回帖 登录 | 立即注册

本版积分规则

全国统一客服电话
0570-8028505

24x7小时免费咨询

  • 官方在线客服

    QQ客服:小西

    点击交谈

    QQ客服:良子

    点击交谈

    QQ客服:闵月

    点击交谈
  • 衢州市柯城区财富中心3号楼2楼

  • 衢州格堂装饰有限公司

  • 扫一扫关注官方微信

    获取一手特惠信息

快速回复 返回顶部 返回列表