• 手机版

    扫码体验手机版

  • 微信公众号

    扫码关注公众号

登录注册
游客您好
第三方账号登陆

[衢州] 丁香里6-1-5# 130㎡新中式---云锦

[复制链接]
发表于 2023-5-2 12:27:19 | 显示全部楼层 |阅读模式
丁香里6-1-5# 130㎡新中式---云锦

格堂装饰为您全程记录装修全过程!

小区名称
丁香里
房屋面积
130㎡
户型结构
套房
装修风格
中式
装修方式
半包
装修造价
查看请联系客服万元
设计师
江工
项目经理
郑工
装修公司
格堂装饰
完工实景
完工实景
水电全景
水电全景
VR全景
VR全景
设计说明
云锦因其色泽光丽灿烂,美如天上云霞而得名。宋雅之美,是抛弃了表面的物化,寻求心灵情景精深透妙的观照,根源与未来,时间和空间的维度交织错落,成就令人向往的未来生活日常。
更多信息
效果图
效果图1.png

效果图2.png

效果图3.png

效果图4.png

效果图5.png
回复

使用道具 举报

 楼主| 发表于 2023-5-2 12:29:02 | 显示全部楼层
回复 支持 反对

使用道具 举报

 楼主| 发表于 2023-5-2 12:31:17 | 显示全部楼层
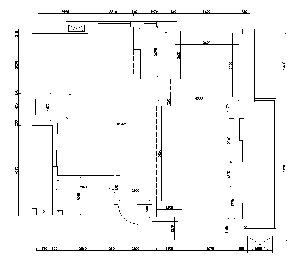
原始结构图
原始结构图.png
回复 支持 反对

使用道具 举报

 楼主| 发表于 2023-5-2 12:31:56 | 显示全部楼层
平面布置图
平面布置图.png
回复 支持 反对

使用道具 举报

 楼主| 发表于 2023-5-2 12:37:52 | 显示全部楼层
本帖最后由 格堂柴姐 于 2023-5-5 11:06 编辑

开工前,电梯口墙面和地面已经保护到位
5.jpg

IMG_20230505_064332.jpg

IMG_20230505_064341.jpg

IMG_20230505_064345.jpg

回复 支持 反对

使用道具 举报

 楼主| 发表于 2023-5-2 12:38:25 | 显示全部楼层
门槛已经保护到位。
9.jpg

回复 支持 反对

使用道具 举报

 楼主| 发表于 2023-5-2 12:39:08 | 显示全部楼层
大门已经保护到位。
1.jpg

2.jpg

回复 支持 反对

使用道具 举报

 楼主| 发表于 2023-5-2 12:39:24 | 显示全部楼层
本帖最后由 格堂柴姐 于 2023-5-5 11:05 编辑

煤气表已经保护到位
IMG_20230505_064238.jpg

各露出的管道也已封堵好
IMG_20230505_064247.jpg

IMG_20230505_064308.jpg



回复 支持 反对

使用道具 举报

 楼主| 发表于 2023-5-2 12:39:48 | 显示全部楼层
临时小便池已经安放好了:每一个施工现场都会配备临时小便斗,并且时刻保持干净卫生,保证工地环境干净整洁。
6.jpg

回复 支持 反对

使用道具 举报

 楼主| 发表于 2023-5-2 12:40:17 | 显示全部楼层
开工仪式准备,开工横幅、鲜花、礼花准备到位,就等吉时!
3.jpg

4.jpg

回复 支持 反对

使用道具 举报

您需要登录后才可以回帖 登录 | 立即注册

本版积分规则

全国统一客服电话
0570-8028505

24x7小时免费咨询

  • 官方在线客服

    QQ客服:小西

    点击交谈

    QQ客服:良子

    点击交谈

    QQ客服:闵月

    点击交谈
  • 衢州市柯城区财富中心3号楼2楼

  • 衢州格堂装饰有限公司

  • 扫一扫关注官方微信

    获取一手特惠信息

快速回复 返回顶部 返回列表