• 手机版

    扫码体验手机版

  • 微信公众号

    扫码关注公众号

登录注册
游客您好
第三方账号登陆

常山百悦城4-4-3#144㎡现代——温存

[复制链接]
发表于 2023-2-15 15:30:22 | 显示全部楼层 |阅读模式
常山百悦城4-4-3#144㎡现代——温存

格堂装饰实景完工案例欣赏!

小区名称
常山百悦城
房屋面积
144㎡
户型结构
套房
装修风格
现代
装修方式
半包
装修造价
查看请联系客服万元
设计师
杨工
项目经理
施工
装修公司
格堂装饰
装修过程
装修日记
设计说明
美好生活的意义,存在于日常生活中
更多信息
本帖最后由 格堂方俊 于 2023-2-25 16:27 编辑

7E1A6571.jpg


回复

使用道具 举报

 楼主| 发表于 2023-2-15 15:31:45 | 显示全部楼层
原始构图▼▼▼‘’
141227cvpo2aqs4st4p4q2.jpg

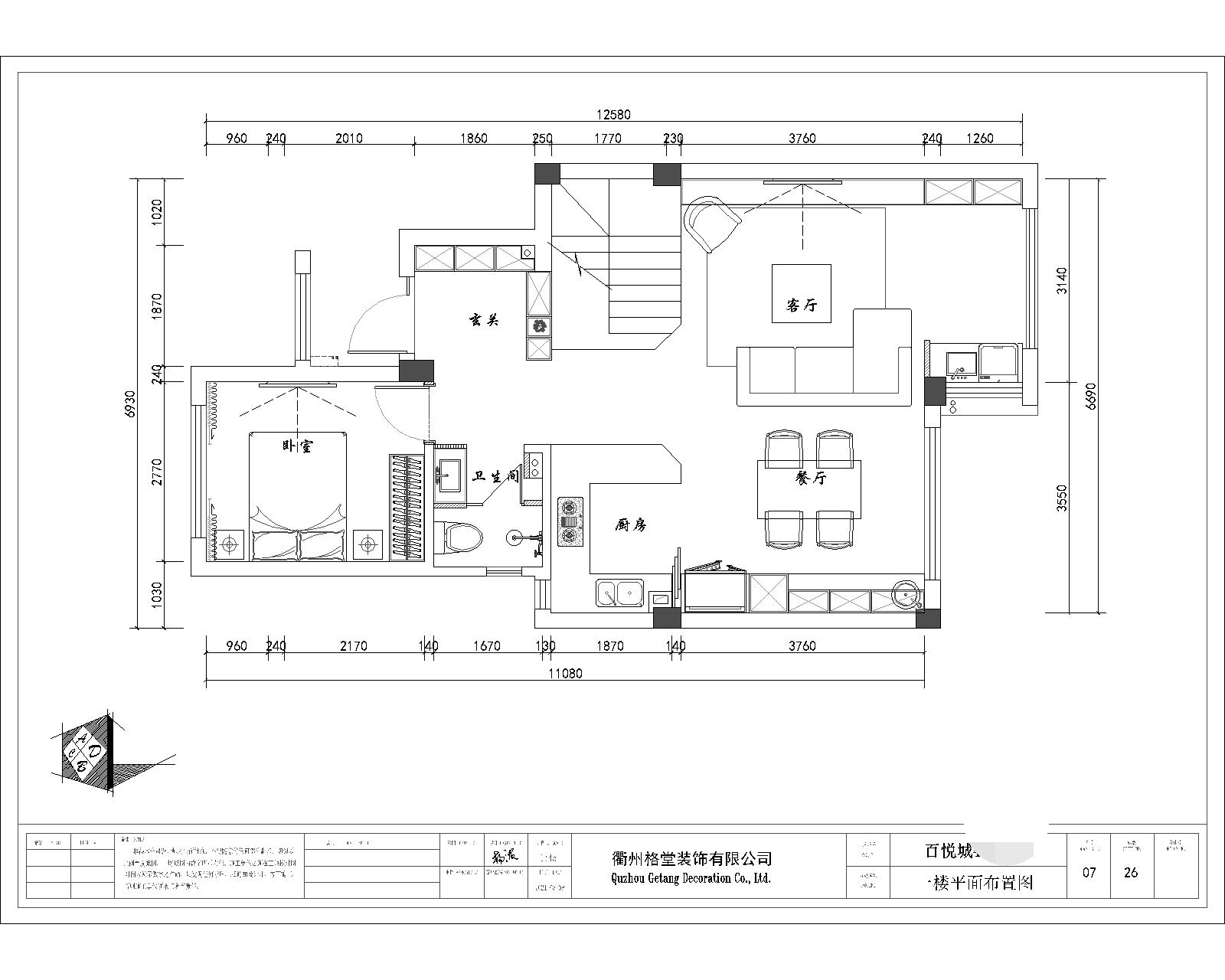
平面布置图▼▼▼

141257wqkqcrgxtqzyclgg.jpg





回复 支持 反对

使用道具 举报

 楼主| 发表于 2023-2-15 15:32:31 | 显示全部楼层
客厅▼▼▼





7E1A6573.jpg


7E1A6574.jpg




回复 支持 反对

使用道具 举报

 楼主| 发表于 2023-2-15 15:32:58 | 显示全部楼层
餐厅▼▼▼



7E1A6567.jpg


7E1A6572.jpg




回复 支持 反对

使用道具 举报

 楼主| 发表于 2023-2-15 15:33:15 | 显示全部楼层
厨房▼▼▼



7E1A6568.jpg


7E1A6569.jpg


7E1A6570.jpg




回复 支持 反对

使用道具 举报

 楼主| 发表于 2023-2-15 15:33:38 | 显示全部楼层
玄关▼▼▼



7E1A6562.jpg


7E1A6563.jpg


7E1A6566.jpg




回复 支持 反对

使用道具 举报

 楼主| 发表于 2023-2-15 15:34:08 | 显示全部楼层
7E1A6553.jpg


7E1A6551.jpg


回复 支持 反对

使用道具 举报

 楼主| 发表于 2023-2-15 15:34:30 | 显示全部楼层
次卧▼▼▼



7E1A6548.jpg


7E1A6549.jpg




回复 支持 反对

使用道具 举报

 楼主| 发表于 2023-2-15 15:35:01 | 显示全部楼层
干区▼▼▼



7E1A6555.jpg


7E1A6559.jpg


7E1A6564.jpg


7E1A6565.jpg




回复 支持 反对

使用道具 举报

 楼主| 发表于 2023-2-15 15:35:33 | 显示全部楼层
楼梯间▼▼▼



7E1A6561.jpg


7E1A6576.jpg


7E1A6577.jpg




回复 支持 反对

使用道具 举报

您需要登录后才可以回帖 登录 | 立即注册

本版积分规则

全国统一客服电话
0570-8028505

24x7小时免费咨询

  • 官方在线客服

    QQ客服:小西

    点击交谈

    QQ客服:良子

    点击交谈

    QQ客服:闵月

    点击交谈
  • 衢州市柯城区财富中心3号楼2楼

  • 衢州格堂装饰有限公司

  • 扫一扫关注官方微信

    获取一手特惠信息

快速回复 返回顶部 返回列表