• 手机版

    扫码体验手机版

  • 微信公众号

    扫码关注公众号

登录注册
游客您好
第三方账号登陆

[常山] 常山百悦城4-4-3#144㎡现代——温存

[复制链接]
发表于 2021-9-2 14:11:49 | 显示全部楼层 |阅读模式
常山百悦城4-4#144㎡现代——温存

格堂装饰为您全程记录装修全过程!

小区名称
百悦城
房屋面积
144㎡
户型结构
复式
装修风格
现代
装修方式
半包
装修造价
查看请联系客服万元
设计师
杨工
项目经理
施工
装修公司
格堂装饰
完工实景
完工实景
水电全景
水电全景
VR全景
VR全景
设计说明
美好生活的意义,存在于日常生活中
更多信息
本帖最后由 格堂小丽 于 2021-10-31 14:56 编辑

效果图
c8f6285df97c8f09b9bf0e2e29cbe84.jpg

9031dfdde043a7cd4f3bf89b524dfbf.jpg
回复

使用道具 举报

 楼主| 发表于 2021-9-2 14:12:03 | 显示全部楼层
回复 支持 反对

使用道具 举报

 楼主| 发表于 2021-9-2 14:12:43 | 显示全部楼层
一楼原始结构图
9cf844fdf6cc54d799ab544ee021e57.jpg
回复 支持 反对

使用道具 举报

 楼主| 发表于 2021-9-2 14:13:06 | 显示全部楼层
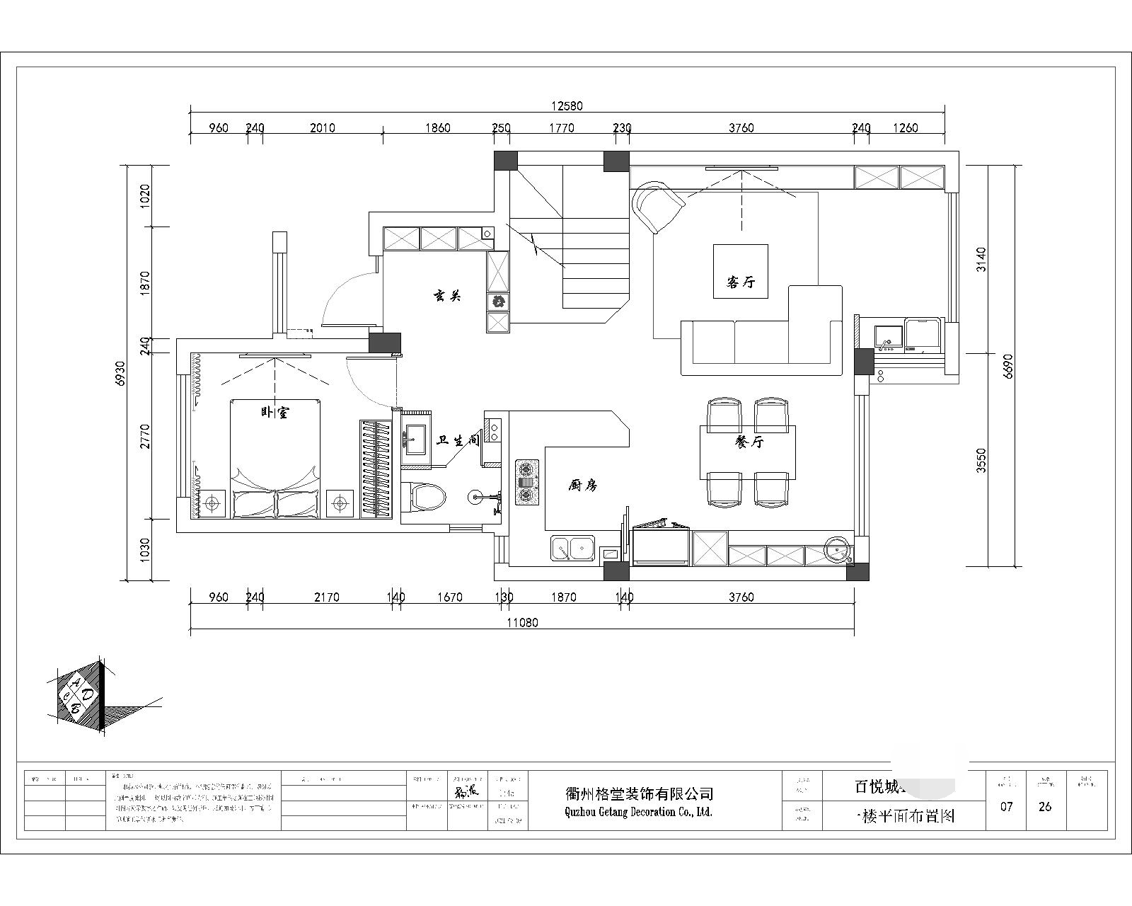
一楼平面布置图
536eebeae4877d6de8dce7c6d33db0b.jpg
回复 支持 反对

使用道具 举报

 楼主| 发表于 2021-9-2 14:13:24 | 显示全部楼层
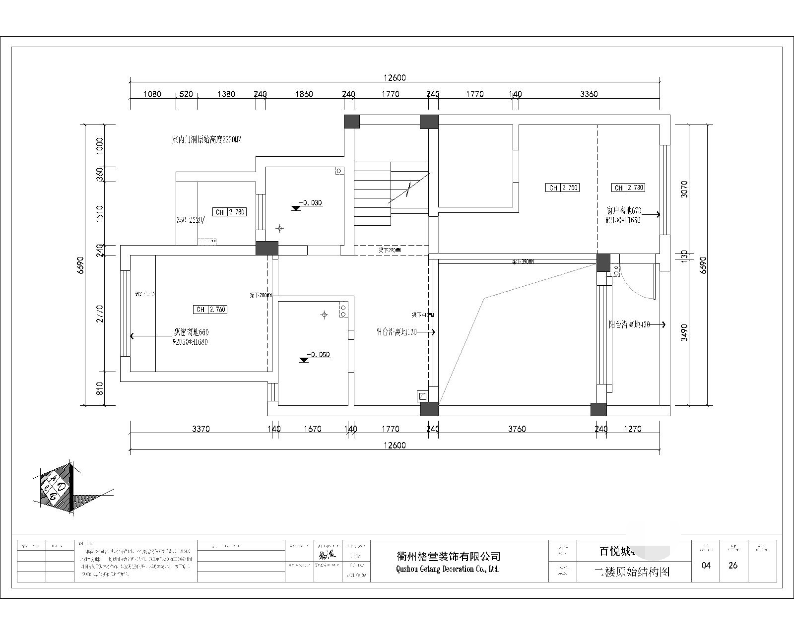
二楼原始结构图
643cde6c5098986ffd55a559c5a904d.jpg
回复 支持 反对

使用道具 举报

 楼主| 发表于 2021-9-2 14:13:44 | 显示全部楼层
二楼平面布置图
90d80359c88c72b9850f376ea621c6d.jpg
回复 支持 反对

使用道具 举报

 楼主| 发表于 2021-9-2 14:15:40 | 显示全部楼层
本帖最后由 格堂小丽 于 2021-9-2 14:21 编辑

良辰吉日,开工咯!开工仪式准备工作先做起来,施工铭牌装订好。
1225de4ad3d92403c8b66cc63b1ecb0.jpg

c741c78db6757985978c0f7aa12b3bf.jpg


回复 支持 反对

使用道具 举报

 楼主| 发表于 2021-9-2 14:22:07 | 显示全部楼层
鲜花礼炮也要一起准备好
3fcbb0db5d13c09e02adc7c408ab3c9.jpg

1913c5eb8bbb833672bb92a50d39aff.jpg
回复 支持 反对

使用道具 举报

 楼主| 发表于 2021-9-2 14:22:35 | 显示全部楼层
大门保护,防止后期磕碰到
fdf8fb9517cc22ef2301739c4c8c870.jpg

12e14f4086e6fa8381a77ec9969dadd.jpg
回复 支持 反对

使用道具 举报

 楼主| 发表于 2021-9-2 14:24:26 | 显示全部楼层
门槛也要保护好
165124a6evy08pp6p4l00y.jpg
回复 支持 反对

使用道具 举报

您需要登录后才可以回帖 登录 | 立即注册

本版积分规则

全国统一客服电话
0570-8028505

24x7小时免费咨询

  • 官方在线客服

    QQ客服:小西

    点击交谈

    QQ客服:良子

    点击交谈

    QQ客服:闵月

    点击交谈
  • 衢州市柯城区财富中心3号楼2楼

  • 衢州格堂装饰有限公司

  • 扫一扫关注官方微信

    获取一手特惠信息

快速回复 返回顶部 返回列表