• 手机版

    扫码体验手机版

  • 微信公众号

    扫码关注公众号

登录注册
游客您好
第三方账号登陆

印江南5#4#130㎡现代——质朴自然风

[复制链接]
发表于 2023-1-14 09:32:49 | 显示全部楼层 |阅读模式
印江南5#4#130㎡现代——质朴自然风

格堂装饰实景完工案例欣赏!

小区名称
印江南
房屋面积
130㎡
户型结构
套房
装修风格
现代
装修方式
半包
装修造价
查看请联系客服万元
设计师
陈工
项目经理
杨工
装修公司
格堂装饰
装修过程
装修日记
设计说明
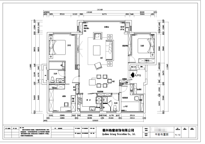
本案原户型结构为三房两厅的格局,初次与屋主沟通,详细了解屋主的需求,根据常住人口的架构,设计保留两个独立卧室,将公共区域,客厅、餐厅、厨房、书房各空间融合贯通,又功能明确,整体空间上运用清爽白色和木色元素,营造出居家生活的温度。
更多信息
本帖最后由 格堂设计 于 2025-3-18 10:35 编辑

7E1A3769.jpg
回复

使用道具 举报

 楼主| 发表于 2023-1-14 09:33:27 | 显示全部楼层
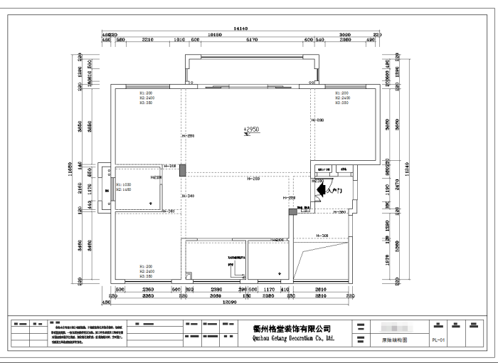
原始构图▼▼▼

163309nn6uvln69bn9lkkj.png

平面布置图▼▼▼

163337du5iooghhhuwzoj9.png




回复 支持 反对

使用道具 举报

 楼主| 发表于 2023-1-14 09:34:05 | 显示全部楼层
客厅▼▼▼



7E1A3742.jpg


7E1A3744.jpg


7E1A3745.jpg


7E1A3747.jpg


7E1A3769.jpg


7E1A3771.jpg


7E1A3772.jpg


7E1A3773.jpg


回复 支持 反对

使用道具 举报

 楼主| 发表于 2023-1-14 09:34:34 | 显示全部楼层
餐厅▼▼▼



7E1A3778.jpg


7E1A3779.jpg


7E1A3780.jpg


7E1A3781.jpg


7E1A3783.jpg


7E1A3786.jpg


回复 支持 反对

使用道具 举报

 楼主| 发表于 2023-1-14 09:35:10 | 显示全部楼层
玄关▼▼▼



7E1A3787.jpg


回复 支持 反对

使用道具 举报

 楼主| 发表于 2023-1-14 09:35:28 | 显示全部楼层
厨房▼▼▼



7E1A3791.jpg


7E1A3792.jpg


回复 支持 反对

使用道具 举报

 楼主| 发表于 2023-1-14 09:36:02 | 显示全部楼层
书房▼▼▼



7E1A3821.jpg


7E1A3822.jpg



回复 支持 反对

使用道具 举报

 楼主| 发表于 2023-1-14 09:36:21 | 显示全部楼层
主卫▼▼▼



7E1A3828.jpg


7E1A3829.jpg


7E1A3830.jpg




回复 支持 反对

使用道具 举报

 楼主| 发表于 2023-1-14 09:36:40 | 显示全部楼层
衣帽间▼▼▼



7E1A3831.jpg


7E1A3832.jpg


7E1A3833.jpg




回复 支持 反对

使用道具 举报

 楼主| 发表于 2023-1-14 09:37:11 | 显示全部楼层
主卫▼▼▼



7E1A3823.jpg


回复 支持 反对

使用道具 举报

您需要登录后才可以回帖 登录 | 立即注册

本版积分规则

全国统一客服电话
0570-8028505

24x7小时免费咨询

  • 官方在线客服

    QQ客服:小西

    点击交谈

    QQ客服:良子

    点击交谈

    QQ客服:闵月

    点击交谈
  • 衢州市柯城区财富中心3号楼2楼

  • 衢州格堂装饰有限公司

  • 扫一扫关注官方微信

    获取一手特惠信息

快速回复 返回顶部 返回列表