• 手机版

    扫码体验手机版

  • 微信公众号

    扫码关注公众号

登录注册
游客您好
第三方账号登陆

[龙游] 印江南5#4#130㎡现代——质朴自然风

[复制链接]
发表于 2022-4-19 16:28:41 | 显示全部楼层 |阅读模式
:质朴自然风

格堂装饰为您全程记录装修全过程!

小区名称
印江南
房屋面积
130㎡
户型结构
套房
装修风格
现代
装修方式
半包
装修造价
查看请联系客服万元
设计师
陈工
项目经理
杨工
装修公司
格堂装饰
完工实景
完工实景
水电全景
水电全景
VR全景
VR全景
设计说明
:本案原户型结构为三房两厅的格局,初次与屋主沟通,详细了解屋主的需求,根据常住人口的架构,设计保留两个独立卧室,将公共区域,客厅、餐厅、厨房、书房各空间融合贯通,又功能明确,整体空间上运用清爽白色和木色元素,营造出居家生活的温度。
更多信息
回复

使用道具 举报

 楼主| 发表于 2022-4-19 16:33:28 | 显示全部楼层
本帖最后由 格堂小静 于 2022-11-8 19:21 编辑

原始结构图
IMG_6458.PNG
回复 支持 反对

使用道具 举报

 楼主| 发表于 2022-4-19 16:33:55 | 显示全部楼层

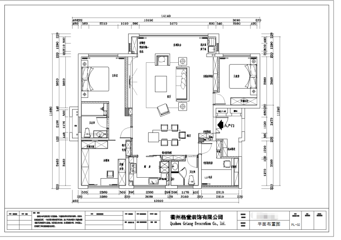
平面布置图
IMG_6459.PNG
回复 支持 反对

使用道具 举报

 楼主| 发表于 2022-4-19 16:34:31 | 显示全部楼层

开工布置
IMG_5898(1).JPG
回复 支持 反对

使用道具 举报

 楼主| 发表于 2022-4-19 16:34:59 | 显示全部楼层
开工鲜花
IMG_5900(1).JPG
回复 支持 反对

使用道具 举报

 楼主| 发表于 2022-4-19 16:36:22 | 显示全部楼层

加多宝
IMG_5899(1).JPG
回复 支持 反对

使用道具 举报

 楼主| 发表于 2022-4-19 16:36:39 | 显示全部楼层


IMG_5901(1).JPG
回复 支持 反对

使用道具 举报

 楼主| 发表于 2022-4-19 16:37:03 | 显示全部楼层


IMG_5881(1).JPG

IMG_5882(1).JPG
回复 支持 反对

使用道具 举报

 楼主| 发表于 2022-4-19 16:39:48 | 显示全部楼层

大门保护、电梯保护、地面保护,防止后期磕碰到
IMG_5887(1).JPG

IMG_5888(1).JPG

IMG_5889(1).JPG

IMG_5890(1).JPG

IMG_5891(1).JPG
回复 支持 反对

使用道具 举报

 楼主| 发表于 2022-4-19 16:40:11 | 显示全部楼层


IMG_5892(1).JPG

IMG_5893(1).JPG

IMG_5894(1).JPG

IMG_5895(1).JPG

IMG_5896(1).JPG
回复 支持 反对

使用道具 举报

您需要登录后才可以回帖 登录 | 立即注册

本版积分规则

全国统一客服电话
0570-8028505

24x7小时免费咨询

  • 官方在线客服

    QQ客服:小西

    点击交谈

    QQ客服:良子

    点击交谈

    QQ客服:闵月

    点击交谈
  • 衢州市柯城区财富中心3号楼2楼

  • 衢州格堂装饰有限公司

  • 扫一扫关注官方微信

    获取一手特惠信息

快速回复 返回顶部 返回列表