• 手机版

    扫码体验手机版

  • 微信公众号

    扫码关注公众号

登录注册
游客您好
第三方账号登陆

江湾半岛24-3-6#132㎡现代——黑白

[复制链接]
发表于 2023-1-14 09:15:43 | 显示全部楼层 |阅读模式
江湾半岛24-3-6#132㎡现代——黑白

格堂装饰实景完工案例欣赏!

小区名称
江湾半岛
房屋面积
132㎡
户型结构
套房
装修风格
现代
装修方式
半包
装修造价
查看请联系客服万元
设计师
汤工
项目经理
周工
装修公司
格堂装饰
装修过程
装修日记
设计说明
本案以黑白灰为主体,置入柔和材相融合,显示出干净,纯粹的质感,配合极具线条感的灯带设计,营造出高级的氛围感;四口之家,满足女业主的储物需求,柜子多多,便于后期收纳。
更多信息
7E1A3617.jpg


回复

使用道具 举报

 楼主| 发表于 2023-1-14 09:16:25 | 显示全部楼层
原始构图▼▼▼

170012eawcr0898581w8w0.jpg

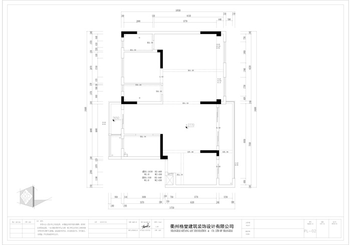
平面布置图▼▼▼

170038k7a3j9ml6si2eaki.jpg


回复 支持 反对

使用道具 举报

 楼主| 发表于 2023-1-14 09:17:14 | 显示全部楼层
客厅▼▼▼



7E1A3617.jpg


7E1A3618.jpg


7E1A3619.jpg


7E1A3620.jpg


7E1A3622.jpg


7E1A3624.jpg



回复 支持 反对

使用道具 举报

 楼主| 发表于 2023-1-14 09:17:39 | 显示全部楼层
餐厅▼▼▼



7E1A3626.jpg


7E1A3627.jpg


7E1A3629.jpg


7E1A3628.jpg


7E1A3632.jpg


7E1A3633.jpg




回复 支持 反对

使用道具 举报

 楼主| 发表于 2023-1-14 09:18:13 | 显示全部楼层
主卧▼▼▼



7E1A3653.jpg


7E1A3654.jpg


回复 支持 反对

使用道具 举报

 楼主| 发表于 2023-1-14 09:18:27 | 显示全部楼层
厨房▼▼▼



7E1A3630.jpg


回复 支持 反对

使用道具 举报

 楼主| 发表于 2023-1-14 09:18:43 | 显示全部楼层
过道▼▼▼



7E1A3639.jpg


回复 支持 反对

使用道具 举报

 楼主| 发表于 2023-1-14 09:19:08 | 显示全部楼层
阳台▼▼▼



7E1A3644.jpg


7E1A3645.jpg


回复 支持 反对

使用道具 举报

 楼主| 发表于 2023-1-14 09:19:58 | 显示全部楼层
书房▼▼▼



7E1A3638.jpg


回复 支持 反对

使用道具 举报

 楼主| 发表于 2023-1-14 09:20:31 | 显示全部楼层
主卫▼▼▼



7E1A3655.jpg


7E1A3656.jpg


回复 支持 反对

使用道具 举报

您需要登录后才可以回帖 登录 | 立即注册

本版积分规则

全国统一客服电话
0570-8028505

24x7小时免费咨询

  • 官方在线客服

    QQ客服:小西

    点击交谈

    QQ客服:良子

    点击交谈

    QQ客服:闵月

    点击交谈
  • 衢州市柯城区财富中心3号楼2楼

  • 衢州格堂装饰有限公司

  • 扫一扫关注官方微信

    获取一手特惠信息

快速回复 返回顶部 返回列表