• 手机版

    扫码体验手机版

  • 微信公众号

    扫码关注公众号

登录注册
游客您好
第三方账号登陆

[衢州] 江湾半岛24-3-6#132㎡现代——黑白

[复制链接]
发表于 2022-5-10 16:59:16 | 显示全部楼层 |阅读模式
黑白

格堂装饰为您全程记录装修全过程!

小区名称
江湾半岛
房屋面积
132㎡
户型结构
套房
装修风格
现代
装修方式
半包
装修造价
查看请联系客服万元
设计师
汤工
项目经理
周工
装修公司
格堂装饰
完工实景
完工实景
水电全景
水电全景
VR全景
VR全景
设计说明
本案以黑白灰为主体,置入柔和材相融合,显示出干净,纯粹的质感,配合极具线条感的灯带设计,营造出高级的氛围感;四口之家,满足女业主的储物需求,柜子多多,便于后期收纳。
更多信息
本帖最后由 格堂飞飞 于 2023-1-14 09:14 编辑

效果图
IMG_5938.JPG

IMG_5939.JPG

IMG_5937.JPG
回复

使用道具 举报

 楼主| 发表于 2022-5-10 16:59:58 | 显示全部楼层
回复 支持 反对

使用道具 举报

 楼主| 发表于 2022-5-10 17:00:28 | 显示全部楼层

原始结构图
IMG_5934.JPG

回复 支持 反对

使用道具 举报

 楼主| 发表于 2022-5-10 17:00:46 | 显示全部楼层

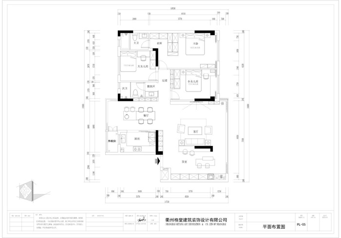
平面布置图
IMG_5935.JPG
回复 支持 反对

使用道具 举报

 楼主| 发表于 2022-5-10 17:03:07 | 显示全部楼层
师傅正在做,开工前的准备工作。
IMG_4856.JPG

IMG_4857.JPG

IMG_4859.JPG
回复 支持 反对

使用道具 举报

 楼主| 发表于 2022-5-10 17:03:57 | 显示全部楼层
本帖最后由 格堂飞飞 于 2022-5-10 17:12 编辑

开工前大门,需要保护起来,防止磕碰哦!
IMG_4862.JPG

IMG_4863.JPG

IMG_4865.JPG

IMG_4866.JPG
回复 支持 反对

使用道具 举报

 楼主| 发表于 2022-5-10 17:13:30 | 显示全部楼层

临时马桶安装好了,方便师傅使用,要讲究卫生哦!
IMG_4868.JPG
回复 支持 反对

使用道具 举报

 楼主| 发表于 2022-5-10 17:14:47 | 显示全部楼层
本帖最后由 格堂飞飞 于 2022-5-10 17:16 编辑

煤气表也要保护起来,防止磕碰哦!
IMG_4858.JPG

回复 支持 反对

使用道具 举报

 楼主| 发表于 2022-5-10 17:15:25 | 显示全部楼层
准备工作做好了,等待开工吉时喽!
IMG_4860.JPG

IMG_4861.JPG
回复 支持 反对

使用道具 举报

 楼主| 发表于 2022-5-10 17:17:28 | 显示全部楼层

吉时已到,恭祝业主大人,开工大吉!
IMG_4898.JPG
回复 支持 反对

使用道具 举报

您需要登录后才可以回帖 登录 | 立即注册

本版积分规则

全国统一客服电话
0570-8028505

24x7小时免费咨询

  • 官方在线客服

    QQ客服:小西

    点击交谈

    QQ客服:良子

    点击交谈

    QQ客服:闵月

    点击交谈
  • 衢州市柯城区财富中心3号楼2楼

  • 衢州格堂装饰有限公司

  • 扫一扫关注官方微信

    获取一手特惠信息

快速回复 返回顶部 返回列表