• 手机版

    扫码体验手机版

  • 微信公众号

    扫码关注公众号

登录注册
游客您好
第三方账号登陆

衢州公馆19-16#114㎡现代——可栖

[复制链接]
发表于 2023-1-13 16:00:11 | 显示全部楼层 |阅读模式
衢州公馆19-16#114㎡现代——可栖

格堂装饰实景完工案例欣赏!

小区名称
衢州公馆
房屋面积
114㎡
户型结构
套房
装修风格
现代
装修方式
半包
装修造价
查看请联系客服万元
设计师
毛工
项目经理
施工
装修公司
格堂装饰
装修过程
装修日记
设计说明
极简的空间并不代表舍掉一切温度,留白的空间更能够映衬出照映的光,让更多可能的元素成为家的一部分。
更多信息
7E1A3359.jpg


回复

使用道具 举报

 楼主| 发表于 2023-1-13 16:00:45 | 显示全部楼层
原始构图▼▼▼

093626dhu850x9860euuz5.jpg

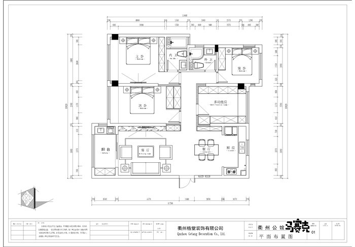
平面布置图▼▼▼

093646ev9hnep74hfx04ls.jpg


回复 支持 反对

使用道具 举报

 楼主| 发表于 2023-1-13 16:01:08 | 显示全部楼层
本帖最后由 格堂方俊 于 2023-1-13 16:02 编辑

客厅▼▼▼



7E1A3358.jpg


7E1A3359.jpg


7E1A3361.jpg


7E1A3362.jpg


7E1A3368.jpg




回复 支持 反对

使用道具 举报

 楼主| 发表于 2023-1-13 16:01:36 | 显示全部楼层
餐厅▼▼▼



7E1A3370.jpg


7E1A3371.jpg


7E1A3377.jpg


7E1A3378.jpg




回复 支持 反对

使用道具 举报

 楼主| 发表于 2023-1-13 16:02:32 | 显示全部楼层
厨房▼▼▼



7E1A3380.jpg


7E1A3382.jpg


回复 支持 反对

使用道具 举报

 楼主| 发表于 2023-1-13 16:03:16 | 显示全部楼层
主卧▼▼▼



7E1A3396.jpg


7E1A3397.jpg


7E1A3398.jpg


7E1A3399.jpg




回复 支持 反对

使用道具 举报

 楼主| 发表于 2023-1-13 16:03:34 | 显示全部楼层
小孩房▼▼▼



7E1A3385.jpg


7E1A3386.jpg


7E1A3387.jpg


7E1A3391.jpg


回复 支持 反对

使用道具 举报

 楼主| 发表于 2023-1-13 16:04:02 | 显示全部楼层
衣帽间▼▼▼



7E1A3401.jpg


7E1A3402.jpg



回复 支持 反对

使用道具 举报

 楼主| 发表于 2023-1-13 16:04:36 | 显示全部楼层
阳台▼▼▼



7E1A3422.jpg


7E1A3424.jpg


回复 支持 反对

使用道具 举报

 楼主| 发表于 2023-1-13 16:04:56 | 显示全部楼层
卫生间▼▼▼



7E1A3393.jpg


回复 支持 反对

使用道具 举报

您需要登录后才可以回帖 登录 | 立即注册

本版积分规则

全国统一客服电话
0570-8028505

24x7小时免费咨询

  • 官方在线客服

    QQ客服:小西

    点击交谈

    QQ客服:良子

    点击交谈

    QQ客服:闵月

    点击交谈
  • 衢州市柯城区财富中心3号楼2楼

  • 衢州格堂装饰有限公司

  • 扫一扫关注官方微信

    获取一手特惠信息

快速回复 返回顶部 返回列表