• 手机版

    扫码体验手机版

  • 微信公众号

    扫码关注公众号

登录注册
游客您好
第三方账号登陆

[衢州] 衢州公馆19-16#114㎡现代——可栖

[复制链接]
发表于 2021-3-11 09:36:04 | 显示全部楼层 |阅读模式
可栖

格堂装饰为您全程记录装修全过程!

小区名称
衢州公馆
房屋面积
114㎡
户型结构
套房
装修风格
现代
装修方式
半包
装修造价
查看请联系客服万元
设计师
毛工
项目经理
施工
装修公司
格堂装饰
完工实景
完工实景
水电全景
水电全景
VR全景
VR全景
设计说明
极简的空间并不代表舍掉一切温度,留白的空间更能够映衬出照映的光,让更多可能的元素成为家的一部分。
更多信息

效果图
acc509f31322a43eb8283427f35fb62.jpg

04676195b85af96349363c9da89aa17.jpg
回复

使用道具 举报

 楼主| 发表于 2021-3-11 09:36:39 | 显示全部楼层

原始结构图
90ee35cbeb5d795611509be6877604a.jpg
回复 支持 反对

使用道具 举报

 楼主| 发表于 2021-3-11 09:36:55 | 显示全部楼层

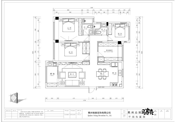
平面布置图
b63c19dae6b258ea09a32593de09ffb.jpg
回复 支持 反对

使用道具 举报

 楼主| 发表于 2021-3-11 09:39:16 | 显示全部楼层

开工前大门已经保护到位。
mmexport1614991725465.jpg

mmexport1614991730218.jpg
回复 支持 反对

使用道具 举报

 楼主| 发表于 2021-3-11 09:40:24 | 显示全部楼层

项目经理正在布置开工桌。
mmexport1614992415710.jpg

mmexport1614992418107.jpg

mmexport1614992422682.jpg
回复 支持 反对

使用道具 举报

 楼主| 发表于 2021-3-11 09:41:28 | 显示全部楼层

临时马桶:每一个施工现场都会配备临时小便斗,并且时刻保持干净卫生、保证工地环境干净、整洁。
mmexport1614992426713.jpg
回复 支持 反对

使用道具 举报

 楼主| 发表于 2021-3-11 09:42:39 | 显示全部楼层

下水管用格堂专用保护盖保护,防止砂石堵塞管道。
mmexport1614992434331.jpg

mmexport1614992429171.jpg
回复 支持 反对

使用道具 举报

 楼主| 发表于 2021-3-11 09:43:18 | 显示全部楼层

煤气表已经保护到位。
mmexport1614992439431.jpg

mmexport1614992444116.jpg
回复 支持 反对

使用道具 举报

 楼主| 发表于 2021-3-11 09:44:54 | 显示全部楼层

门槛已经保护好了。
mmexport1614994183035.jpg

mmexport1614994323938.jpg
回复 支持 反对

使用道具 举报

 楼主| 发表于 2021-3-11 09:46:52 | 显示全部楼层

配电箱盖拆下来了,请业主带回去保管,后期还要拿回来安装的哦
mmexport1614992541181.jpg

mmexport1614992737467.jpg
回复 支持 反对

使用道具 举报

您需要登录后才可以回帖 登录 | 立即注册

本版积分规则

全国统一客服电话
0570-8028505

24x7小时免费咨询

  • 官方在线客服

    QQ客服:小西

    点击交谈

    QQ客服:良子

    点击交谈

    QQ客服:闵月

    点击交谈
  • 衢州市柯城区财富中心3号楼2楼

  • 衢州格堂装饰有限公司

  • 扫一扫关注官方微信

    获取一手特惠信息

快速回复 返回顶部 返回列表