• 手机版

    扫码体验手机版

  • 微信公众号

    扫码关注公众号

登录注册
游客您好
第三方账号登陆

衢州公馆8-1-90#163㎡新中式——出则繁华,入则宁静

[复制链接]
发表于 2023-1-13 13:51:22 | 显示全部楼层 |阅读模式
衢州公馆8-1-90#163㎡新中式——出则繁华,入则宁静

格堂装饰实景完工案例欣赏!

小区名称
衢州公馆
房屋面积
163㎡
户型结构
套房
装修风格
新中式
装修方式
半包
装修造价
查看请联系客服万元
设计师
许工
项目经理
刘工
装修公司
格堂装饰
装修过程
装修日记
设计说明
本案设计采用新中式的设计风格,无论是天花还是地面的线条都是用线条的勾勒,整体对称的形式体现中式神韵。
中式元素与现代元素的巧妙结合,呈现出雅韵,气韵,意境的居住空间,
摒弃了复杂的造型,用线条做装饰,叠出层次,早闹市中得一高雅悠静的居所。
更多信息
7E1A2758.jpg


回复

使用道具 举报

 楼主| 发表于 2023-1-13 13:52:08 | 显示全部楼层
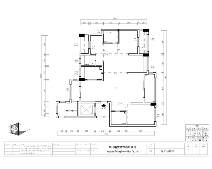
原始构图▼▼▼

090937b0epkspy0uhzk5z2.jpg

平面布置图▼▼▼
091028dgzssxs6afmf2ylk.jpg



回复 支持 反对

使用道具 举报

 楼主| 发表于 2023-1-13 15:32:29 | 显示全部楼层
客厅▼▼▼



7E1A2744.jpg


7E1A2745.jpg


7E1A2746.jpg


7E1A2748.jpg


7E1A2757.jpg


7E1A2758.jpg




回复 支持 反对

使用道具 举报

 楼主| 发表于 2023-1-13 15:33:11 | 显示全部楼层
餐厅▼▼▼



7E1A2736.jpg


7E1A2737.jpg


7E1A2739.jpg


7E1A2741.jpg


7E1A2742.jpg


回复 支持 反对

使用道具 举报

 楼主| 发表于 2023-1-13 15:35:37 | 显示全部楼层
厨房▼▼▼



7E1A2784.jpg


7E1A2785.jpg


7E1A2786.jpg


回复 支持 反对

使用道具 举报

 楼主| 发表于 2023-1-13 15:35:52 | 显示全部楼层
玄关▼▼▼



7E1A2753.jpg


回复 支持 反对

使用道具 举报

 楼主| 发表于 2023-1-13 15:36:16 | 显示全部楼层
主卧▼▼▼



7E1A2709.jpg


7E1A2711.jpg


7E1A2712.jpg


7E1A2713.jpg




回复 支持 反对

使用道具 举报

 楼主| 发表于 2023-1-13 15:36:47 | 显示全部楼层
次卧▼▼▼



7E1A2729.jpg


7E1A2730.jpg


7E1A2732.jpg


7E1A2733.jpg




回复 支持 反对

使用道具 举报

 楼主| 发表于 2023-1-13 15:37:15 | 显示全部楼层
书房▼▼▼



7E1A2723.jpg


7E1A2724.jpg


7E1A2725.jpg




回复 支持 反对

使用道具 举报

 楼主| 发表于 2023-1-13 15:38:53 | 显示全部楼层
过道▼▼▼



7E1A2751.jpg


7E1A2752.jpg


回复 支持 反对

使用道具 举报

您需要登录后才可以回帖 登录 | 立即注册

本版积分规则

全国统一客服电话
0570-8028505

24x7小时免费咨询

  • 官方在线客服

    QQ客服:小西

    点击交谈

    QQ客服:良子

    点击交谈

    QQ客服:闵月

    点击交谈
  • 衢州市柯城区财富中心3号楼2楼

  • 衢州格堂装饰有限公司

  • 扫一扫关注官方微信

    获取一手特惠信息

快速回复 返回顶部 返回列表