[衢州] 衢州公馆8-1-90#163㎡新中式——出则繁华,入则宁静 |
|
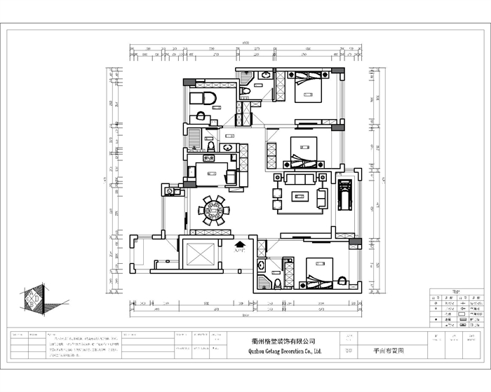
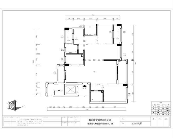
衢州公馆8-1-90#163㎡新中式——出则繁华,入则宁静
格堂装饰为您全程记录装修全过程! 设计说明
本案设计采用新中式的设计风格,无论是天花还是地面的线条都是用线条的勾勒,整体对称的形式体现中式神韵。
中式元素与现代元素的巧妙结合,呈现出雅韵,气韵,意境的居住空间, 摒弃了复杂的造型,用线条做装饰,叠出层次,早闹市中得一高雅悠静的居所。 更多信息
| |
|
|


在线客服
微信客服
关注有礼