• 手机版

    扫码体验手机版

  • 微信公众号

    扫码关注公众号

登录注册
游客您好
第三方账号登陆

斗潭西区2-2-20#130㎡中式——沁园-中式

[复制链接]
发表于 2023-1-9 16:31:41 | 显示全部楼层 |阅读模式
斗潭西区2-2-20#130㎡中式——沁园-中式

格堂装饰实景完工案例欣赏!

小区名称
斗潭西区
房屋面积
130㎡
户型结构
套房
装修风格
中式
装修方式
半包
装修造价
查看请联系客服万元
设计师
吴工
项目经理
郑工
装修公司
格堂装饰
装修过程
装修日记
设计说明
抛开喧哗的城市,打造宁静有温度的家园,两人相伴静看春暖花开,感悟日月星辰,细品春夏秋冬,岁月静好君长伴,韶华倾尽两相依...当今生活忙碌又繁杂,我们想要给本案屋主打造一个精致、古朴、雅致、休闲的世外桃源。
更多信息
7E1A3281.jpg


回复

使用道具 举报

 楼主| 发表于 2023-1-9 16:32:43 | 显示全部楼层
原始构图▼▼▼

100727vpulgg2yaooe5lnl.jpg

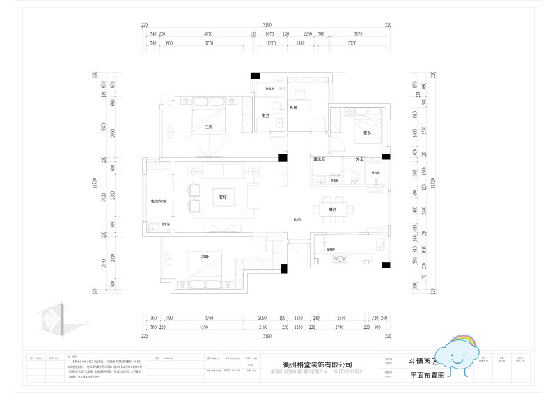
平面布置图▼▼▼

100727hkq8tzn9zo2ijbn6.jpg




回复 支持 反对

使用道具 举报

 楼主| 发表于 2023-1-9 16:33:08 | 显示全部楼层
客厅▼▼▼



7E1A3276.jpg


7E1A3277.jpg


7E1A3278.jpg


7E1A3281.jpg


7E1A3282.jpg


7E1A3285.jpg




回复 支持 反对

使用道具 举报

 楼主| 发表于 2023-1-9 16:33:31 | 显示全部楼层
餐厅▼▼▼



7E1A3287.jpg


7E1A3288.jpg


7E1A3289.jpg




回复 支持 反对

使用道具 举报

 楼主| 发表于 2023-1-9 16:33:53 | 显示全部楼层
餐厅▼▼▼



7E1A3306.jpg


7E1A3307.jpg


回复 支持 反对

使用道具 举报

 楼主| 发表于 2023-1-9 16:34:17 | 显示全部楼层
主卧▼▼▼



7E1A3298.jpg


7E1A3299.jpg


7E1A3300.jpg




回复 支持 反对

使用道具 举报

 楼主| 发表于 2023-1-9 16:34:49 | 显示全部楼层
次卧▼▼▼



7E1A3308.jpg


7E1A3310.jpg




回复 支持 反对

使用道具 举报

 楼主| 发表于 2023-1-9 16:35:05 | 显示全部楼层
书房▼▼▼



7E1A3302.jpg


7E1A3303.jpg



回复 支持 反对

使用道具 举报

 楼主| 发表于 2023-1-9 16:35:26 | 显示全部楼层
主卫▼▼▼



7E1A3301.jpg


回复 支持 反对

使用道具 举报

 楼主| 发表于 2023-1-9 16:35:46 | 显示全部楼层
次卫干区▼▼▼



7E1A3304.jpg


7E1A3312.jpg


7E1A3313.jpg




回复 支持 反对

使用道具 举报

您需要登录后才可以回帖 登录 | 立即注册

本版积分规则

全国统一客服电话
0570-8028505

24x7小时免费咨询

  • 官方在线客服

    QQ客服:小西

    点击交谈

    QQ客服:良子

    点击交谈

    QQ客服:闵月

    点击交谈
  • 衢州市柯城区财富中心3号楼2楼

  • 衢州格堂装饰有限公司

  • 扫一扫关注官方微信

    获取一手特惠信息

快速回复 返回顶部 返回列表