• 手机版

    扫码体验手机版

  • 微信公众号

    扫码关注公众号

登录注册
游客您好
第三方账号登陆

[衢州] 斗潭西区2-2-20#130㎡中式——沁园-中式

[复制链接]
发表于 2021-9-18 10:03:01 | 显示全部楼层 |阅读模式
沁园-中式

格堂装饰为您全程记录装修全过程!

小区名称
斗潭西区
房屋面积
130㎡
户型结构
套房
装修风格
中式
装修方式
半包
装修造价
查看请联系客服万元
设计师
吴工
项目经理
郑工
装修公司
格堂装饰
完工实景
完工实景
水电全景
水电全景
VR全景
VR全景
设计说明
抛开喧哗的城市,打造宁静有温度的家园,两人相伴静看春暖花开,感悟日月星辰,细品春夏秋冬,岁月静好君长伴,韶华倾尽两相依...当今生活忙碌又繁杂,我们想要给本案屋主打造一个精致、古朴、雅致、休闲的世外桃源。
更多信息
本帖最后由 格堂小范 于 2021-9-18 10:06 编辑


回复

使用道具 举报

 楼主| 发表于 2021-9-18 10:07:16 | 显示全部楼层
效果图


微信图片_20210918095239.jpg


微信图片_202109180952391.jpg
回复 支持 反对

使用道具 举报

 楼主| 发表于 2021-9-18 10:07:40 | 显示全部楼层
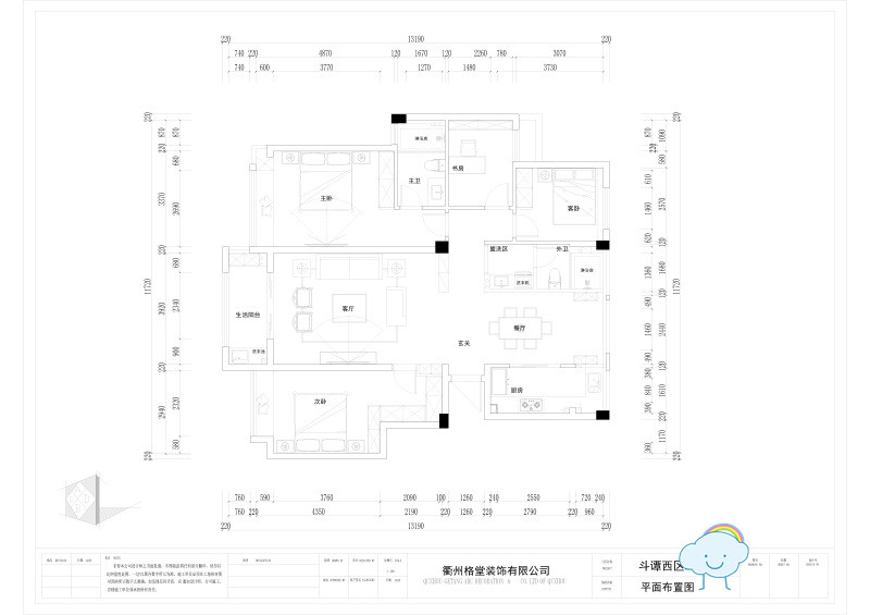
原始结构图

微信图片_202109180952392.jpg

平面布置图

微信图片_20210918095309.jpg
回复 支持 反对

使用道具 举报

 楼主| 发表于 2021-9-18 10:08:09 | 显示全部楼层
开工
回复

使用道具 举报

 楼主| 发表于 2021-9-18 10:10:48 | 显示全部楼层
开工准备

IMG_20210901_074121.jpg


IMG_20210901_074258.jpg


IMG_20210901_074249.jpg


IMG_20210901_074313.jpg
回复 支持 反对

使用道具 举报

 楼主| 发表于 2021-9-18 10:11:24 | 显示全部楼层
拆改放样

IMG_20210901_082255.jpg


IMG_20210901_081030.jpg


IMG_20210901_081055.jpg



IMG_20210901_082336.jpg
回复 支持 反对

使用道具 举报

 楼主| 发表于 2021-9-18 10:15:14 | 显示全部楼层
开工大吉

mmexport1630455766195.jpg


mmexport1630455756689.jpg
回复 支持 反对

使用道具 举报

 楼主| 发表于 2021-9-28 11:52:31 | 显示全部楼层
铲灰,是为了防止墙体出现空鼓,在做好油漆后,不会有墙体整块油漆脱落的现象。

微信图片_20210907172553.jpg

微信图片_202109071725521.jpg


微信图片_20210907172552.jpg


微信图片_202109071725531.jpg


微信图片_202109071725522.jpg
回复 支持 反对

使用道具 举报

 楼主| 发表于 2021-9-28 11:52:56 | 显示全部楼层
铲灰,是为了防止墙体出现空鼓,在做好油漆后,不会有墙体整块油漆脱落的现象。


微信图片_202109071725532.jpg


微信图片_202109071725533.jpg


微信图片_202109071725534.jpg


微信图片_202109071725536.jpg


微信图片_202109071725535.jpg
回复 支持 反对

使用道具 举报

 楼主| 发表于 2021-9-28 11:53:14 | 显示全部楼层
铲灰,是为了防止墙体出现空鼓,在做好油漆后,不会有墙体整块油漆脱落的现象。


微信图片_202109071725538.jpg


微信图片_202109071725537.jpg


微信图片_202109071725539.jpg



微信图片_2021090717255310.jpg


微信图片_2021090717255311.jpg
回复 支持 反对

使用道具 举报

您需要登录后才可以回帖 登录 | 立即注册

本版积分规则

全国统一客服电话
0570-8028505

24x7小时免费咨询

  • 官方在线客服

    QQ客服:小西

    点击交谈

    QQ客服:良子

    点击交谈

    QQ客服:闵月

    点击交谈
  • 衢州市柯城区财富中心3号楼2楼

  • 衢州格堂装饰有限公司

  • 扫一扫关注官方微信

    获取一手特惠信息

快速回复 返回顶部 返回列表