• 手机版

    扫码体验手机版

  • 微信公众号

    扫码关注公众号

登录注册
游客您好
第三方账号登陆

国金.滨江一号5-1-120#138㎡现代—低温格调的现代

[复制链接]
发表于 2023-1-9 15:51:52 | 显示全部楼层 |阅读模式
国金.滨江一号5-1-120#138㎡现代—低温格调的现代

格堂装饰实景完工案例欣赏!

小区名称
国金.滨江一号
房屋面积
138㎡
户型结构
套房
装修风格
现代
装修方式
半包
装修造价
查看请联系客服万元
设计师
佘工
项目经理
周工
装修公司
格堂装饰
装修过程
装修日记
设计说明
本自带转折形态的架构,既区分了客餐厅的区域,又串联起新的互动情节,凸显空间整体化的开阔气韵。虚实相接的立面,纳入令人舒心的安全感,形成视觉中心,让纯粹的自然光与室内光一起,演绎生动曼妙的温柔故事。
更多信息
7E1A3007.jpg


回复

使用道具 举报

 楼主| 发表于 2023-1-9 15:52:34 | 显示全部楼层
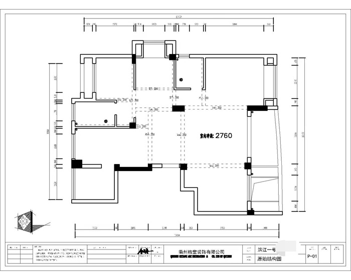
原始构图▼▼▼

143740gz2g0v0zfcf2xxpg.jpg

平面布置图▼▼▼

143759nxca7b67bxxctt4b.jpg




回复 支持 反对

使用道具 举报

 楼主| 发表于 2023-1-9 15:52:56 | 显示全部楼层
客厅▼▼▼



7E1A3006.jpg


7E1A3007.jpg


7E1A3009.jpg


7E1A3010.jpg


7E1A3011.jpg


回复 支持 反对

使用道具 举报

 楼主| 发表于 2023-1-9 15:53:23 | 显示全部楼层
餐厅▼▼▼



7E1A3014.jpg


7E1A3016.jpg


7E1A3017.jpg


7E1A3025.jpg




回复 支持 反对

使用道具 举报

 楼主| 发表于 2023-1-9 15:53:43 | 显示全部楼层
玄关▼▼▼



7E1A3020.jpg


回复 支持 反对

使用道具 举报

 楼主| 发表于 2023-1-9 15:54:04 | 显示全部楼层
厨房▼▼▼



7E1A3023.jpg


7E1A3024.jpg


回复 支持 反对

使用道具 举报

 楼主| 发表于 2023-1-9 15:54:36 | 显示全部楼层
衣帽间▼▼▼



7E1A3029.jpg


回复 支持 反对

使用道具 举报

 楼主| 发表于 2023-1-9 15:54:55 | 显示全部楼层
主卧▼▼▼



7E1A3027.jpg


7E1A3028.jpg


回复 支持 反对

使用道具 举报

 楼主| 发表于 2023-1-9 15:55:14 | 显示全部楼层
主卫▼▼▼



7E1A3030.jpg


回复 支持 反对

使用道具 举报

 楼主| 发表于 2023-1-9 15:55:29 | 显示全部楼层
次卫干区▼▼▼



7E1A3031.jpg


7E1A3032.jpg


7E1A3033.jpg


回复 支持 反对

使用道具 举报

您需要登录后才可以回帖 登录 | 立即注册

本版积分规则

全国统一客服电话
0570-8028505

24x7小时免费咨询

  • 官方在线客服

    QQ客服:小西

    点击交谈

    QQ客服:良子

    点击交谈

    QQ客服:闵月

    点击交谈
  • 衢州市柯城区财富中心3号楼2楼

  • 衢州格堂装饰有限公司

  • 扫一扫关注官方微信

    获取一手特惠信息

快速回复 返回顶部 返回列表