• 手机版

    扫码体验手机版

  • 微信公众号

    扫码关注公众号

登录注册
游客您好
第三方账号登陆

[衢州] 国金.滨江一号5-1-120#138㎡现代—低温格调的现代

[复制链接]
发表于 2022-3-1 14:37:07 | 显示全部楼层 |阅读模式
国金.滨江一号5-1-120#138㎡现代—低温格调的现代

格堂装饰为您全程记录装修全过程!

小区名称
国金.滨江一号
房屋面积
138㎡
户型结构
套房
装修风格
现代
装修方式
半包
装修造价
查看请联系客服万元
设计师
佘工
项目经理
周工
装修公司
格堂装饰
完工实景
完工实景
水电全景
水电全景
VR全景
VR全景
设计说明
本自带转折形态的架构,既区分了客餐厅的区域,又串联起新的互动情节,凸显空间整体化的开阔气韵。虚实相接的立面,纳入令人舒心的安全感,形成视觉中心,让纯粹的自然光与室内光一起,演绎生动曼妙的温柔故事。
更多信息

效果图
ae831f71a859061a9a349b6fe80904a.jpg

f646f0a1166fd6092fc683256bbfe6c.jpg
回复

使用道具 举报

 楼主| 发表于 2022-3-1 14:37:49 | 显示全部楼层
原始结构图
f7b345a2e5b4e3f992b161e4af1b1f5.jpg
回复 支持 反对

使用道具 举报

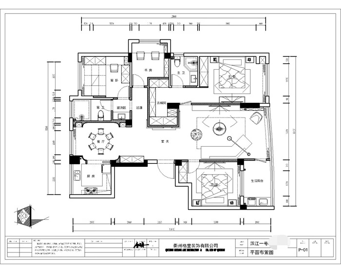
 楼主| 发表于 2022-3-1 14:38:20 | 显示全部楼层
平面布置图

e792f46f65d5e5766fd0e6483029ba1.jpg
回复 支持 反对

使用道具 举报

 楼主| 发表于 2022-3-1 14:39:26 | 显示全部楼层
回复 支持 反对

使用道具 举报

 楼主| 发表于 2022-3-1 14:42:06 | 显示全部楼层
大门电梯口保护
IMG_20220227_100811.jpg

IMG_20220227_100814.jpg

IMG_20220227_100817.jpg

IMG_20220227_100819.jpg

IMG_20220227_100821.jpg

回复 支持 反对

使用道具 举报

 楼主| 发表于 2022-3-1 14:43:44 | 显示全部楼层
本帖最后由 格堂陈辰 于 2022-3-25 11:10 编辑

大门电梯口保护对角保护
IMG_20220227_100827.jpg
IMG_20220227_100829.jpg

IMG_20220227_100831.jpg

IMG_20220227_100833.jpg

IMG_20220227_100835.jpg


回复 支持 反对

使用道具 举报

 楼主| 发表于 2022-3-1 14:45:57 | 显示全部楼层
燃气表保护到位。
IMG_20220227_101200.jpg
回复 支持 反对

使用道具 举报

 楼主| 发表于 2022-3-1 14:47:01 | 显示全部楼层
排水管道用格堂专用保护盖保护,防止后期施工中砂石 堵塞管道
IMG_20220227_102616.jpg

IMG_20220227_102621.jpg

IMG_20220227_102632.jpg
回复 支持 反对

使用道具 举报

 楼主| 发表于 2022-3-1 14:47:35 | 显示全部楼层
卫生间简易马桶安装到位。
IMG_20220227_102649.jpg
回复 支持 反对

使用道具 举报

 楼主| 发表于 2022-3-1 14:48:46 | 显示全部楼层
开工锤准备好了
IMG_20220227_102724.jpg
回复 支持 反对

使用道具 举报

您需要登录后才可以回帖 登录 | 立即注册

本版积分规则

全国统一客服电话
0570-8028505

24x7小时免费咨询

  • 官方在线客服

    QQ客服:小西

    点击交谈

    QQ客服:良子

    点击交谈

    QQ客服:闵月

    点击交谈
  • 衢州市柯城区财富中心3号楼2楼

  • 衢州格堂装饰有限公司

  • 扫一扫关注官方微信

    获取一手特惠信息

快速回复 返回顶部 返回列表